House Plan 5304 Southbend Manor, European House Plan
Please log in or create account to add the product in wishlist.
Wishlist is not saved permanently yet. Please log in or create account to save it.
Or order by phone: (870) 931-5777
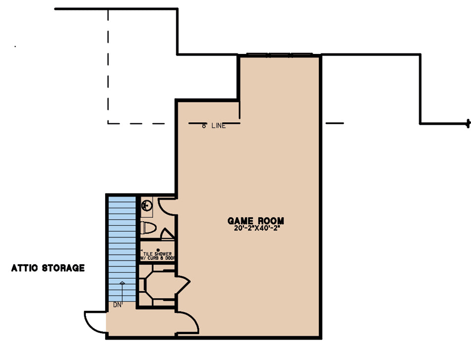
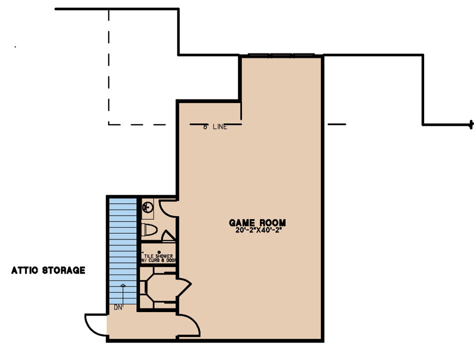
Floor Plans
Description
Enjoy elegant European‑style living with the Southbend Manor House Plan MEN 5304, offering approximately 4,989 sq ft of refined space featuring 3 bedrooms, 3 full baths and 1 half bath. With a sophisticated brick & stone exterior, sweeping open interior spaces and a 4‑bay side‑load garage, this residence blends grandeur and everyday functionality in one distinguished design.
Why this house plan stands out among house plans:
- Striking European‑inspired exterior combining brick and stone in a soft white tone, large picture‑frame windows and graceful arched accents
- Open‑concept living with grand foyer, spacious great room, and seamless flow into the kitchen and dining areas
- Main‑level master suite wing that offers a secluded retreat with luxury bath and walk‑in closet
- Thoughtfully placed secondary bedrooms and upper‑level space (1.5‑story layout) providing flexibility for guest or leisure areas
- Generous 4‑bay side‑load garage integrates storage and vehicle access while maintaining architectural elegance
- Covered outdoor living space that extends the home’s usability into fresh air and entertaining zones
Key Features of the Plan:
- ~4,989 sq ft total living space
- 3 bedrooms, 3 full baths + 1 half bath
- 4‑bay side‑load garage
- Elegant European exterior with mixed brick and stone finish
- Open‑concept great room, kitchen and dining layout
- Main‑level master suite wing
- Flexible upper‑level area for guest space or bonus room
- Covered patio/outdoor living area
Ready to turn your “house plans” search into something you can build? Explore the full specifications of Southbend Manor and imagine life in a home where European sophistication meets thoughtful design.
Home Specifications
- Total Living Space: 4989
- Ridge Height (Ft.) 37
- Main Floor (Sq. Ft.): 4065 Sq.Ft
- Ridge Height (In.) 9
- Upper Floor (Sq. Ft.): 924 Sq.Ft.
- Main Ceiling Height: 10
- Lower Floor (Sq. Ft.): N/A
- Upper Ceiling Height: 8
- Porch (Sq. Ft.): 756 Sq.Ft.
- Lower Ceiling Height: N/A
- Garage (Sq. Ft.): 1678 Sq.Ft.
- Garage: 4 Bay Yes
- Bonus (Sq.Ft): N/A
- Garage/Carport Type:Front Load and Side Load Front Load and Side Load
- Bedrooms: 3
- Carport: No
- Full Baths: 3
- Roof Pitch: 12:12
- Half Baths: 1
- Porch Roof Pitch: N/A
- Stories: 1.5
- Wall Construction: 2x4
- Lower Bonus (Sq. Ft.): N/A
- Vaulted Ceiling: No
- Depth (Ft): 85
- Width (Ft): 111
- Depth (In.) N/A
- Width (In.) 8
- Total Sq. Ft. 7423 Sq.Ft.
- Customizable: Yes
Key Features
- Arched Entry
- Covered Front Porch
- Covered Rear Porch
- Formal Dining Room
- Game Room
- Great Room
- Home Office/Study
- Kitchen Island
- Main Floor Master
- Mudroom
- Nook/Breakfast Area
- Open Floor Plan House Plans
- Outdoor Kitchen
- Peninsula/Eating Bar
- Saferoom
- Screened Porch
- Split Bedroom Design
- Walk-in Closet
- Walk-in-Pantry
Plan Collections
- European House Plans Collection
- Michael E. Nelson House Plans Collection
Plan Styles
- European House Plans
- Luxury House Plans
- Traditional House Plans















