House Plan 5321 White Horse Ranch, Farmhouse House Plan
House Plan:MEN 5321
$1,650.00
/
Shipping calculated at checkout.
Add to Wishlist
Remove from Wishlist
[View Wishlist]
Please log in or create account to add the product in wishlist.
Wishlist is not saved permanently yet. Please log in or create account to save it.
Or order by phone: (870) 931-5777
Floor Plans
Description
Discover Plan MEN 5321 - White Horse Ranch Farmhouse Plan
Plan Highlights
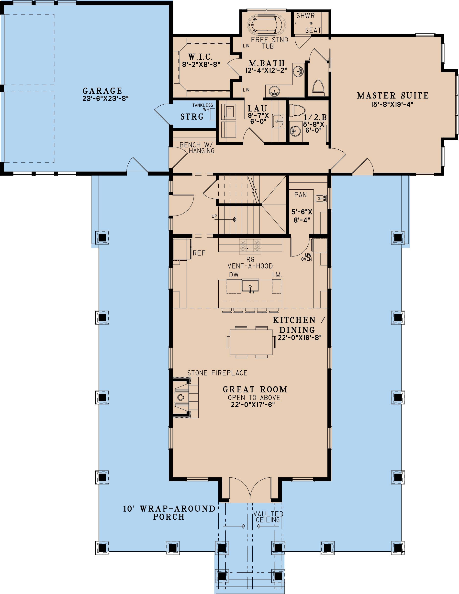
The White Horse Ranch plan offers a spacious and stylish farmhouse design with over 3,000 sq. ft. of living space. Key features include:
- Open Floor Plan: A vaulted great room with a stone fireplace, adjacent to a kitchen with wrap-around cabinets and an eat-at island.
- Main Level Master Suite: Located at the rear for privacy, featuring a luxurious bathroom with a freestanding tub, walk-in shower, double vanity, and access to the laundry room.
- Upper Level: Includes a loft area overlooking the great room, two additional bedrooms, a shared bathroom, and an optional bonus room above the garage.
- Outdoor Living: A wrap-around porch with stone and wood columns, enhancing curb appeal and providing ample space for relaxation.
Home Specifications
- Total Living Space: 3014
- Ridge Height (Ft.) 31
- Main Floor (Sq. Ft.): 1842 Sq.Ft
- Ridge Height (In.) 0
- Upper Floor (Sq. Ft.): 1172 Sq.Ft.
- Main Ceiling Height: 10
- Lower Floor (Sq. Ft.): N/A
- Upper Ceiling Height: 9
- Porch (Sq. Ft.): 1303 Sq.Ft.
- Lower Ceiling Height: N/A
- Garage (Sq. Ft.): 621 Sq.Ft.
- Garage: 2 Bay Yes
- Bonus (Sq.Ft): 381 Sq.Ft.
- Garage/Carport Type:Side Load Side Load
- Bedrooms: 3
- Carport: No
- Full Baths: 3
- Roof Pitch: 10:12
- Half Baths: 2
- Porch Roof Pitch: 5:12
- Stories: 1.5
- Wall Construction: 2x4
- Lower Bonus (Sq. Ft.): N/A
- Vaulted Ceiling: Yes
- Depth (Ft): 82
- Width (Ft): 65
- Depth (In.) N/A
- Width (In.) N/A
- Total Sq. Ft. 5319 Sq.Ft.
- Customizable: Yes
Key Features
- Balcony
- Bonus Room Over Garage
- Covered Front Porch
- Formal Dining Room
- Great Room
- Kitchen Island
- Loft
- Main Floor Master
- Mudroom
- Open Floor Plan House Plans
- Peninsula/Eating Bar
- Split Bedroom Design
- Two Story
- Walk-in Closet
- Walk-in-Pantry
- Wrap-Around Porch
Plan Collections
- Barn Style Collection
- Barndominium House Plans Collection
- Michael E. Nelson House Plans Collection
- Modern Farmhouse Plans
Plan Styles
- Barndominium House Plans
- Country Home House Plans
- Craftsman House Plans
- Farmhouse House Plans
- Mountain House Plans
- Rustic House Plans











