European House Plan, 5466 Mansard Mannor
Please log in or create account to add the product in wishlist.
Wishlist is not saved permanently yet. Please log in or create account to save it.
Or order by phone: (870) 931-5777
Floor Plans
Description
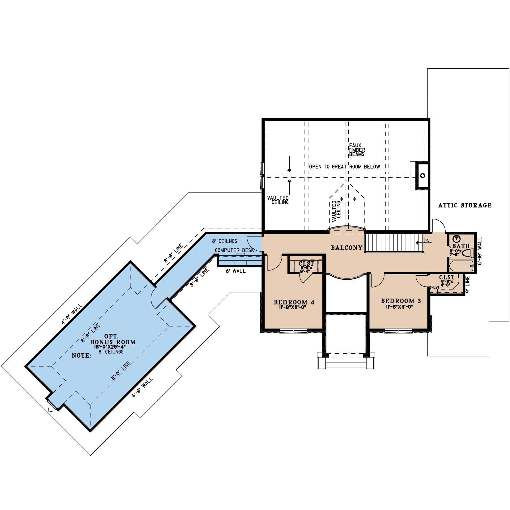
House Plan MEN 5466 – Mansard Manor
Experience grand European elegance with the Mansard Manor House Plan 5466 by Nelson Design Group. This stunning 1½-story home offers approximately 3,346 square feet of luxurious living space, featuring 5 bedrooms, 3 full bathrooms, and 1 half bath. With its impressive dimensions — 101 feet wide by 86 feet deep — this design combines stately architectural presence with comfortable, modern living.
The exterior showcases classic rooflines and an angled three-bay garage, creating both visual appeal and practical functionality. Inside, the open-concept layout seamlessly connects the great room, dining area, and kitchen, making it ideal for entertaining or family living. Vaulted ceilings, large windows, and a generous covered porch enhance the sense of space, light, and connection to the outdoors.
Why Choose the Mansard Manor House Plan
- Elegant European architectural style with timeless curb appeal
- Spacious footprint (~3,346 sq ft) with five bedrooms and multiple baths
- Open-concept layout ideal for modern family living and entertaining
- Bonus room and covered porch for flexible indoor and outdoor living
- Builder-friendly design combining grandeur with practical functionality
Build Your Dream Home
If you’re searching for house plans that offer European sophistication with adaptable modern living, the Mansard Manor plan is the perfect choice. Every feature — from the flowing interior layout to the elegant exterior — has been designed to create a home that feels both luxurious and welcoming.
Home Specifications
- Total Living Space: 3346
- Ridge Height (Ft.) 35
- Main Floor (Sq. Ft.): 2642
- Ridge Height (In.) 4
- Upper Floor (Sq. Ft.): 704
- Main Ceiling Height: 9
- Lower Floor (Sq. Ft.): N/A
- Upper Ceiling Height: 9
- Porch (Sq. Ft.): 556
- Lower Ceiling Height: N/A
- Garage (Sq. Ft.): 938
- Garage: 3 Bay Yes
- Bonus (Sq.Ft): 700
- Garage/Carport Type:Angled Angled
- Bedrooms: 5
- Carport: N/A
- Full Baths: 3
- Roof Pitch: 14:12
- Half Baths: 1
- Porch Roof Pitch: 14:12
- Stories: 1.5
- Wall Construction: 2x6
- Lower Bonus (Sq. Ft.): N/A
- Vaulted Ceiling: Yes
- Depth (Ft): 86
- Width (Ft): 101
- Depth (In.) 8
- Width (In.) 10
- Total Sq. Ft. 5540
- Customizable: Yes
Key Features
- Bonus Room
- Bonus Room Over Garage
- Covered Rear Porch
- Decks Patios Balconies
- Formal Dining Room
- Great Room
- Grilling Porch
- Home Office/Study
- Main Floor Master
- Nook/Breakfast Area
- Open Floor Plan House Plans
- Peninsula/Eating Bar
- Split Bedroom Design
- Vaulted High Cathedral Ceiling
- Walk-in Closet
- Walk-in-Pantry
Plan Collections
- European House Plans Collection
- Michael E. Nelson House Plans Collection
Plan Styles
- European House Plans
- Luxury House Plans



