House Plan 5087 St. John's Place, French Country House Plan
House Plan:MEN 5087
$1,850.00
/
Shipping calculated at checkout.
Add to Wishlist
Remove from Wishlist
[View Wishlist]
Please log in or create account to add the product in wishlist.
Wishlist is not saved permanently yet. Please log in or create account to save it.
Or order by phone: (870) 931-5777
Floor Plans
Description
Timeless Elegance Meets French Country Charm: House Plan MEN 5087 – St. John’s Place
If you’re exploring house plans that combine classic European styling with modern functionality, St. John’s Place Plan MEN 5087 offers a refined solution. This 1½‑story French Country design features expansive living spaces, elegant details, and a layout ideal for both family living and entertaining.
Why St. John’s Place Stands Out Among House Plans
-
Generous living space
St. John’s Place provides 3,119 sq ft of total living space, including 4 bedrooms, 3 full baths, and 1 half bath, with a 3‑bay angled garage. -
Striking French Country exterior
The home boasts high rooflines, a blend of stone and brick siding, and charming wood shutters, creating a welcoming and timeless curb appeal. -
Grand entry and foyer
The spacious entryway leads into a foyer that sets the tone for the home's elegance and flow. -
Formal dining room with vaulted ceiling
To the right of the foyer, the formal dining room features a timber-beamed vaulted ceiling, adding architectural interest and sophistication. -
Open-concept great room, kitchen, and breakfast nook
The great room, kitchen, and breakfast nook share a grand timber-beamed vaulted ceiling and a wall of French doors, allowing natural light to flood the space and offering views of the covered grilling porch and outdoor living area. -
Main-level master suite
The master suite is thoughtfully located on the main level, providing privacy and convenience. It includes a spacious layout and direct access to the outdoor living area. -
Additional bedroom and study/guest room
Bedroom 2 is situated on the left side of the home, with easy access to a hall bath. An optional opening from the foyer leads into a study or guest room, offering flexibility for various needs. -
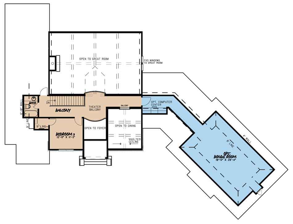
Upstairs bonus space
The upper floor features a third bedroom, a full bath, a balcony open to the great room and dining room below, and an optional computer center and bonus room above the garage, providing additional living space and versatility. -
Mudroom and safe room
A mudroom off the garage entrance includes a safe room, adding an extra layer of security and convenience for the homeowners. -
Covered porches for outdoor living
The home includes both covered front and rear porches, enhancing the outdoor living experience and providing spaces for relaxation and entertainment.
Home Specifications
- Total Living Space: 3119
- Ridge Height (Ft.) 36
- Main Floor (Sq. Ft.): 2610 Sq.Ft
- Ridge Height (In.) 6
- Upper Floor (Sq. Ft.): 509 Sq.Ft.
- Main Ceiling Height: 10
- Lower Floor (Sq. Ft.): N/A
- Upper Ceiling Height: 9
- Porch (Sq. Ft.): 546 Sq.Ft.
- Lower Ceiling Height: N/A
- Garage (Sq. Ft.): 956 Sq.Ft.
- Garage: 3 Bay Yes
- Bonus (Sq.Ft): 678 Sq.Ft.
- Garage/Carport Type:Angled Angled
- Bedrooms: 4
- Carport: N/A
- Full Baths: 3
- Roof Pitch: N/A
- Half Baths: 1
- Porch Roof Pitch: N/A
- Stories: 1.5
- Wall Construction: 2x4
- Lower Bonus (Sq. Ft.): N/A
- Vaulted Ceiling: Yes
- Depth (Ft): 86
- Width (Ft): 101
- Depth (In.) 8
- Width (In.) 7
- Total Sq. Ft. 5299 Sq.Ft.
- Customizable: Yes
Key Features
- Balcony
- Bonus Room Over Garage
- Covered Front Porch
- Covered Rear Porch
- Formal Dining Room
- Great Room
- Grilling Porch
- Home Office/Study
- Kitchen Island
- Main Floor Master
- Mudroom
- Open Floor Plan House Plans
- Outdoor Living Space
- Peninsula/Eating Bar
- Split Bedroom Design
- Walk-in Closet
- Walk-in-Pantry
Plan Collections
- Customizable Exteriors House Plans Collection
- Michael E. Nelson House Plans Collection
Plan Styles
- European House Plans
- French Country House Plans
- Luxury House Plans



