House Plan 951 Ambrose Boulevard, Heritage House Plan
Please log in or create account to add the product in wishlist.
Wishlist is not saved permanently yet. Please log in or create account to save it.
Or order by phone: (870) 931-5777
Floor Plans
Description
House Plan 951 Ambrose Boulevard – Heritage House Plan
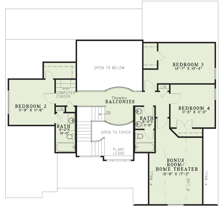
Discover classic heritage charm and modern family living with House Plan 951 Ambrose Boulevard, a two-story home offering approximately 2,642 sq. ft. of thoughtfully designed living space. This 4-bedroom, 3.5-bathroom plan provides room for family, guests, and daily comfort. The elegant arched entryway leads to a grand foyer opening into a spacious great room with fireplace, creating a welcoming hub for gatherings. The kitchen features a curved eat-at island adjacent to a hearth room, while the grilling porch enhances outdoor enjoyment. The main-floor master suite includes a luxurious bath and direct outdoor access. Upstairs, a balcony overlooks the great room and leads to additional bedrooms and a flexible home theater. This plan blends architectural charm with practical living for modern families.
Key Features:
- Total living space: approximately 2,642 sq. ft.
- 4 bedrooms and 3 full bathrooms plus 1 half bath
- Two-story heritage design with arched entryway
- Grand foyer opening to great room with fireplace
- Curved eat-at island and adjacent hearth room
- Grilling porch for outdoor living
- Main-floor master suite with luxurious bath and walk-in closet
- Upstairs balcony overlooking great room
- Flexible home theater and additional upstairs bedrooms
- Front-load 2-bay garage for vehicles and storage
Home Specifications
- Total Living Space: 2642
- Ridge Height (Ft.) 34
- Main Floor (Sq. Ft.): 1747 Sq.Ft
- Ridge Height (In.) 4
- Upper Floor (Sq. Ft.): 895 Sq.Ft.
- Main Ceiling Height: 9
- Lower Floor (Sq. Ft.): N/A
- Upper Ceiling Height: 8
- Porch (Sq. Ft.): 459 Sq.Ft.
- Lower Ceiling Height: N/A
- Garage (Sq. Ft.): 501 Sq.Ft.
- Garage: 2 Bay Yes
- Bonus (Sq.Ft): 263 Sq.Ft.
- Garage/Carport Type:Front Load Front Load
- Bedrooms: 4
- Carport: N/A
- Full Baths: 3
- Roof Pitch: 12:12
- Half Baths: 1
- Porch Roof Pitch: N/A
- Stories: 2.0
- Wall Construction: 2x4
- Lower Bonus (Sq. Ft.): N/A
- Vaulted Ceiling: No
- Depth (Ft): 52
- Width (Ft): 55
- Depth (In.) 10
- Width (In.) N/A
- Total Sq. Ft. 3865 Sq.Ft.
- Customizable: Yes
Key Features
- Arched Entry
- Balcony
- Bonus Room Over Garage
- Covered Front Porch
- Covered Rear Porch
- Great Room
- Grilling Porch
- Home Theater
- Main Floor Master
- Mudroom
- No Formal Dining
- Open Floor Plan House Plans
- Peninsula/Eating Bar
- Split Bedroom Design
- Walk-in Closet
Plan Collections
- Customizable Exteriors House Plans Collection
- Heritage House Plans Collection
Plan Styles
- Arts & Crafts House Plans
- Country Home House Plans
- Craftsman House Plans
- Luxury House Plans
- Traditional House Plans









