House Plan 952 Clair Drive, Heritage House Plan
Please log in or create account to add the product in wishlist.
Wishlist is not saved permanently yet. Please log in or create account to save it.
Or order by phone: (870) 931-5777
Floor Plans
Description
House Plan 952 Clair Drive – Heritage House Plan
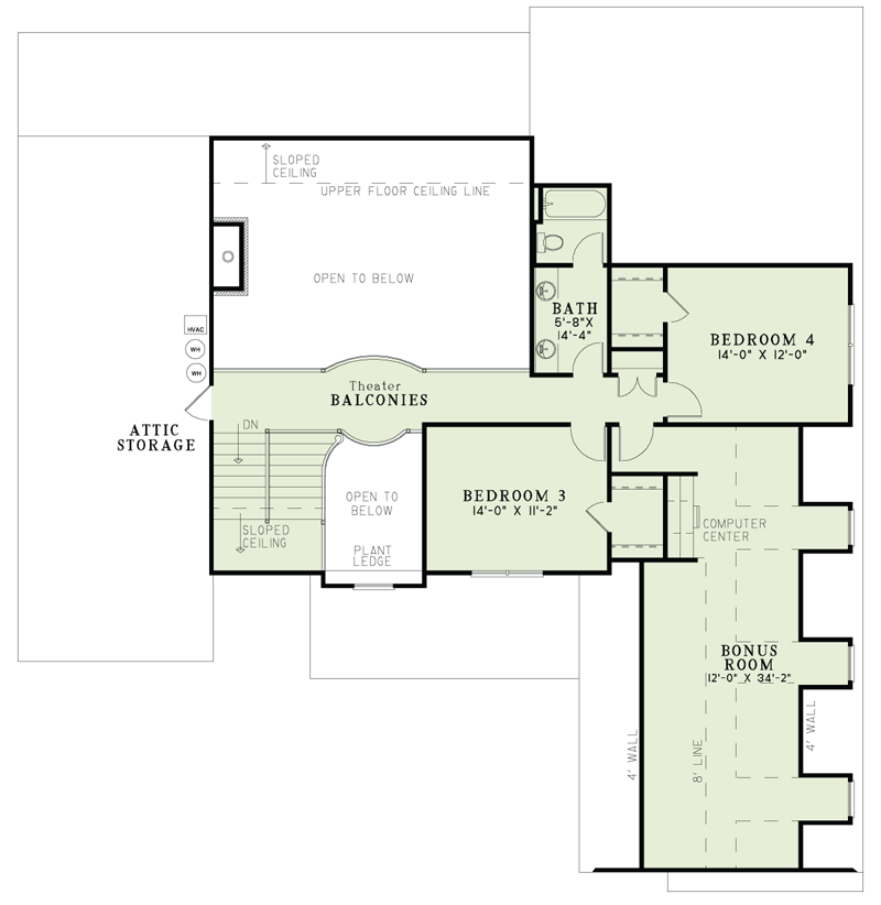
Experience spacious, elegant living with House Plan 952 Clair Drive, a heritage-inspired 1.5-story home offering approximately 3,167 sq. ft. of total living space. This 4-bedroom, 3-bathroom plan is perfect for families seeking comfort, style, and functionality. The open layout includes large common areas ideal for entertaining and everyday living, while the private bedroom suites provide separation and privacy. A three-bay side-load garage offers ample space for vehicles and storage. Covered front and rear porches enhance outdoor living, and classic heritage architectural details give the home timeless curb appeal. Thoughtful design and versatile spaces make House Plan 952 Clair Drive ideal for modern family life.
Key Features:
- Total living space: approximately 3,167 sq. ft.
- 4 bedrooms and 3 full bathrooms
- 1.5-story layout with flexible upper space
- Three-bay side-load garage for vehicles and storage
- Spacious covered front and rear porches
- Heritage styling with mixed exterior materials
- Open common areas for entertaining and family gatherings
- Private bedroom suites for comfort and privacy
- Versatile bonus space for office, media, or hobby use
Home Specifications
- Total Living Space: 3167
- Ridge Height (Ft.) 31
- Main Floor (Sq. Ft.): 2486 Sq.Ft
- Ridge Height (In.) 6
- Upper Floor (Sq. Ft.): 681 Sq.Ft.
- Main Ceiling Height: 9
- Lower Floor (Sq. Ft.): N/A
- Upper Ceiling Height: 8
- Porch (Sq. Ft.): 381 Sq.Ft.
- Lower Ceiling Height: N/A
- Garage (Sq. Ft.): 750 Sq.Ft.
- Garage: 3 Bay Yes
- Bonus (Sq.Ft): 474 Sq.Ft.
- Garage/Carport Type:Side Load Side Load
- Bedrooms: 4
- Carport: N/A
- Full Baths: 3
- Roof Pitch: 10:12
- Porch Roof Pitch: N/A
- Stories: 1.5
- Wall Construction: 2x4
- Lower Bonus (Sq. Ft.): N/A
- Vaulted Ceiling: Yes
- Depth (Ft): 68
- Width (Ft): 67
- Depth (In.) 6
- Width (In.) 3
- Total Sq. Ft. 4772 Sq.Ft.
- Customizable: Yes
Key Features
- Arched Entry
- Balcony
- Bonus Room Over Garage
- Covered Front Porch
- Covered Rear Porch
- Formal Dining Room
- Great Room
- Grilling Porch
- Home Office/Study
- In-Law Suite Private Guest
- Main Floor Master
- Mudroom
- Nook/Breakfast Area
- Open Floor Plan House Plans
- Peninsula/Eating Bar
- Vaulted High Cathedral Ceiling
- Walk-in Closet
Plan Collections
- Heritage House Plans Collection
Plan Styles
- Arts & Crafts House Plans
- Country Home House Plans
- Craftsman House Plans
- Traditional House Plans



















