House Plan 992 Georgia Avenue, Multi-Family House Plan
Please log in or create account to add the product in wishlist.
Wishlist is not saved permanently yet. Please log in or create account to save it.
Or order by phone: (870) 931-5777
Floor Plans
Description
House Plan 992 Georgia Avenue | NDG 992 – Premier “House Plans” for Modern Living
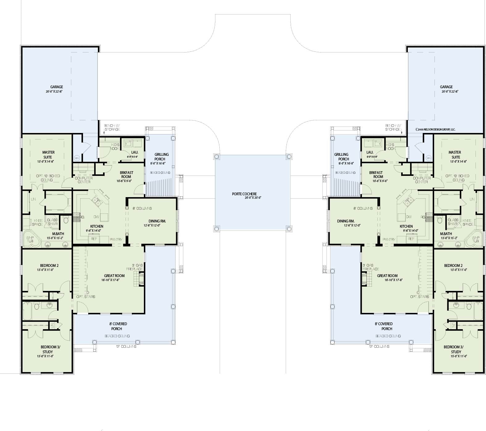
Discover House Plan 992 Georgia Avenue, a standout multi-family home design that beautifully blends timeless curb appeal with smart, functional living. This thoughtfully crafted plan features a charming shared porte cochere that delivers both style and convenience as it leads to a spacious two-bay rear garage. With approximately 1,845 sq. ft. of total living space per unit, this design is perfect for investors, growing families, or anyone seeking a versatile duplex layout that doesn’t compromise on comfort. Its balanced mix of traditional Southern charm and modern practicality makes it an exceptional choice for homeowners searching for high-quality, efficient “house plans” that feel inviting, spacious, and truly livable.
Key Features of House Plan 992 Georgia Avenue
- Shared porte cochere for sheltered entry and enhanced curb appeal
- Multi-family duplex layout, ideal for rental income or extended family living
- Two-bay rear, side-load garage offering convenience and extra storage
- Approximately 1,845 sq. ft. of living space per unit (3 bedrooms, 2 baths)
- Traditional architectural style suited for a wide range of neighborhoods
Home Specifications
- Total Living Space: 1845
- Ridge Height (Ft.) 29
- Main Floor (Sq. Ft.): 1845 Sq.Ft
- Ridge Height (In.) 7
- Upper Floor (Sq. Ft.): N/A
- Main Ceiling Height: 9
- Lower Floor (Sq. Ft.): N/A
- Upper Ceiling Height: 8
- Porch (Sq. Ft.): 465 Sq.Ft.
- Lower Ceiling Height: N/A
- Garage (Sq. Ft.): 496 Sq.Ft.
- Garage: 2 Bay Yes
- Bonus (Sq.Ft): 1191 Sq.Ft.
- Garage/Carport Type:Porte-Cochere and Side Load Porte-Cochere and Side Load
- Bedrooms: 3
- Carport: N/A
- Full Baths: 2
- Roof Pitch: 12:12
- Porch Roof Pitch: 6:12
- Stories: 1.0
- Wall Construction: 2x4
- Lower Bonus (Sq. Ft.): N/A
- Vaulted Ceiling: No
- Depth (Ft): 86
- Width (Ft): 122
- Depth (In.) 8
- Width (In.) 8
- Total Sq. Ft. 3997 Sq.Ft.
- Customizable: Yes
Key Features
- Covered Front Porch
- Covered Rear Porch
- Formal Dining Room
- Great Room
- Grilling Porch
- Home Office/Study
- Main Floor Master
- Mudroom
- Nook/Breakfast Area
- Open Floor Plan House Plans
- Peninsula/Eating Bar
- Porte-Cochere
- Walk-in Closet
- Wrap-Around Porch
Plan Collections
- Multi-Family House Plans
Plan Styles
- Country Home House Plans
- Craftsman House Plans
- Southern House Plans
- Traditional House Plans









