House Plan 5042 Ashland Place, Craftsman Bungalow House Plan
House Plan:MEN 5042
$1,650.00
/
Shipping calculated at checkout.
Add to Wishlist
Remove from Wishlist
[View Wishlist]
Please log in or create account to add the product in wishlist.
Wishlist is not saved permanently yet. Please log in or create account to save it.
Or order by phone: (870) 931-5777
Floor Plans
Description
House Plans That Combine Comfort and Character — Explore Ashland Place Plan MEN 5042
If you’re searching for house plans that balance Craftsman charm with practical functionality, Ashland Place Plan MEN 5042 is a perfect fit. This one-story home delivers warmth, elegance, and flexibility—all within a thoughtfully designed footprint.
What Makes Ashland Place Stand Out
-
Charming Craftsman Exterior
With its mix of brick, stone, and shake siding, Ashland Place has classic curb appeal. Stone-based columns, wood shutters, and a welcoming front porch give the home a cozy, timeless feel. -
Comfortable Living Size
Offering approximately 2,410 square feet of heated living space, this home includes 3 bedrooms, 3 full bathrooms, 1 half bath, and a 3-car side-load garage. -
Open Floor Plan with Vaulted Ceilings
The entryway opens into a vaulted great room accented by exposed timber beams. This spacious central area flows into the kitchen and dining space, anchored by a large eat-at island and a walk-in pantry. -
Private Master Suite Retreat
The master suite features a boxed ceiling and access to the rear grilling porch. The master bath includes a free-standing tub, dual vanities, a glass shower with seating, and a large walk-in closet with a dedicated makeup station. -
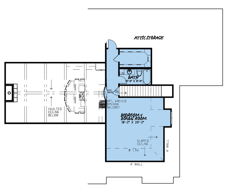
Secondary Bedrooms and Bonus Room
Bedrooms 2 and 3 each have easy access to full baths, with Bedroom 3 offering an en-suite option. A large bonus room above the garage adds nearly 600 square feet and includes a full bath and walk-in closet—perfect for guests, a playroom, or a private office. -
Outdoor Living Made Easy
A covered front porch and rear grilling porch provide inviting spaces for outdoor enjoyment and entertaining, making the transition between indoor and outdoor living seamless.
Home Specifications
- Total Living Space: 2410
- Ridge Height (Ft.) 32
- Main Floor (Sq. Ft.): 2410 Sq.Ft
- Ridge Height (In.) 10
- Upper Floor (Sq. Ft.): N/A
- Main Ceiling Height: 9
- Lower Floor (Sq. Ft.): N/A
- Upper Ceiling Height: 8
- Porch (Sq. Ft.): 707 Sq.Ft.
- Lower Ceiling Height: N/A
- Garage (Sq. Ft.): 1009 Sq.Ft.
- Garage: 3 Bay Yes
- Bonus (Sq.Ft): 599 Sq.Ft.
- Garage/Carport Type:Front Load Front Load
- Bedrooms: 3
- Carport: N/A
- Full Baths: 3
- Roof Pitch: 12:12
- Half Baths: 1
- Porch Roof Pitch: N/A
- Stories: 1.0
- Wall Construction: 2x4
- Lower Bonus (Sq. Ft.): N/A
- Vaulted Ceiling: Yes
- Depth (Ft): 65
- Width (Ft): 81
- Depth (In.) 5
- Width (In.) 6
- Total Sq. Ft. 4725 Sq.Ft.
- Customizable: Yes
Key Features
- Bonus Room Over Garage
- Covered Front Porch
- Covered Rear Porch
- Formal Dining Room
- Great Room
- Grilling Porch
- Kitchen Island
- Main Floor Master
- Mudroom
- Open Floor Plan House Plans
- Outdoor Living Space
- Peninsula/Eating Bar
- Split Bedroom Design
- Walk-in Closet
- Walk-in-Pantry
Plan Collections
- Customizable Exteriors House Plans Collection
- Michael E. Nelson House Plans Collection
Plan Styles
- Country Home House Plans
- Craftsman House Plans
- Rustic House Plans
- Southern House Plans
- Traditional House Plans



















