House Plan 5049 Coal Creek Place, Rustic House Plan

House Plan:MEN 5049
$1,350.00
Add to Wishlist
[View Wishlist]

Or order by phone: (870) 931-5777

Floor Plans

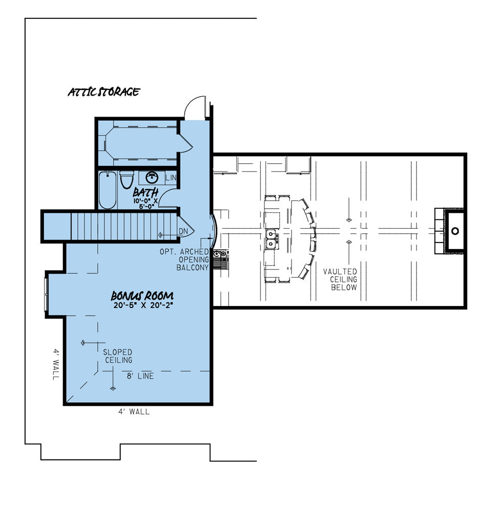
Floor Plan #1

Description

Introducing Coal Creek Place Plan MEN 5049

If you’re exploring house plans and want a home that combines rustic charm, open interiors, and functional layout, Coal Creek Place Plan MEN 5049 is a standout option. This plan fuses traditional Craftsman‐rustic detail with smart design for relaxed, modern living.

Key Features of Coal Creek Place

  • Generous Size & Layout
    Coal Creek Place provides approximately 2,537 square feet of heated living space with 4 bedrooms, 3 full baths, and 1 half bath. It features a 2‑bay side‑load garage and a footprint of about 71 feet 10 inches wide by 61 feet 3 inches deep.
  • Rustic Meets Modern Aesthetic
    The exterior balances traditional rustic touches with a clean, modern palette. Crisp white brick combines with cool gray stone, and shake siding accents add warmth and depth. Stone‑based columns and exposed timbers echo classic rustic elements in a fresh way.
  • Open Interiors & Vaulted Great Room
    The main area opens into a vaulted great room with timber beams, creating a sense of volume and connection. A fireplace provides a cozy focal point, while the kitchen and dining areas flow naturally from the living space. French doors in the great room lead out to a covered grilling porch.
  • Split Bedroom Design for Privacy
    The master suite occupies its own wing of the home for enhanced privacy and tranquility. The master bathroom includes dual vanities, a walk‑in closet, a free‑standing tub, and a glass shower. On the opposite side, Bedrooms 2, 3, and 4 share access to a well‑appointed full bath with dual sinks.
  • Bonus Room Over Garage
    Above the garage is a spacious bonus room (about 602 square feet) complete with a full bath and walk‑in closet. This space is ideal for guests, a studio, or a private retreat.
  • Indoor–Outdoor Harmony
    The design strongly emphasizes outdoor living. A covered grilling porch seamlessly extends the interior space, allowing year‑round enjoyment of outdoor dining and relaxation.

Home Specifications

  • Total Living Space: 2537
  • Ridge Height (Ft.) 33
  • Main Floor (Sq. Ft.): 2537 Sq.Ft
  • Ridge Height (In.) 0
  • Upper Floor (Sq. Ft.): N/A
  • Main Ceiling Height: 9
  • Lower Floor (Sq. Ft.): N/A
  • Upper Ceiling Height: 8
  • Porch (Sq. Ft.): 561 Sq.Ft.
  • Lower Ceiling Height: N/A
  • Garage (Sq. Ft.): 658 Sq.Ft.
  • Garage: 2 Bay Yes
  • Bonus (Sq.Ft): 602 Sq.Ft.
  • Garage/Carport Type:Side Load Side Load
  • Bedrooms: 4
  • Carport: N/A
  • Full Baths: 3
  • Roof Pitch: 12:12
  • Half Baths: 1
  • Porch Roof Pitch: N/A
  • Stories: 1.0
  • Wall Construction: 2x4
  • Lower Bonus (Sq. Ft.): N/A
  • Vaulted Ceiling: Yes
  • Depth (Ft): 61
  • Width (Ft): 71
  • Depth (In.) 3
  • Width (In.) 10
  • Total Sq. Ft. 4361 Sq.Ft.
  • Customizable: Yes

Key Features

  • Balcony
  • Bonus Room Over Garage
  • Covered Front Porch
  • Covered Rear Porch
  • Formal Dining Room
  • Great Room
  • Grilling Porch
  • Home Office/Study
  • Kitchen Island
  • Main Floor Master
  • Open Floor Plan House Plans
  • Outdoor Living Space
  • Peninsula/Eating Bar
  • Single Story
  • Split Bedroom Design
  • Walk-in Closet
  • Walk-in-Pantry

Plan Collections

  • Michael E. Nelson House Plans Collection

Plan Styles

  • Craftsman House Plans
  • French Country House Plans
  • Rustic House Plans
  • Traditional House Plans

Plan Spec Download

PLAN SPEC DOWNLOAD

Customize This Plan

Need to make changes? We will get you a free price quote!

MODIFY THIS PLAN