House Plan 5173 Primrose Place, European House Plan
House Plan:MEN 5173
$1,350.00
/
Add to Wishlist
Remove from Wishlist
[View Wishlist]
Please log in or create account to add the product in wishlist.
Wishlist is not saved permanently yet. Please log in or create account to save it.
Or order by phone: (870) 931-5777
Floor Plans
Description
House Plans That Exude European Sophistication: Primrose Place Plan MEN 5173
If you're exploring house plans that combine timeless elegance with modern livability, Primrose Place Plan MEN 5173 is a standout. This European-style home artfully merges classic details with a flexible, open layout—ideal for families who appreciate beauty and function in equal measure.
What Makes Primrose Place a Top Choice Among House Plans
- Generous scale with refined design: Total living space is approximately 3,050 square feet, with 3 bedrooms, 2 full baths, and 2 half baths—offering graciousness without waste.
- European exterior character: Dramatic rooflines, a castle-like turret, stone and brick siding, and an arched entry create strong curb appeal and visual intrigue.
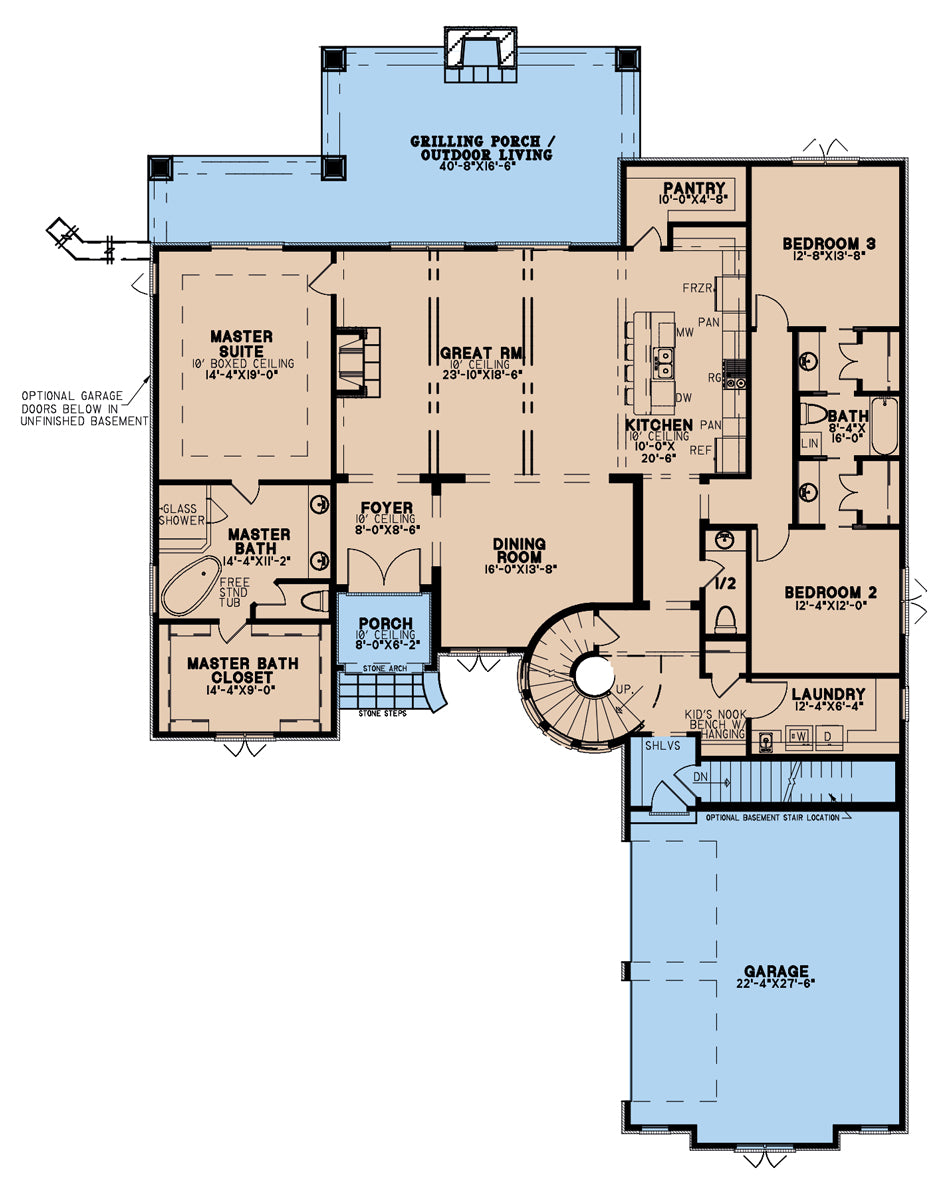
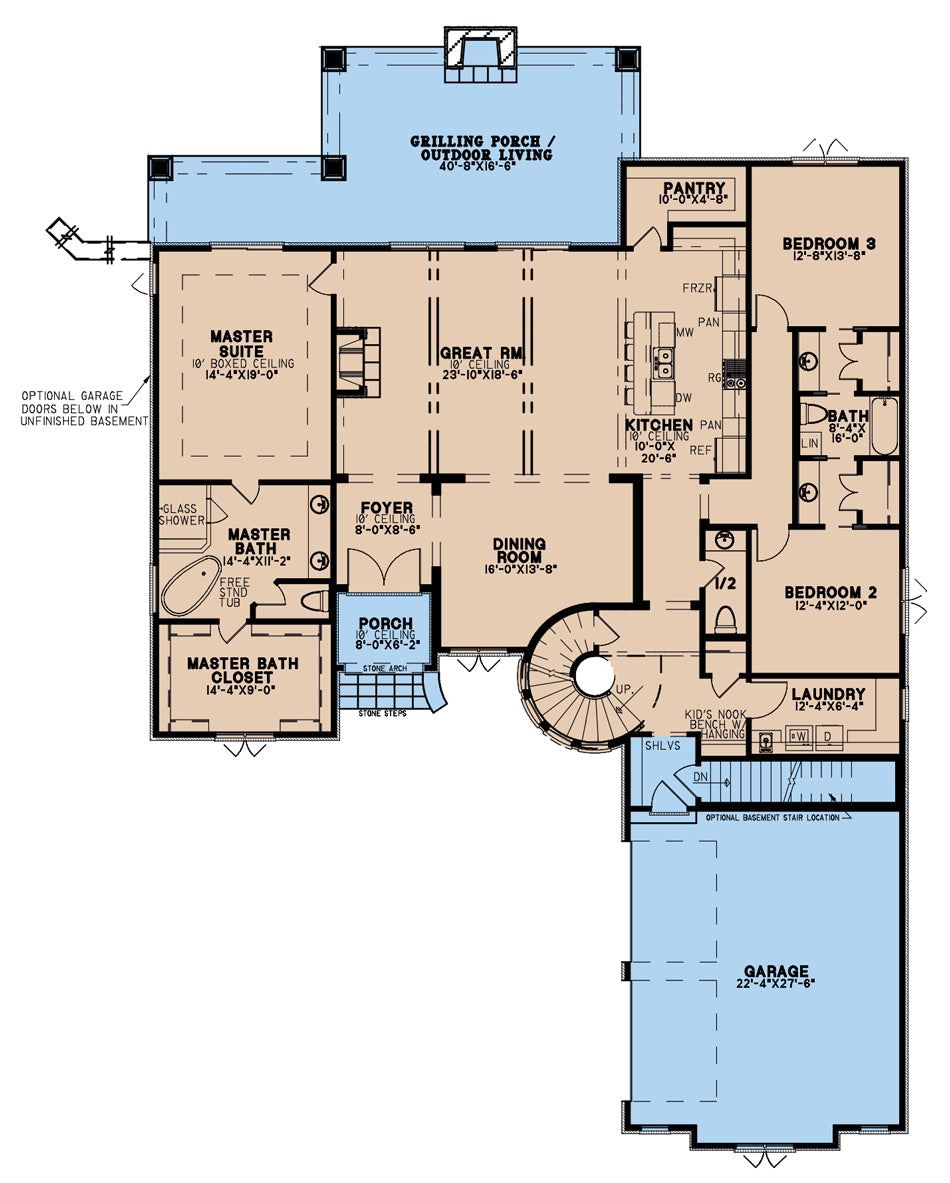
- Open-concept core: The great room flows seamlessly into the kitchen and dining areas. A towering stone fireplace provides warmth and a striking focal point.
- Master suite retreat: Nestled in the left-rear portion of the main level, the master suite features large picture windows, a boxed 10-foot ceiling, dual vanities, a glass shower, freestanding tub, and ample closet space.
- Smart secondary layout: Bedrooms 2 and 3 share a Jack & Jill-style bathroom—each side with its own sink and closet access, while sharing a central zone for the tub/shower and linen storage.
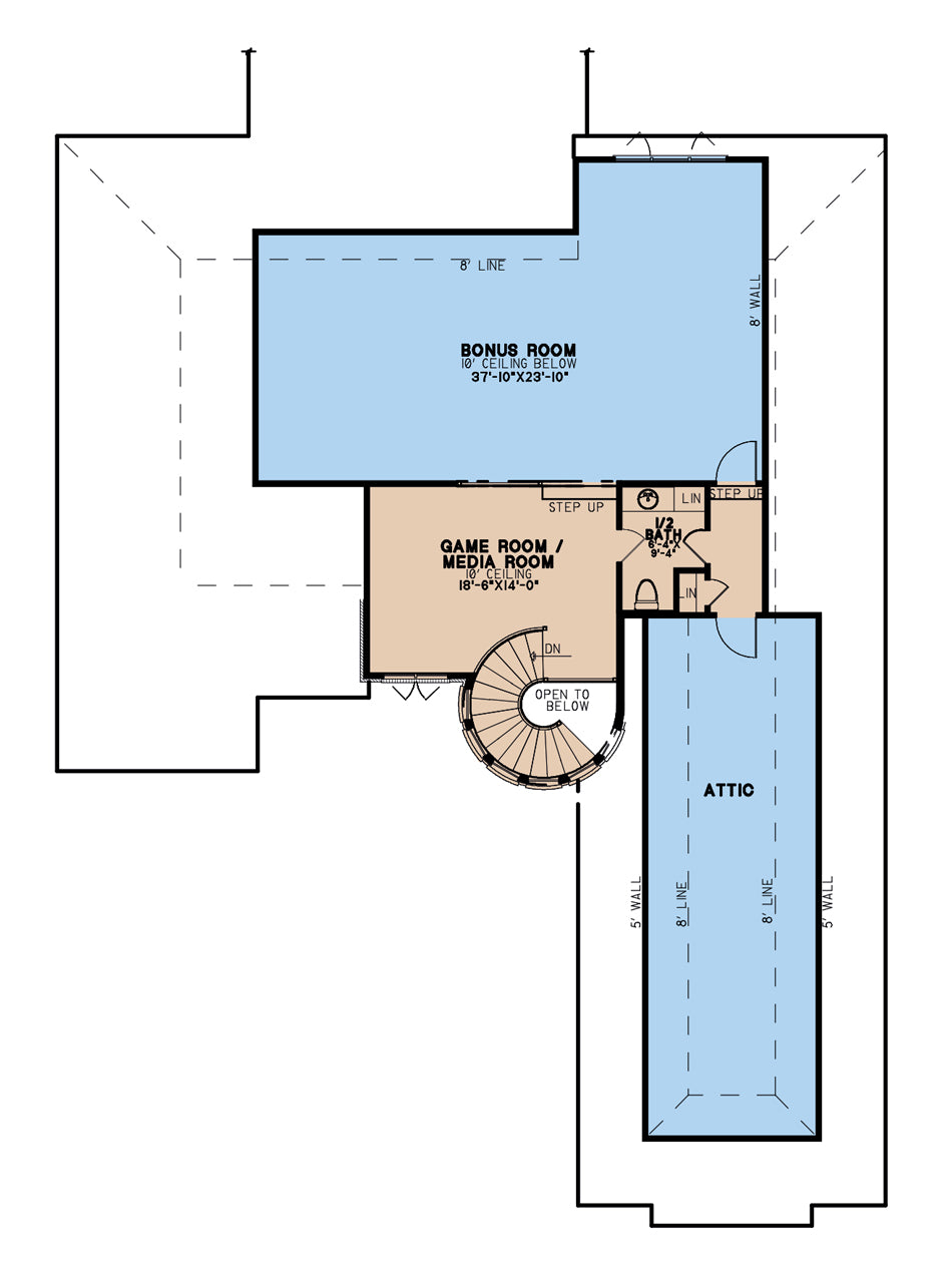
- Upper-level bonus: Ascend the spiral staircase to reach a game/media room, optional bonus room with full bath, and a walk-out attic for storage or future expansion.
- Ample porch & outdoor space: With about 552 square feet of porch area (front and rear), the design invites outdoor seating, grilling, and enjoyment of natural views.
Home Specifications
- Total Living Space: 3050
- Ridge Height (Ft.) 32
- Main Floor (Sq. Ft.): 2667 Sq.Ft
- Ridge Height (In.) 0
- Upper Floor (Sq. Ft.): 383 Sq.Ft.
- Main Ceiling Height: 9
- Lower Floor (Sq. Ft.): N/A
- Upper Ceiling Height: 8
- Porch (Sq. Ft.): 552 Sq.Ft.
- Lower Ceiling Height: N/A
- Garage (Sq. Ft.): 624 Sq.Ft.
- Garage: 2 Bay Yes
- Bonus (Sq.Ft): 806 Sq.Ft.
- Garage/Carport Type:Side Load and Court Yard Side Load and Court Yard
- Bedrooms: 3
- Carport: No
- Full Baths: 2
- Roof Pitch: 12:12
- Half Baths: 2
- Porch Roof Pitch: N/A
- Stories: 1.5
- Wall Construction: 2x4
- Lower Bonus (Sq. Ft.): N/A
- Vaulted Ceiling: No
- Depth (Ft): 90
- Width (Ft): 62
- Depth (In.) 6
- Width (In.) N/A
- Total Sq. Ft. 5032 Sq.Ft.
- Customizable: Yes
Key Features
- Arched Entry
- Bonus/Game and Media Room
- Covered Front Porch
- Covered Rear Porch
- Formal Dining Room
- Great Room
- Grilling Porch
- Jack & Jill Bathroom
- Kitchen Island
- Main Floor Master
- Mudroom
- Open Floor Plan House Plans
- Outdoor Living Space
- Peninsula/Eating Bar
- Split Bedroom Design
- Walk-in Closet
- Walk-in-Pantry
Plan Collections
- European House Plans Collection
- Michael E. Nelson House Plans Collection
Plan Styles
- European House Plans
- French Country House Plans
- Luxury House Plans
- Traditional House Plans





