House Plan 5182 Primrose Place, Multi Family House Plan
House Plan:MEN 5182
$2,050.00
/
Shipping calculated at checkout.
Add to Wishlist
Remove from Wishlist
[View Wishlist]
Please log in or create account to add the product in wishlist.
Wishlist is not saved permanently yet. Please log in or create account to save it.
Or order by phone: (870) 931-5777
Floor Plans
Description
House Plans with Investment & Curb Appeal: Primrose Place Multi‑Family Plan MEN 5182
If you’re reviewing house plans looking for a design that feels like home but works like an investment, Primrose Place Plan MEN 5182 is a superb option. This charming duplex blends traditional style with multi‑family practicality—ideal for landlords, extended families, or anyone seeking high rental appeal.
What Makes Primrose Place a Top Choice Among House Plans
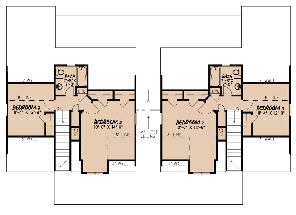
- Smart twin‑unit layout: Each side of the duplex offers about 1,595 square feet of living space, with 4 bedrooms and 3 full baths in the entire unit.
- Comfortable ceiling heights: The main level features 9‑foot ceilings, while the upper story is set at 8 feet—ensuring rooms feel open without wasting vertical space.
- Welcoming exterior: Stone‑based columns, dormer windows, and a covered front porch give this duplex the warmth and curb appeal of single‑family homes.
- Porch space that adds value: Nearly 913 square feet of porch areas create appealing outdoor spaces for each unit—perfect for relaxed front‑porch moments or porch gatherings.
- Mirror‑image design: The two units are duplicates of each other, separated by a 6‑foot breezeway—making construction more efficient and tenant layouts balanced.
- Balanced floor plan: The main floor includes most of the living spaces for each unit; bedrooms upstairs give privacy and separation.
Entire duplex Main Level H/C SQ.FT is 2,166 Entire duplex Upper Level H/C SQ.FT is 1,024 Porch total SQ.FT is 913 Total SQ.FT is 4,103
These duplexes are the mirror duplicates of one another and a separated by a 6’ breezeway
Home Specifications
- Total Living Space: 1595
- Ridge Height (Ft.) 23
- Main Floor (Sq. Ft.): 1083 Sq.Ft
- Ridge Height (In.) 0
- Upper Floor (Sq. Ft.): 512 Sq.Ft.
- Main Ceiling Height: 9
- Lower Floor (Sq. Ft.): N/A
- Upper Ceiling Height: 8
- Porch (Sq. Ft.): 913 Sq.Ft.
- Lower Ceiling Height: N/A
- Garage (Sq. Ft.): N/A
- Garage: No
- Bonus (Sq.Ft): N/A
- Garage/Carport Type:N/A N/A
- Bedrooms: 4
- Carport: N/A
- Full Baths: 3
- Roof Pitch: 9:12
- Porch Roof Pitch: 5:12
- Stories: 1.5
- Wall Construction: 2x4
- Lower Bonus (Sq. Ft.): N/A
- Vaulted Ceiling: Yes
- Depth (Ft): 48
- Width (Ft): 69
- Depth (In.) 6
- Width (In.) 4
- Total Sq. Ft. 2508 Sq.Ft.
- Customizable: Yes
Key Features
- Covered Front Porch
- Covered Rear Porch
- Formal Dining Room
- Main Floor Master
- Open Floor Plan House Plans
- Peninsula/Eating Bar
- Split Bedroom Design
- Walk-in-Pantry
- Wrap-Around Porch
Plan Collections
- Michael E. Nelson House Plans Collection
- Modern Farmhouse Plans
- Multi-Family House Plans
Plan Styles
- Arts & Crafts House Plans
- Country Home House Plans
- Craftsman House Plans
- Farmhouse House Plans
- Mountain House Plans
- Rustic House Plans





