House Plan 1464 Camp Fishtale, Multi-Family House Plan
House Plan:NDG 1464
$2,050.00
/
Add to Wishlist
Remove from Wishlist
[View Wishlist]
Please log in or create account to add the product in wishlist.
Wishlist is not saved permanently yet. Please log in or create account to save it.
Or order by phone: (870) 931-5777
Floor Plans
Description
House Plans That Capture Cabin Charm: Camp Fishtale Plan NDG 1464
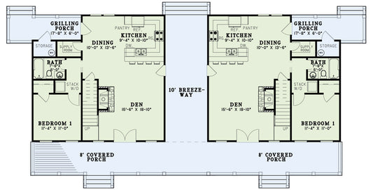
When searching for house plans that combine rustic character with efficient, flexible living, Camp Fishtale delivers. House Plan NDG 1464 is a cozy, lodge-style design that works perfectly as a vacation retreat, lakefront rental, or compact multi-family home.
Why Camp Fishtale Is a Standout House Plan
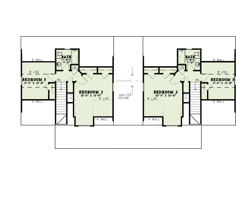
- Smart use of space: With 1,379 square feet of living area, this plan offers 3 bedrooms and 2 full bathrooms across one and a half stories—maximizing function without sacrificing comfort.
- Rustic exterior appeal: Timber accents, stone columns, and a large covered front porch give this home a classic cabin vibe, ideal for wooded, mountain, or lakeside lots.
- Open main living: The den, kitchen, and dining area flow together in an open-concept layout centered around a cozy stone fireplace—perfect for gathering after a day outdoors.
- Main-floor convenience: The first level includes Bedroom 1, a full bath, and laundry area—great for accessibility and day-to-day use.
- Private upper level: Two upstairs bedrooms share a second full bath, giving guests or family members a comfortable, semi-private space to relax.
- Outdoor living ready: With 301 square feet of covered porch space, including a grilling porch in the back, the design encourages indoor-outdoor living and entertaining.
Home Specifications
- Total Living Space: 1379
- Ridge Height (Ft.) 22
- Main Floor (Sq. Ft.): 867 Sq.Ft
- Ridge Height (In.) 8
- Upper Floor (Sq. Ft.): 512 Sq.Ft.
- Main Ceiling Height: 9
- Lower Floor (Sq. Ft.): N/A
- Upper Ceiling Height: 8
- Porch (Sq. Ft.): 301 Sq.Ft.
- Lower Ceiling Height: N/A
- Garage (Sq. Ft.): 253 Sq.Ft.
- Garage: No
- Bonus (Sq.Ft): N/A
- Garage/Carport Type:N/A N/A
- Bedrooms: 3
- Carport: N/A
- Full Baths: 2
- Roof Pitch: 9:12
- Porch Roof Pitch: 5:12
- Stories: 1.5
- Wall Construction: 2x4
- Lower Bonus (Sq. Ft.): N/A
- Vaulted Ceiling: No
- Depth (Ft): 38
- Width (Ft): 73
- Depth (In.) 4
- Width (In.) 4
- Total Sq. Ft. 1933 Sq.Ft.
- Customizable: Yes
Key Features
- Covered Front Porch
- Covered Rear Porch
- Grilling Porch
- No Formal Dining
- Open Floor Plan House Plans
- Peninsula/Eating Bar
- Split Bedroom Design
- Walk-in Closet
- Walk-in-Pantry
- Wrap-Around Porch
Plan Collections
- Multi-Family House Plans
- Riverbend Cabin House Plans Collection
Plan Styles
- Country Home House Plans
- Craftsman House Plans
- Lake House Plans
- Low Country House Plans
- Rustic House Plans
- Southern House Plans
- Traditional House Plans















