House Plan 5221 Loftin Place, Farmhouse House Plan
House Plan:MEN 5221
$1,200.00
/
Shipping calculated at checkout.
Add to Wishlist
Remove from Wishlist
[View Wishlist]
Please log in or create account to add the product in wishlist.
Wishlist is not saved permanently yet. Please log in or create account to save it.
Or order by phone: (870) 931-5777
Floor Plans
Description
A Modern Farmhouse Designed for Today's Living
When searching for house plans that combine timeless charm with modern functionality, House Plan MEN 5221 – Loftin Place stands out. This thoughtfully designed home offers 1,967 square feet of living space, featuring 4 bedrooms, 2 full baths, and 1 half bath. Its open-concept layout and classic farmhouse elements make it an ideal choice for families seeking both style and practicality.
Key Features of Loftin Place
- Spacious Living Areas: The vaulted ceilings with exposed timber beams in the great room and kitchen create an airy, open atmosphere, perfect for entertaining and family gatherings.
- Functional Kitchen Design: A large island with seating for five serves as both a prep area and a casual dining spot. The kitchen also boasts ample counter space and a generous pantry, catering to culinary enthusiasts.
- Private Master Suite: The master bedroom offers a serene retreat, complete with a well-appointed en-suite bathroom and a walk-in closet, ensuring comfort and privacy.
- Versatile Bedrooms: The additional three bedrooms are designed with flexibility in mind, suitable for family members, guests, or as home offices.
- Outdoor Living: A rear grilling porch extends the living space outdoors, ideal for alfresco dining and relaxation.
- Traditional Entry: The foyer provides a welcoming entry point, offering a space to greet guests and transition into the main living areas.
Home Specifications
- Total Living Space: 1967
- Ridge Height (Ft.) 25
- Main Floor (Sq. Ft.): 1967 Sq.Ft
- Ridge Height (In.) 7
- Upper Floor (Sq. Ft.): N/A
- Main Ceiling Height: 9
- Lower Floor (Sq. Ft.): N/A
- Upper Ceiling Height: 8
- Porch (Sq. Ft.): 204 Sq.Ft.
- Lower Ceiling Height: N/A
- Garage (Sq. Ft.): 949 Sq.Ft.
- Garage: 3 Bay Yes
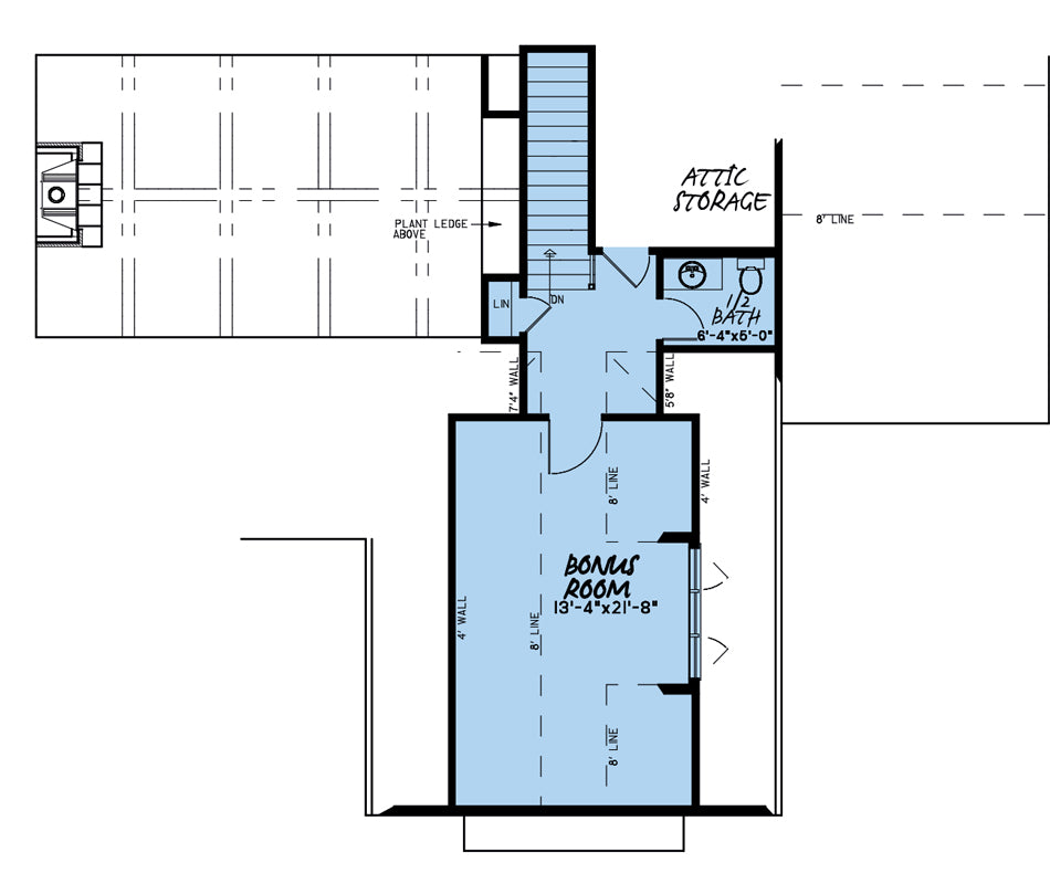
- Bonus (Sq.Ft): 429 Sq.Ft.
- Garage/Carport Type:Side Load and Front Load Side Load and Front Load
- Bedrooms: 4
- Carport: No
- Full Baths: 2
- Roof Pitch: 10:12
- Half Baths: 1
- Porch Roof Pitch: N/A
- Stories: 1.0
- Wall Construction: 2x6
- Lower Bonus (Sq. Ft.): N/A
- Vaulted Ceiling: Yes
- Depth (Ft): 65
- Width (Ft): 72
- Depth (In.) N/A
- Width (In.) 10
- Total Sq. Ft. 3549 Sq.Ft.
- Customizable: Yes
Key Features
- Bonus Room Over Garage
- Covered Front Porch
- Covered Rear Porch
- Formal Dining Room
- Great Room
- Grilling Porch
- Home Office/Study
- Kitchen Island
- Main Floor Master
- Mudroom
- Open Floor Plan House Plans
- Peninsula/Eating Bar
- Single Story
- Split Bedroom Design
- Walk-in-Pantry
Plan Collections
- Modern Farmhouse Plans
- Michael E. Nelson House Plans Collection
Plan Styles
- Craftsman House Plans
- Farmhouse House Plans
- Traditional House Plans



