House Plan 5237 St. Thomas Place, Farmhouse House Plan
House Plan:MEN 5237
$1,350.00
/
Shipping calculated at checkout.
Add to Wishlist
Remove from Wishlist
[View Wishlist]
Please log in or create account to add the product in wishlist.
Wishlist is not saved permanently yet. Please log in or create account to save it.
Or order by phone: (870) 931-5777
Floor Plans
Description
House Plans That Blend Farmhouse Charm with Modern Living — Presenting St. Thomas Place
Looking for house plans that deliver both style and practical comfort? House Plan MEN 5237 – St. Thomas Place is a beautifully designed farmhouse plan that brings together architectural character, flexible space, and smart living features. With just under 1,900 square feet of main living area, four bedrooms, two full baths, a half bath, and a three‑bay side‑load garage, this plan offers big possibilities in a manageable footprint.
Standout Features of St. Thomas Place
- Balanced size & layout: With 1,897 sq ft on the main level plus a 395 sq ft bonus room above the garage, this plan offers both efficient living and room to expand.
- Bedroom flexibility: Four bedrooms give you options—whether you need a home office, guest space, or room for family growth.
- Bathroom convenience: Two full baths plus a half bath enhance daily usability and reduce morning bottlenecks.
- Three‑bay side‑load garage: Garage space is generous, and the side entry helps maintain clean curb appeal.
- Inviting farmhouse exterior: A covered front porch with exposed beams and stone-accented columns creates strong curb presence without feeling overdone.
- Thoughtful entry sequence: A defined foyer separates the entry from the living areas, giving space to transition before entering the heart of the home.
- Open great room with vaulted ceilings: The great room features a vaulted ceiling and exposed beams, along with a large stone fireplace, delivering drama and warmth. A sliding glass door leads to a rear grilling porch.
- Kitchen that connects: A wide island ties the kitchen to the great room and serves as an informal dining bar for five. The kitchen also includes plenty of counter space, a large range area, and a walk-in pantry.
- Dining & natural light: The dining space, adjacent to the kitchen, is surrounded by windows on two sides for light and outdoor connection.
- Smart utility flow: Entering from the garage leads into a kids’ nook or mudroom, with bench storage and direct access to both the kitchen and laundry areas. There’s even an option to connect the laundry room and master closet with a pocket door.
- Master suite retreat: Vaulted ceilings, a wall of rear-facing windows, dual vanities, a freestanding tub, a large glass shower, a private water closet, and a sizable walk-in closet create a relaxing master retreat.
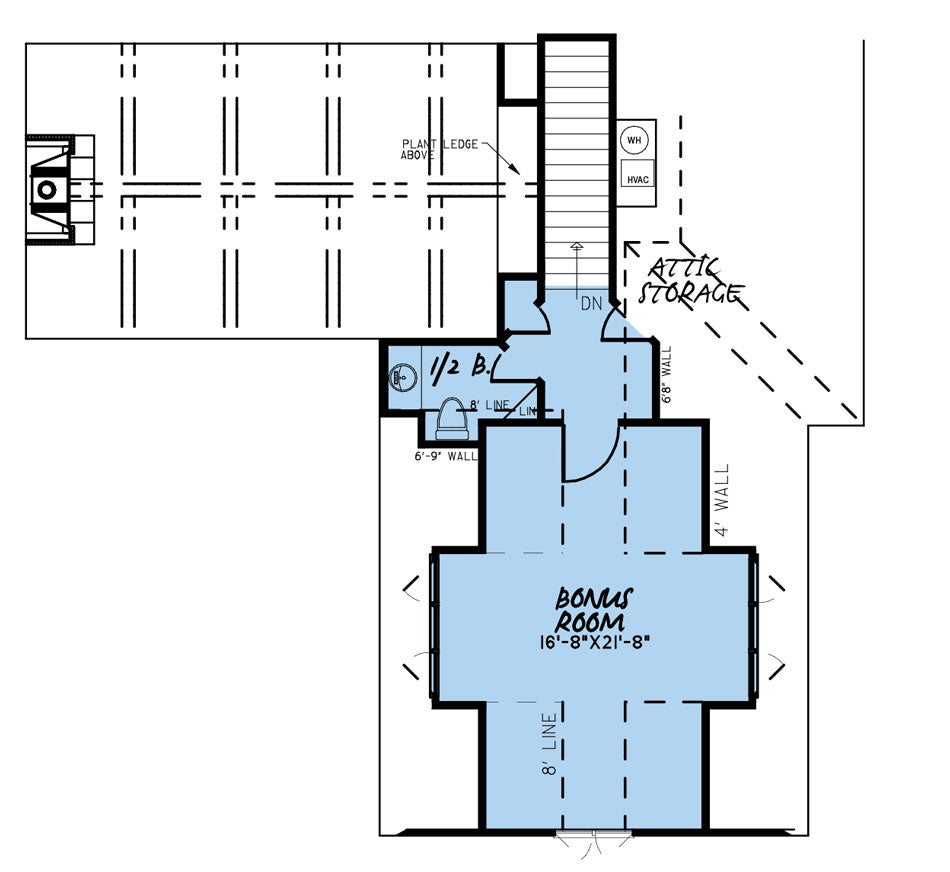
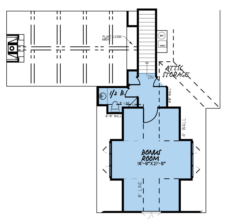
- Bonus room advantage: The upper bonus room over the garage includes a half bath and can be used for a game room, media space, craft area, or future expansion.
Home Specifications
- Total Living Space: 1897
- Ridge Height (Ft.) 25
- Main Floor (Sq. Ft.): 1897 Sq.Ft
- Ridge Height (In.) 10
- Upper Floor (Sq. Ft.): N/A
- Main Ceiling Height: 9
- Lower Floor (Sq. Ft.): N/A
- Upper Ceiling Height: 8
- Porch (Sq. Ft.): 373 Sq.Ft.
- Lower Ceiling Height: N/A
- Garage (Sq. Ft.): 902 Sq.Ft.
- Garage: 3 Bay Yes
- Bonus (Sq.Ft): 395 Sq.Ft.
- Garage/Carport Type:Side Load Side Load
- Bedrooms: 4
- Carport: No
- Full Baths: 2
- Roof Pitch: 10:12
- Half Baths: 1
- Porch Roof Pitch: 3:12
- Stories: 1.0
- Wall Construction: 2x4
- Lower Bonus (Sq. Ft.): N/A
- Vaulted Ceiling: Yes
- Depth (Ft): 64
- Width (Ft): 72
- Depth (In.) 8
- Width (In.) 6
- Total Sq. Ft. 3567 Sq.Ft.
- Customizable: Yes
Key Features
- Bonus Room Over Garage
- Covered Front Porch
- Covered Rear Porch
- Formal Dining Room
- Great Room
- Grilling Porch
- Home Office/Study
- Kitchen Island
- Main Floor Master
- Mudroom
- Open Floor Plan House Plans
- Peninsula/Eating Bar
- Single Story
- Split Bedroom Design
- Walk-in Closet
- Walk-in-Pantry
Plan Collections
- Modern Farmhouse Plans
- Michael E. Nelson House Plans Collection
Plan Styles
- Craftsman House Plans
- Farmhouse House Plans
- Rustic House Plans









