House Plan 5256 Cody Ridge, Farmhouse House Plan
House Plan:MEN 5256
$1,200.00
/
Shipping calculated at checkout.
Add to Wishlist
Remove from Wishlist
[View Wishlist]
Please log in or create account to add the product in wishlist.
Wishlist is not saved permanently yet. Please log in or create account to save it.
Or order by phone: (870) 931-5777
Floor Plans
Description
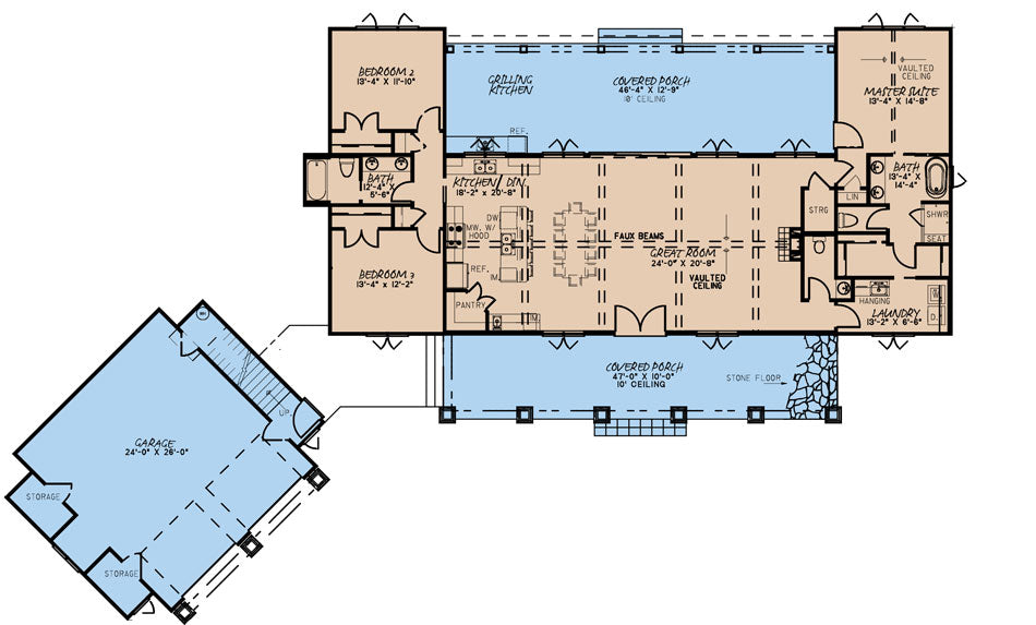
Farmhouse-Inspired House Plans with Modern Comfort — Cody Ridge
If you're in search of house plans that mix rustic charm with contemporary livability, House Plan MEN 5256 – Cody Ridge delivers beautifully. From the Farmhouse collection, this single-level layout spans about 2,050 sq. ft., thoughtfully designed for style, functionality, and serene everyday living.
- Garage: Detached 2-bay garage with upstairs bonus area
- Exterior Style: Modern farmhouse aesthetic with crisp white shake siding, stone-trimmed pillars, and rustic wood accents
- Great Room: Vaulted ceilings with faux timber beams, a central fireplace, and French doors opening to a covered rear porch
- Kitchen & Dining: Spacious open layout with a high‑low bar for seating, generous counters, a corner pantry, and easy flow out to the porch
-
Split Bedroom Layout:
- Bedrooms 2 & 3 flank a shared bath and include step-in closets
- The master suite is accessible via the great room and includes vaulted ceiling, dual vanity, soaking tub, enclosed shower, walk-in closet, and direct porch access - Laundry Access: The master closet connects to the laundry room, creating a seamless transition from clean to closet
- Garage Bonus Space: Above the detached garage sits a bonus room with full bathroom—ideal as a guest suite, studio, or private retreat
- Outdoor Living: A broad covered rear porch stretches the living space outward—perfect for grilling, relaxing, or entertaining
Home Specifications
- Total Living Space: 2050
- Ridge Height (Ft.) 24
- Main Floor (Sq. Ft.): 2050 Sq.Ft
- Ridge Height (In.) 0
- Upper Floor (Sq. Ft.): N/A
- Main Ceiling Height: 9
- Lower Floor (Sq. Ft.): N/A
- Upper Ceiling Height: 9
- Porch (Sq. Ft.): 1061 Sq.Ft.
- Lower Ceiling Height: N/A
- Garage (Sq. Ft.): 839 Sq.Ft.
- Garage: 2 Bay Yes
- Bonus (Sq.Ft): 503 Sq.Ft.
- Garage/Carport Type:Angled and Detatched Angled and Detatched
- Bedrooms: 3
- Carport: N/A
- Full Baths: 3
- Roof Pitch: 10:12
- Half Baths: 1
- Porch Roof Pitch: 5:12
- Stories: 1.0
- Wall Construction: 2x4
- Lower Bonus (Sq. Ft.): N/A
- Vaulted Ceiling: Yes
- Depth (Ft): 70
- Width (Ft): 112
- Depth (In.) 7
- Width (In.) 11
- Total Sq. Ft. 4453 Sq.Ft.
- Customizable: Yes
Key Features
- Bonus Room Over Garage
- Covered Front Porch
- Covered Rear Porch
- Great Room
- Grilling Porch
- Kitchen Island
- Main Floor Master
- No Formal Dining
- Open Floor Plan House Plans
- Outdoor Kitchen
- Peninsula/Eating Bar
- Single Story
- Split Bedroom Design
- Walk-in Closet
- Walk-in-Pantry
Plan Collections
- Modern Farmhouse Plans
- Michael E. Nelson House Plans Collection
- Rustic Ridge House Plans Collection
Plan Styles
- Craftsman House Plans
- Farmhouse House Plans
- Rustic House Plans



