House Plan 1462 Calera Court, Multi-Family House Plan
House Plan:NDG 1462
$1,100.00
/
Shipping calculated at checkout.
Add to Wishlist
Remove from Wishlist
[View Wishlist]
Please log in or create account to add the product in wishlist.
Wishlist is not saved permanently yet. Please log in or create account to save it.
Or order by phone: (870) 931-5777
Floor Plans
Description
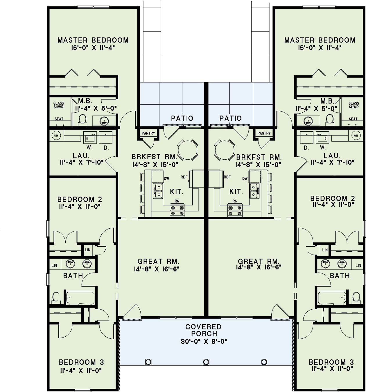
House Plans Designed for Smart Living: Calera Court Plan NDG 1462
If you're exploring house plans with multi-family potential, investment appeal, or side-by-side living, Calera Court Plan NDG 1462 offers a thoughtful and efficient duplex layout with all the charm of a traditional single-family home. Each side of this symmetrical plan provides spacious comfort, making it ideal for extended families, rental income, or community developments.
Key Features of Calera Court
- Multi-family efficiency: This duplex-style design includes two identical living units. Each side features 1,344 square feet of heated living space, totaling 2,688 square feet for the entire structure.
- Three-bedroom layout per unit: Each unit includes a private master suite located at the rear, plus two additional bedrooms at the front that share a full bathroom—perfect for families or tenants.
- Open living space: The heart of each home centers around a spacious great room, breakfast nook, and an open kitchen with an eat-at bar—creating flow and comfort for daily life.
- Covered front porch entry: Guests are welcomed by a covered entry that opens into a dedicated foyer, adding a sense of arrival and privacy from the main living areas.
- Rear-located laundry: A tucked-away laundry room sits near the master suite, streamlining function and convenience.
- Outdoor living: Each unit includes 120 square feet of porch space for relaxed outdoor enjoyment.
Entire duplex Main Level H/C SQ.FT is 2,688 Porch total SQ.FT is 240 Total SQ.FT is 2,928
Home Specifications
- Total Living Space: 1344
- Ridge Height (Ft.) 23
- Main Floor (Sq. Ft.): 1344 Sq.Ft
- Ridge Height (In.) 6
- Upper Floor (Sq. Ft.): N/A
- Main Ceiling Height: 9
- Lower Floor (Sq. Ft.): N/A
- Upper Ceiling Height: N/A
- Porch (Sq. Ft.): 120 Sq.Ft.
- Lower Ceiling Height: N/A
- Garage (Sq. Ft.): N/A
- Garage: No
- Bonus (Sq.Ft): N/A
- Garage/Carport Type:N/A N/A
- Bedrooms: 3
- Carport: N/A
- Full Baths: 2
- Roof Pitch: 8:12
- Porch Roof Pitch: N/A
- Stories: 1.0
- Wall Construction: 2x4
- Lower Bonus (Sq. Ft.): N/A
- Vaulted Ceiling: No
- Depth (Ft): 65
- Width (Ft): 54
- Depth (In.) 2
- Width (In.) N/A
- Total Sq. Ft. 1464 Sq.Ft.
- Customizable: Yes
Key Features
- Covered Front Porch
- Decks Patios Balconies
- Great Room
- Main Floor Master
- No Formal Dining
- Nook/Breakfast Area
- Open Floor Plan House Plans
- Peninsula/Eating Bar
Plan Collections
- Multi-Family House Plans
Plan Styles
- Country Home House Plans
- Farmhouse House Plans
- Low Country House Plans
- Southern House Plans
- Traditional House Plans



