House Plan 1216 River Falls, Riverbend House Plan
Please log in or create account to add the product in wishlist.
Wishlist is not saved permanently yet. Please log in or create account to save it.
Or order by phone: (870) 931-5777
Floor Plans
Description
NDG 1216 River Falls – A Rustic, View‑Friendly House Plan Perfect for Nature and Comfort
NDG 1216 River Falls is a charming 1.5‑story house plan offering about 2,207 square feet of living space, designed to deliver both comfort and rustic charm. This house plan is ideal for lake, river, or mountain properties — or any site where natural surroundings and outdoor living matter. With three bedrooms, two full bathrooms, and one half bath (on the main level), this plan balances efficient layout with inviting living areas.
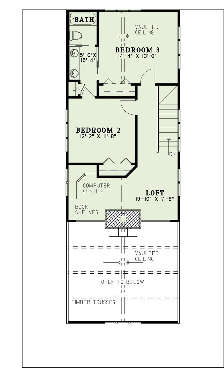
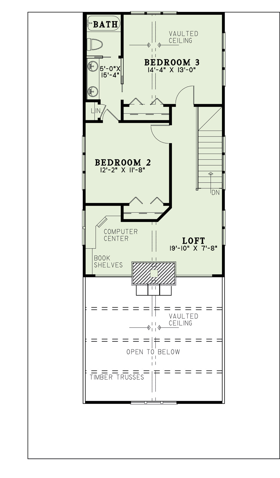
The design centers around a spacious great room with vaulted ceilings that connects to a generous dining space separated only by a pass-through fireplace — creating a warm, open gathering area perfect for family living or hosting guests. The main-floor master suite offers privacy and convenience. Upstairs, a loft space opens to the view and leads to two additional bedrooms and a full bath — making the upper area ideal for children, guests, or as a flexible bonus space.
This house plan features a large covered wrap-around porch and rear deck that draw the outdoors in, inviting morning coffee, evening relaxation, or entertaining while enjoying scenic views. The thoughtful layout and rustic styling make NDG 1216 River Falls a house plan that blends practicality with the relaxed charm of a vacation home or permanent residence in a natural setting.
Key Highlights of House Plan NDG 1216 River Falls
- 1.5-story house plan with approximately 2,207 sq. ft. of living space
- Three bedrooms, providing flexibility for family, guests, or home office use
- Two full bathrooms plus a main-level half bath for convenience
- Vaulted ceilings in the great room create an open, airy living space
- Great room connected to the dining area by a pass-through fireplace — ideal for cozy living and entertaining
- Main-floor master suite for privacy and easy access
- Loft upstairs plus two additional bedrooms and full bath — perfect for kids, guests, or flexible use
- Covered wrap-around porch and rear deck for enhanced outdoor living and enjoying scenic surroundings
- Rustic, nature‑inspired styling suitable for lakefront, riverfront, mountain, or wooded properties
- House plan design that balances comfortable living with retreat‑style appeal
Please note: Choosing the basement option will remove the half bath.
Home Specifications
- Total Living Space: 2207
- Ridge Height (Ft.) 23
- Main Floor (Sq. Ft.): 1463 Sq.Ft
- Ridge Height (In.) 4
- Upper Floor (Sq. Ft.): 744 Sq.Ft.
- Main Ceiling Height: 9
- Lower Floor (Sq. Ft.): N/A
- Upper Ceiling Height: 8
- Porch (Sq. Ft.): 891 Sq.Ft.
- Lower Ceiling Height: N/A
- Garage (Sq. Ft.): N/A
- Garage: No
- Bonus (Sq.Ft): N/A
- Garage/Carport Type:N/A N/A
- Bedrooms: 3
- Carport: N/A
- Full Baths: 2
- Roof Pitch: 12:12
- Half Baths: 1
- Porch Roof Pitch: 4:12
- Stories: 1.5
- Wall Construction: 2x4
- Lower Bonus (Sq. Ft.): N/A
- Vaulted Ceiling: Yes
- Depth (Ft): 76
- Width (Ft): 36
- Depth (In.) 8
- Width (In.) 6
- Total Sq. Ft. 3098 Sq.Ft.
- Customizable: Yes
Key Features
- Covered Front Porch
- Covered Rear Porch
- Decks Patios Balconies
- Great Room
- Grilling Porch
- Jack & Jill Bathroom
- Loft
- Main Floor Master
- Narrow Lot House Plans
- No Formal Dining
- Open Floor Plan House Plans
- Peninsula/Eating Bar
- Split Bedroom Design
- Vaulted High Cathedral Ceiling
- Walk-in Closet
- Walk-in-Pantry
- Wrap-Around Porch
Plan Collections
- Riverbend Cabin House Plans Collection
Plan Styles
- Barndominium House Plans
- Lake House Plans
- Country Home House Plans
- Low Country House Plans
- Mountain House Plans
- Rustic House Plans
- Southern House Plans
- Traditional House Plans









