House Plan 611 Polly Anna, Colonial Classical Federal House Plan
Please log in or create account to add the product in wishlist.
Wishlist is not saved permanently yet. Please log in or create account to save it.
Or order by phone: (870) 931-5777
Floor Plans
Description
House Plan 611 Polly Anna – Luxury 6‑Bedroom House Plan | NDG 611
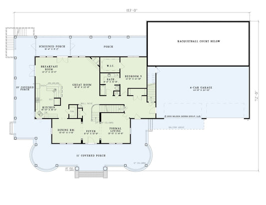
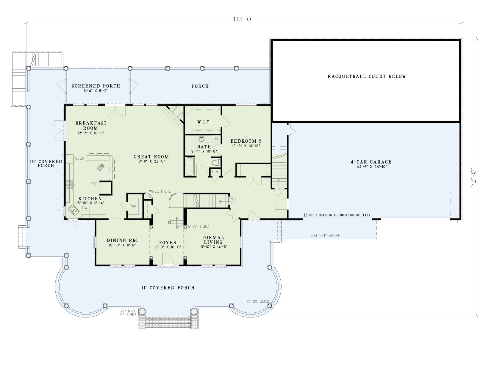
Step into timeless elegance with House Plan 611 Polly Anna, a remarkable luxury house plan that combines classic design with expansive modern living. This stunning three‑story home offers 6 bedrooms and 5 full baths across approximately 6,903 sq ft of total living space, making it perfect for large families, multi‑generational living, or homeowners who love to entertain.
Designed in a Colonial Classical Federal style that evokes gracious Southern charm, this home features a wraparound porch and multiple balconies that invite you to enjoy the outdoors. Inside, you’ll find a thoughtful layout with a grand master suite that serves as a private retreat, complete with a generous walk‑in closet and access to a screened porch. Bedrooms throughout the home offer walk‑in closets, and several have their own bathrooms, ensuring comfort and privacy for family and guests alike.
This plan also includes outstanding lifestyle amenities such as a 4‑car front‑load garage, a large game room, dedicated home theater, and a private office — ideal for both work and play. With its expansive footprint, elegant architectural details, and multiple living spaces, House Plan 611 Polly Anna stands out among premium house plans that deliver style, space, and everyday luxury.
**Raquet Ball Court is 1078 Sq. FT**
Home Specifications
- Total Living Space: 6903
- Ridge Height (Ft.) 38
- Main Floor (Sq. Ft.): 2181 Sq.Ft
- Ridge Height (In.) 3
- Upper Floor (Sq. Ft.): 2663 Sq.Ft.
- Main Ceiling Height: 10
- Lower Floor (Sq. Ft.): 2059 Sq.Ft.
- Upper Ceiling Height: 9
- Porch (Sq. Ft.): 4008 Sq.Ft.
- Lower Ceiling Height: 10
- Garage (Sq. Ft.): 1128 Sq.Ft.
- Garage: 4 Bay Yes
- Bonus (Sq.Ft): N/A
- Garage/Carport Type:Front Load Front Load
- Bedrooms: 6
- Carport: N/A
- Full Baths: 5
- Roof Pitch: 10:12
- Porch Roof Pitch: N/A
- Stories: 3.0
- Wall Construction: 2x4
- Lower Bonus (Sq. Ft.): N/A
- Vaulted Ceiling: No
- Depth (Ft): 72
- Width (Ft): 113
- Depth (In.) N/A
- Width (In.) N/A
- Total Sq. Ft. 13117 Sq.Ft.
- Customizable: Yes
Key Features
- Balcony
- Covered Front Porch
- Covered Rear Porch
- Decks Patios Balconies
- Formal Dining Room
- Game Room
- Great Room
- Home Office/Study
- Home Theater
- Nook/Breakfast Area
- Open Floor Plan House Plans
- Outdoor Living Space
- Oversized Garage
- Peninsula/Eating Bar
- Saferoom
- Screened Porch
- Split Bedroom Design
- Walk-in Closet
- Walk-in-Pantry
- Wrap-Around Porch
Plan Collections
Plan Styles
- Classical House Plans
- Colonial Classical Federal House Plans
- Country Home House Plans
- Luxury House Plans
- Southern House Plans
- Traditional House Plans



















