House Plan 621 Birchwood Lane, French Traditional House Plan
Please log in or create account to add the product in wishlist.
Wishlist is not saved permanently yet. Please log in or create account to save it.
Or order by phone: (870) 931-5777
Floor Plans
Description
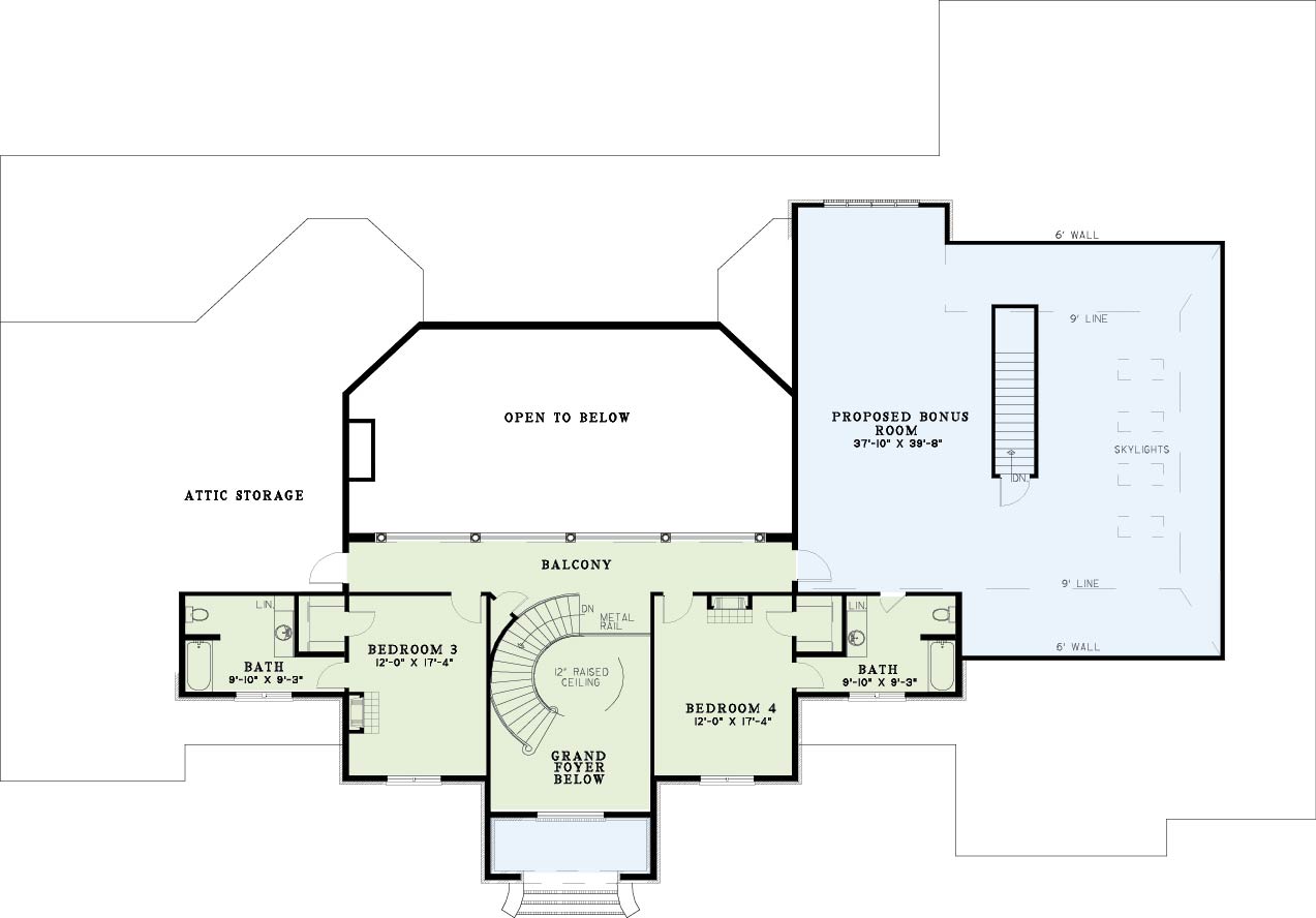
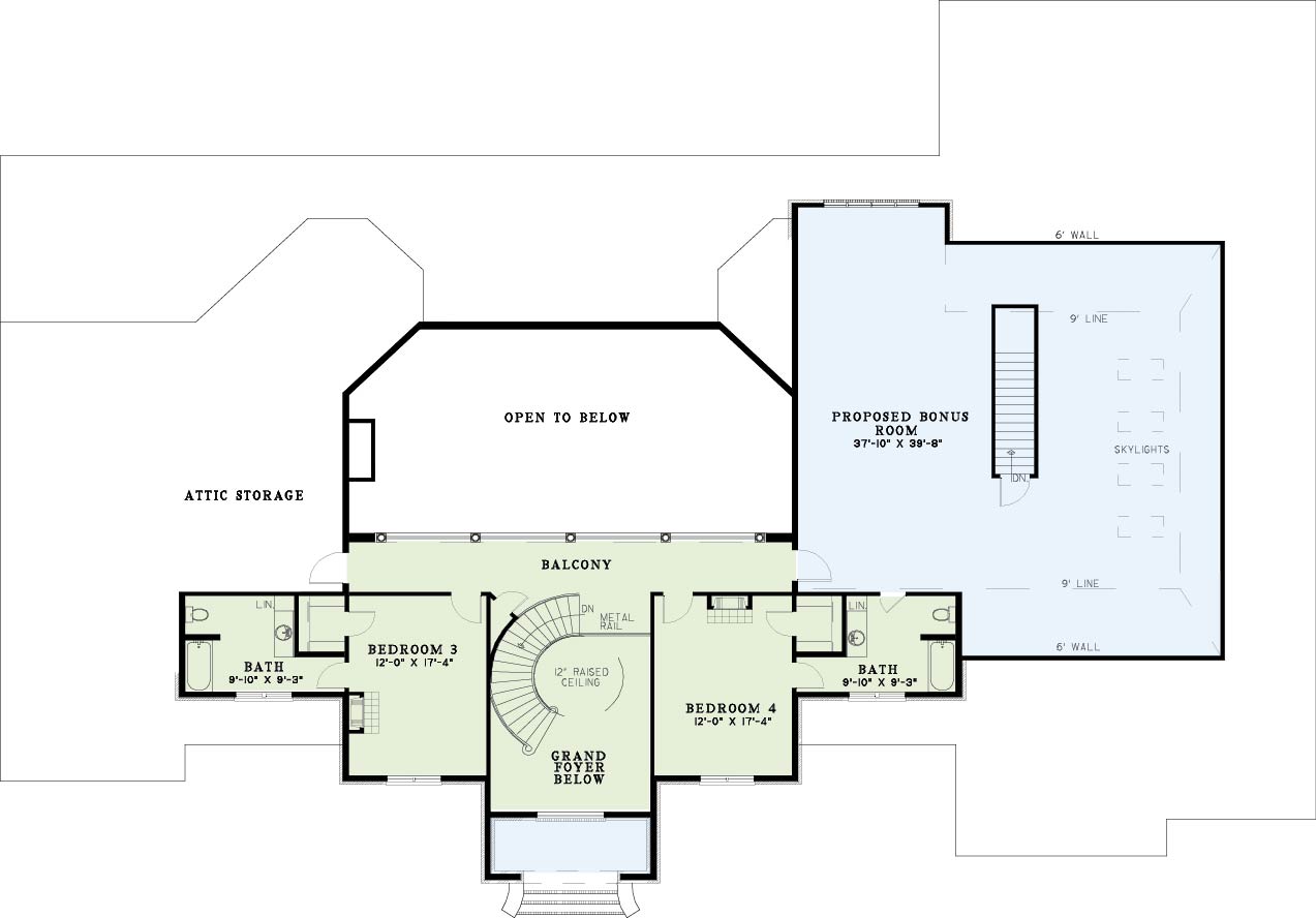
This absolutely exquisite design is a dream home come true. A Grand Foyer separates a formal Living Room and Dining Room and has stairs leading to a balcony over looking the enormous great room. The main Master Suite has a large sitting bay, private access to the Study and French door entry to a luxurious Master Bath. Upstairs, placed above the four-car garage, is a large Bonus room with skylights and an additional stairwell to the main floor Hearth Room. The expansive Kitchen adjoins both Breakfast Nook and Hearth room and is located near the second Master Suite for an abundance of options. Fireplaces are placed throughout for warmth while a rear column-lined Lanai is perfect for entertaining as well as pure relaxation.
Home Specifications
- Total Living Space: 6388
- Ridge Height (Ft.) 36
- Main Floor (Sq. Ft.): 5338 Sq.Ft
- Ridge Height (In.) 4
- Upper Floor (Sq. Ft.): 1050 Sq.Ft.
- Main Ceiling Height: 10
- Lower Floor (Sq. Ft.): N/A
- Upper Ceiling Height: 9
- Porch (Sq. Ft.): 1050 Sq.Ft.
- Lower Ceiling Height: N/A
- Garage (Sq. Ft.): 1403 Sq.Ft.
- Garage: 4 Bay Yes
- Bonus (Sq.Ft): 1460 Sq.Ft.
- Garage/Carport Type:Side Load Side Load
- Bedrooms: 4
- Carport: N/A
- Full Baths: 4
- Roof Pitch: 10:12
- Half Baths: 2
- Porch Roof Pitch: N/A
- Stories: 1.5
- Wall Construction: 2x4
- Lower Bonus (Sq. Ft.): N/A
- Vaulted Ceiling: No
- Depth (Ft): 84
- Width (Ft): 117
- Depth (In.) 8
- Width (In.) 8
- Total Sq. Ft. 10301 Sq.Ft.
- Customizable: Yes
Key Features
- Bonus Room Over Garage
- Covered Front Porch
- Covered Rear Porch
- Decks Patios Balconies
- Exercise Room
- Fireplace in Master
- Formal Dining Room
- Great Room
- Home Office/Study
- In-Law Suite Private Guest
- Kitchen Island
- Main Floor Master
- Nook/Breakfast Area
- Open Floor Plan House Plans
- Outdoor Living Space
- Oversized Garage
- Sitting Area
- Split Bedroom Design
- Walk-in Closet
- Walk-in-Pantry
Plan Collections
Plan Styles
- Classical House Plans
- European House Plans
- French Traditional House Plans
- Luxury House Plans
- Traditional House Plans











