House Plan 1414 Knobel Lane, Heritage House Plan
House Plan:NDG 1414
$1,350.00
/
Shipping calculated at checkout.
Add to Wishlist
Remove from Wishlist
[View Wishlist]
Please log in or create account to add the product in wishlist.
Wishlist is not saved permanently yet. Please log in or create account to save it.
Or order by phone: (870) 931-5777
Floor Plans
Description
Discover Knobel Lane House Plan — Heritage Charm Meets Spacious, Thoughtful Design
Knobel Lane presents a home design that combines classic exterior appeal with a flexible, family‑friendly layout. With its mix of architectural detail and generous interior space, this plan is well suited for those who want a home that’s both elegant and comfortable. Whether you’re building for growing families or seeking long‑term livability, Knobel Lane delivers a balance of character, space, and versatility.
Key Features of Knobel Lane Plan NDG 1414
- Approximately 2,860 square feet of total living space — generous yet manageable for a family home.
- Four bedrooms and four full baths — offering ample room, flexibility, and privacy for family members, guests, or multi‑use living.
- 1.5‑story layout — combines main‑floor convenience with additional upstairs living space for bedrooms, bonus rooms, or guest areas.
- Three‑bay front‑load garage — provides secure, convenient parking and extra storage capacity for vehicles or gear.
- Spacious Great Room that opens to the kitchen and breakfast room — ideal for shared family time and entertaining.
- Kitchen with center island (with sink), high bar seating, walk‑in pantry, and direct access to a formal dining room — designed for efficient cooking, meal prep, and entertaining flow.
- Breakfast room with bay window under a vaulted ceiling — a charming space for casual meals and morning light.
- Main‑floor master suite located at the rear of the home — offers privacy, convenience, and direct access to the grilling porch.
- Master bath appointed with corner whirlpool tub under a window, glass shower with bench seat, and large L‑shaped walk‑in closet with built‑in ironing board — combining comfort and practicality.
- Guest room or study on the main level with private access to a hall bathroom — flexible use as office, guest room, or private bedroom.
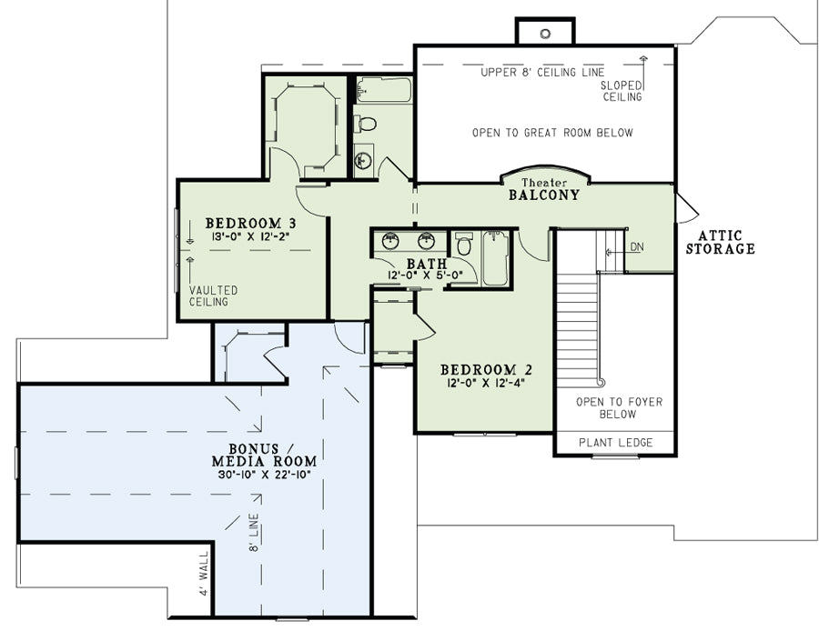
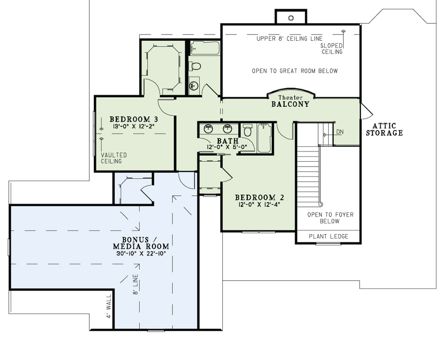
- Upstairs: two additional bedrooms with walk‑in closets and two full baths — ideal for children, guests, or shared living.
- Bonus room over the garage plus a theater-style balcony overlooking the Great Room — adds flexibility for media, hobbies, or recreation space.
- Covered grilling porch accessed from living area — perfect for outdoor dining, relaxation, or entertaining.
Home Specifications
- Total Living Space: 2860
- Ridge Height (Ft.) 32
- Main Floor (Sq. Ft.): 2095 Sq.Ft
- Ridge Height (In.) 10
- Upper Floor (Sq. Ft.): 765 Sq.Ft.
- Main Ceiling Height: 9
- Lower Floor (Sq. Ft.): N/A
- Upper Ceiling Height: 8
- Porch (Sq. Ft.): 450 Sq.Ft.
- Lower Ceiling Height: N/A
- Garage (Sq. Ft.): 866 Sq.Ft.
- Garage: 3 Bay Yes
- Bonus (Sq.Ft): 620 Sq.Ft.
- Garage/Carport Type:Front Load Front Load
- Bedrooms: 4
- Carport: N/A
- Full Baths: 4
- Roof Pitch: 12:12
- Porch Roof Pitch: N/A
- Stories: 1.5
- Wall Construction: 2x4
- Lower Bonus (Sq. Ft.): N/A
- Vaulted Ceiling: Yes
- Depth (Ft): 60
- Width (Ft): 70
- Depth (In.) 9
- Width (In.) 8
- Total Sq. Ft. 4796 Sq.Ft.
- Customizable: Yes
Key Features
- Balcony
- Bonus/Game and Media Room
- Covered Front Porch
- Covered Rear Porch
- Formal Dining Room
- Great Room
- Grilling Porch
- Home Office/Study
- In-Law Suite Private Guest
- Kitchen Island
- Main Floor Master
- Mudroom
- Nook/Breakfast Area
- Open Floor Plan House Plans
- Outdoor Living Space
- Peninsula/Eating Bar
- Split Bedroom Design
- Vaulted High Cathedral Ceiling
- Walk-in Closet
- Walk-in-Pantry
Plan Collections
- Heritage House Plans Collection
Plan Styles
- Arts & Crafts House Plans
- Country Home House Plans
- Craftsman House Plans
- Southern House Plans
- Traditional House Plans









