House Plan 5309 Cumberland Heights, Heritage House Plan
House Plan:MEN 5309
$2,050.00
/
Shipping calculated at checkout.
Add to Wishlist
Remove from Wishlist
[View Wishlist]
Please log in or create account to add the product in wishlist.
Wishlist is not saved permanently yet. Please log in or create account to save it.
Or order by phone: (870) 931-5777
Floor Plans
Description
House Plan 5309 – Cumberland Heights | Heritage House Plan
Experience timeless elegance and modern functionality with the Cumberland Heights Heritage House Plan from Nelson Design Group. This luxurious design combines classic architectural detail with a spacious, family-friendly layout—perfect for homeowners who appreciate sophistication, comfort, and room to grow.
Key Features of This House Plan:
- Expansive Living Space: Over 4,474 square feet across three levels, offering a balance of open areas for entertaining and private retreats for relaxation.
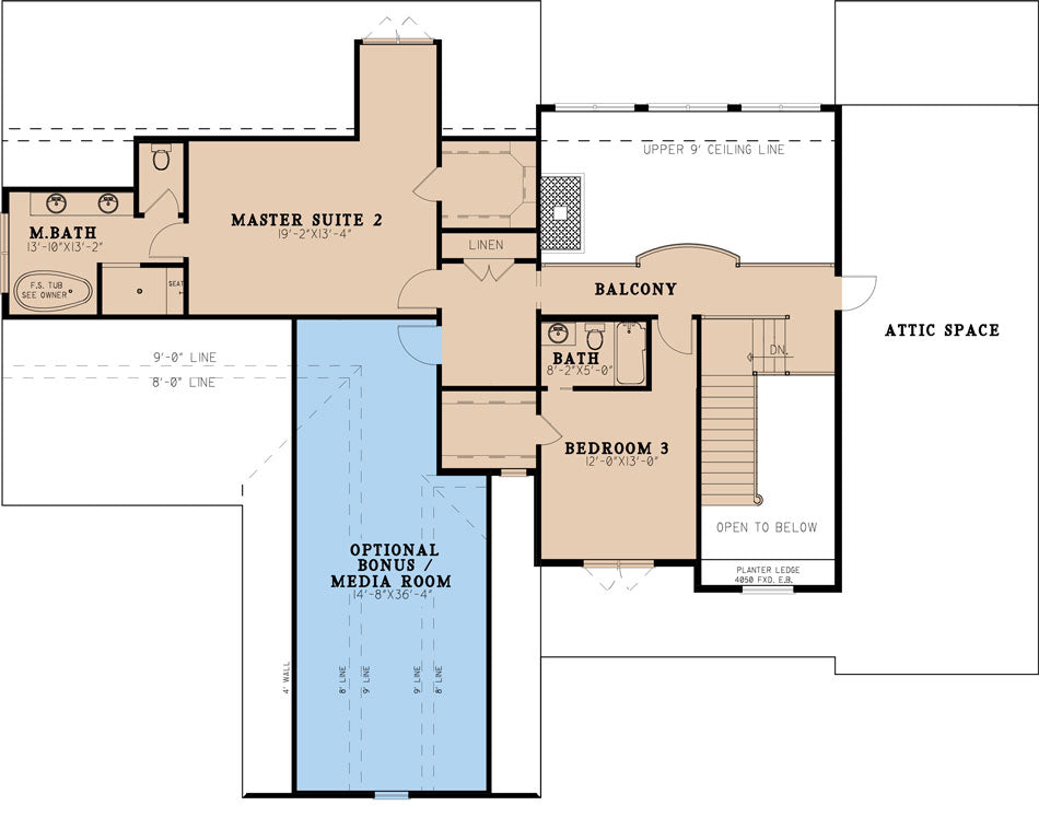
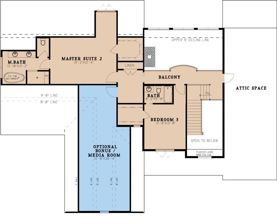
- Five Bedrooms, Five Full Baths, and One Half Bath: Includes two master suites—one on the main floor and one upstairs—ideal for multigenerational living or hosting guests in comfort.
- Three-Car Garage: A side-load design provides generous parking and storage without sacrificing curb appeal.
- Classic Heritage Style: Stone and siding accents, gabled rooflines, and charming window details create a stately presence with enduring character.
- Grand Great Room: A vaulted ceiling and a dramatic fireplace form the heart of the home, with large windows filling the space with natural light.
- Gourmet Kitchen and Dining: The kitchen seamlessly connects to the breakfast nook and formal dining room, making it ideal for family meals and entertaining.
- Main-Level Master Retreat: Features private deck access, a luxurious bath with soaking tub and walk-in shower, dual vanities, and an oversized walk-in closet.
- Upper and Lower Level Living: Upstairs includes additional bedrooms, a second master suite, and a flexible bonus room. The walk-out basement adds a second kitchen, theater room, and abundant storage, offering endless potential for recreation or extended family living.
Home Specifications
- Total Living Space: 4474
- Ridge Height (Ft.) 33
- Main Floor (Sq. Ft.): 2251 Sq.Ft
- Ridge Height (In.) 4
- Upper Floor (Sq. Ft.): 877 Sq.Ft.
- Main Ceiling Height: 9
- Lower Floor (Sq. Ft.): 1226 Sq.Ft.
- Upper Ceiling Height: 9
- Porch (Sq. Ft.): 591 Sq.Ft.
- Lower Ceiling Height: N/A
- Garage (Sq. Ft.): 1369 Sq.Ft.
- Garage: 3 Bay Yes
- Bonus (Sq.Ft): 515 Sq.Ft.
- Garage/Carport Type:Front Load and Side Load Front Load and Side Load
- Bedrooms: 5
- Carport: No
- Full Baths: 5
- Roof Pitch: 12:12
- Half Baths: 1
- Porch Roof Pitch: N/A
- Stories: 3.0
- Wall Construction: 2x6
- Lower Bonus (Sq. Ft.): N/A
- Vaulted Ceiling: Yes
- Depth (Ft): 61
- Width (Ft): 79
- Depth (In.) 4
- Width (In.) 10
- Total Sq. Ft. 7872 Sq.Ft.
- Customizable: Yes
Key Features
- Balcony
- Bonus Room Over Garage
- Bonus/Game and Media Room
- Covered Front Porch
- Covered Rear Porch
- Decks Patios Balconies
- Formal Dining Room
- Game Room
- Great Room
- Home Office/Study
- Home Theater
- Kitchen Island
- Main Floor Master
- Media Room
- Mudroom
- Nook/Breakfast Area
- Open Floor Plan House Plans
- Peninsula/Eating Bar
- Split Bedroom Design
- Walk-in Closet
- Walk-in-Pantry
Plan Collections
- Heritage House Plans Collection
- Michael E. Nelson House Plans Collection
Plan Styles
- Arts & Crafts House Plans
- Country Home House Plans
- Craftsman House Plans
- Traditional House Plans



