House Plan 950 Sophia Circle, Heritage House Plan

House Plan:NDG 950
$1,350.00
Shipping calculated at checkout.
Add to Wishlist
[View Wishlist]

Or order by phone: (870) 931-5777

Floor Plans

Floor Plan #1

Description

Discover House Plan NDG 950 Sophia Circle — Heritage House Plans with Elegance, Flexibility & Family Design

If you’re exploring house plans that offer heritage charm, spacious layouts, and great versatility, House Plan NDG 950 Sophia Circle delivers. With its classic architectural style, thoughtful room flow, and multi‑level design features, this home plan is built for both comfort and timeless appeal.

Key Features

  • Total living space of about 2,815 square feet, spread across a 1.5‑story design
  • 4 bedrooms and 3 full bathrooms, giving plenty of room for family and guests
  • Front‑loading 2‑bay garage with about 507 square feet of garage space
  • Main floor area approximately 2,142 square feet; upper floor adds about 673 square feet
  • Bonus room over the garage of roughly 455 square feet
  • Generous porch space (front and rear), totaling about 417 square feet

Design & Layout Highlights

  • Main floor master suite positioned at the rear of the home for privacy
  • Great room as a central gathering space, paired with adjoining breakfast and dining rooms, each featuring bay windows for light and character
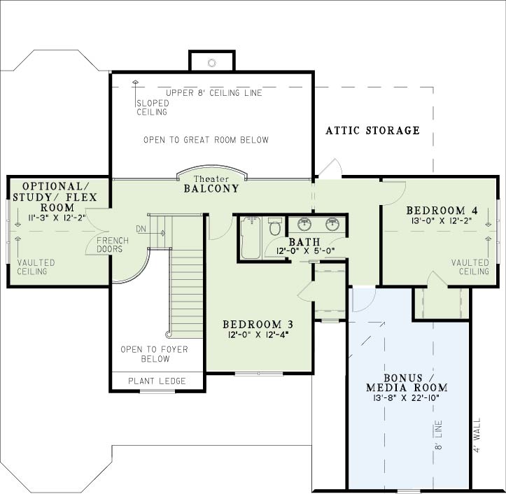
  • Upper floor includes balcony views overlooking the great room and foyer, plus additional bedrooms and an optional media room
  • Split bedroom layout so secondary bedrooms are separated from the master suite
  • Vaulted ceiling features add grandeur; main ceiling heights on major rooms are high to enhance openness

Why This Plan Stands Out Among House Plans

  • Combines heritage aesthetics with modern livability — porches, architectural detailing, clean lines
  • Balance between shared spaces (great room, dining, kitchen) and private retreat zones
  • Bonus room adds flexibility for changing needs: media, guest space, or home office
  • Substantial outdoor living space with covered porches enhances both curb appeal and daily enjoyment
  • Customizable foundation options and ceiling layouts make it suitable for many sites and climates

House Plan NDG 950 Sophia Circle offers a beautiful blend of elegance, space, and functionality. For anyone searching house plans that are both stylish and practical, this design offers lasting value, thoughtful flow, and the charm that makes a house feel like home.

Home Specifications

  • Total Living Space: 2815
  • Ridge Height (Ft.) 32
  • Main Floor (Sq. Ft.): 2142 Sq.Ft
  • Ridge Height (In.) 0
  • Upper Floor (Sq. Ft.): 673 Sq.Ft.
  • Main Ceiling Height: 9
  • Lower Floor (Sq. Ft.): N/A
  • Upper Ceiling Height: 8
  • Porch (Sq. Ft.): 417 Sq.Ft.
  • Lower Ceiling Height: N/A
  • Garage (Sq. Ft.): 507 Sq.Ft.
  • Garage: 2 Bay Yes
  • Bonus (Sq.Ft): 455 Sq.Ft.
  • Garage/Carport Type:Front Load Front Load
  • Bedrooms: 4
  • Carport: N/A
  • Full Baths: 3
  • Roof Pitch: 10:12
  • Porch Roof Pitch: N/A
  • Stories: 1.5
  • Wall Construction: 2x4
  • Lower Bonus (Sq. Ft.): N/A
  • Vaulted Ceiling: Yes
  • Depth (Ft): 55
  • Width (Ft): 57
  • Depth (In.) 10
  • Width (In.) 4
  • Total Sq. Ft. 4194 Sq.Ft.
  • Customizable: Yes

Key Features

  • Balcony
  • Bonus Room Over Garage
  • Covered Front Porch
  • Covered Rear Porch
  • Formal Dining Room
  • Great Room
  • Grilling Porch
  • In-Law Suite Private Guest
  • Jack & Jill Bathroom
  • Kitchen Island
  • Main Floor Master
  • Mudroom
  • Nook/Breakfast Area
  • Open Floor Plan House Plans
  • Peninsula/Eating Bar
  • Split Bedroom Design
  • Vaulted High Cathedral Ceiling
  • Walk-in Closet
  • Walk-in-Pantry

Plan Collections

  • Heritage House Plans Collection

Plan Styles

  • Arts & Crafts House Plans
  • Country Home House Plans
  • Craftsman House Plans
  • Traditional House Plans

Plan Spec Download

PLAN SPEC DOWNLOAD

Customize This Plan

Need to make changes? We will get you a free price quote!

MODIFY THIS PLAN