House Plan 990 Georgia Avenue, Midtown Place House Plan
Please log in or create account to add the product in wishlist.
Wishlist is not saved permanently yet. Please log in or create account to save it.
Or order by phone: (870) 931-5777
Floor Plans
Description
House Plan 990 Georgia Avenue | NDG 990 – Standout “House Plans” with Space & Style
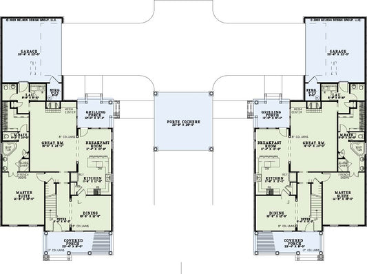
Introducing House Plan 990 Georgia Avenue, a spacious two-story design that stands out among today’s most sought-after “house plans.” Offering approximately 3,046 sq. ft. of total living space, this home provides exceptional room for large families, multigenerational living, or homeowners needing flexible areas for work and leisure. With 5 bedrooms and 3 baths, the layout delivers both privacy and functionality, making everyday living comfortable and efficient. The exterior showcases timeless traditional styling, while the interior features generous gathering spaces, well-planned bedrooms, and practical storage solutions. A two-bay garage adds convenience, reinforcing why this plan is the perfect blend of classic curb appeal, modern needs, and thoughtful design.
Key Features of House Plan 990 Georgia Avenue
- Approximately 3,046 sq. ft. of total living space
- Five bedrooms and three baths — ideal for large or multi-use families
- Two-story traditional design with timeless curb appeal
- Two-bay garage for secure parking and added storage
- Flexible interior layout perfect for entertaining, family living, or work-from-home needs
- Part of the popular Midtown Place collection known for charm and livability
Home Specifications
- Total Living Space: 3046
- Ridge Height (Ft.) 35
- Main Floor (Sq. Ft.): 1803 Sq.Ft
- Ridge Height (In.) 3
- Upper Floor (Sq. Ft.): 1243 Sq.Ft.
- Main Ceiling Height: 9
- Lower Floor (Sq. Ft.): N/A
- Upper Ceiling Height: 8
- Porch (Sq. Ft.): 726 Sq.Ft.
- Lower Ceiling Height: N/A
- Garage (Sq. Ft.): 538 Sq.Ft.
- Garage: 2 Bay Yes
- Bonus (Sq.Ft): N/A
- Garage/Carport Type:Side Load and Porte-Cochere Side Load and Porte-Cochere
- Bedrooms: 5
- Carport: N/A
- Full Baths: 3
- Roof Pitch: 12:12
- Half Baths: 1
- Porch Roof Pitch: N/A
- Stories: 2.0
- Wall Construction: 2x4
- Lower Bonus (Sq. Ft.): N/A
- Vaulted Ceiling: No
- Depth (Ft): 83
- Width (Ft): 111
- Depth (In.) 6
- Width (In.) 4
- Total Sq. Ft. 4310 Sq.Ft.
- Customizable: Yes
Key Features
- Covered Front Porch
- Covered Rear Porch
- Formal Dining Room
- Great Room
- Jack & Jill Bathroom
- Main Floor Master
- Mudroom
- Nook/Breakfast Area
- Open Floor Plan House Plans
- Peninsula/Eating Bar
- Porte-Cochere
- Split Bedroom Design
- Walk-in Closet
Plan Collections
- Midtown Place House Plans Collection
- Multi-Family House Plans
Plan Styles
- Arts & Crafts House Plans
- Colonial Classical Federal House Plans
- Country Home House Plans
- Craftsman House Plans
- Traditional House Plans
- Traditional Neighborhood Design (TND) House Plans







