House Plan 1402 Angler's Lodge, Country House Plan
Please log in or create account to add the product in wishlist.
Wishlist is not saved permanently yet. Please log in or create account to save it.
Or order by phone: (870) 931-5777
Floor Plans
Description
Discover Angler’s Lodge House Plan — Rustic, Spacious Living Designed for Family and Guests
Angler’s Lodge delivers a rustic, country‑style home that balances generous living space with flexible functionality. Ideal for families, multi‑generational living, or vacation‑home retreats, this plan combines open, airy interiors with cozy outdoor living spaces — perfect for everyday comfort, entertaining, or relaxing in nature.
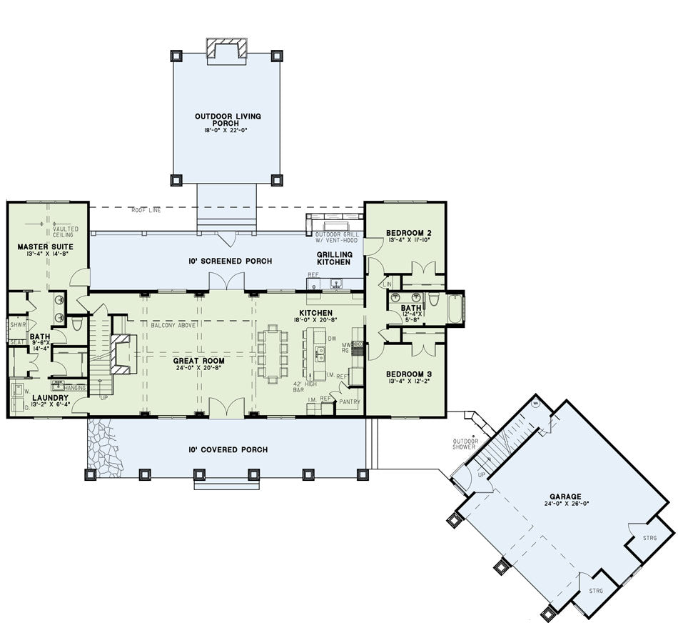
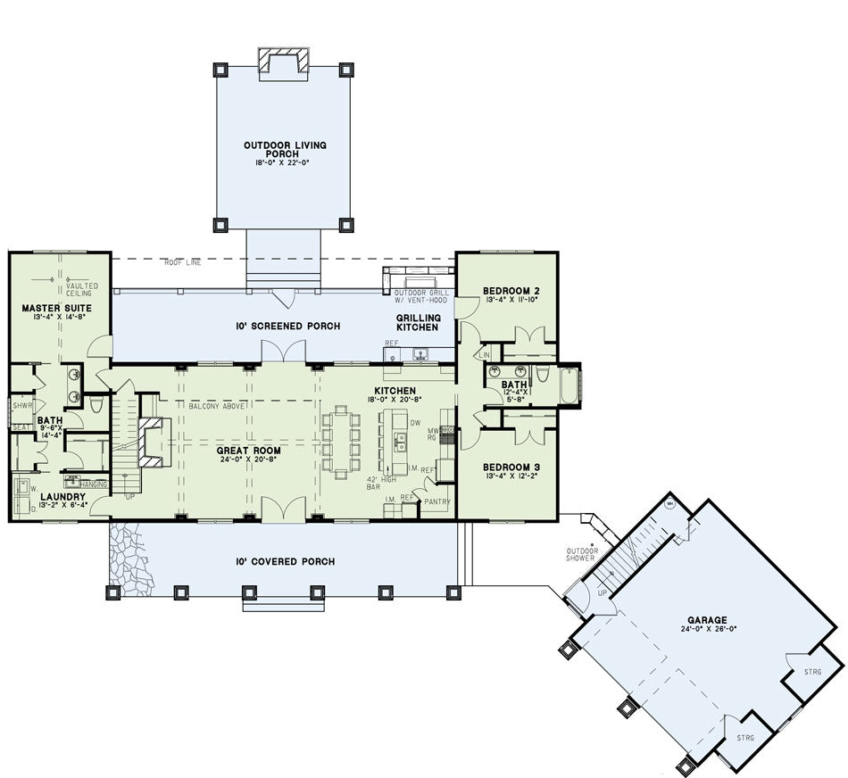
Picture arriving under a warm, timber‑columned entry, stepping into a vaulted Great Room with exposed beams and a fireplace, and enjoying open living that flows from kitchen to dining to outdoor porches. With multiple bedrooms, baths, and versatile loft/bonus spaces, Angler’s Lodge adapts to both daily living and gatherings with room to grow.
Key Features of Angler’s Lodge Plan NDG 1402
- Total living space of about 2,555 square feet — offering ample space for family living, guests, or flexible use.
- Five bedrooms and four full bathrooms — providing generous accommodation for family, guests, or group stays.
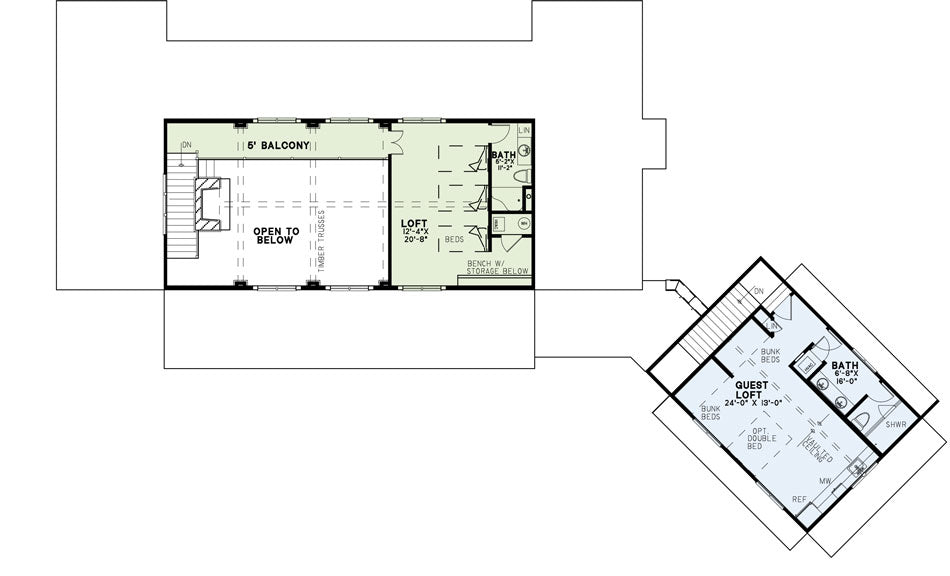
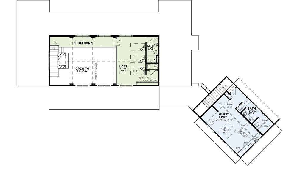
- 1.5‑story layout with additional loft/bonus space — giving flexibility for guest quarters, a media room, or extra bedroom options.
- Two‑bay detached garage — practical storage and vehicle protection without compromising home's footprint.
- Open floor plan with vaulted ceilings and exposed timber beams — creating a bright, spacious living area centered around a welcoming Great Room.
- Large kitchen with high-low island and generous pantry space — designed for cooking, entertaining, and everyday convenience.
- Dining area large enough for a 10-seat table — ideal for family meals or hosting gatherings.
- Master suite with vaulted ceiling, spacious bath, separate shower, walk-in closet, and direct access to screened porch and laundry — combining luxury, convenience, and privacy.
- Additional bedrooms with walk-in closets, shared full bath, and linen closets — practical and comfortable for children, guests, or extended family.
- Large screened rear porch and covered outdoor living area with fireplace — perfect for relaxing outdoors, hosting barbecues, or enjoying cool evenings.
- Upstairs loft/bonus room and guest loft above garage — versatile extra spaces for media, hobbies, guests, or storage.
Home Specifications
- Total Living Space: 2555
- Ridge Height (Ft.) 28
- Main Floor (Sq. Ft.): 2049 Sq.Ft
- Ridge Height (In.) 0
- Upper Floor (Sq. Ft.): 506 Sq.Ft.
- Main Ceiling Height: 9
- Lower Floor (Sq. Ft.): N/A
- Upper Ceiling Height: 8
- Porch (Sq. Ft.): 1408 Sq.Ft.
- Lower Ceiling Height: N/A
- Garage (Sq. Ft.): 838 Sq.Ft.
- Garage: 2 Bay Yes
- Bonus (Sq.Ft): 509 Sq.Ft.
- Garage/Carport Type:Angled and Detatched Angled and Detatched
- Bedrooms: 5
- Carport: N/A
- Full Baths: 4
- Roof Pitch: 10:12
- Porch Roof Pitch: 5:12
- Stories: 1.5
- Wall Construction: 2x4
- Lower Bonus (Sq. Ft.): N/A
- Vaulted Ceiling: Yes
- Depth (Ft): 95
- Width (Ft): 113
- Depth (In.) 8
- Width (In.) N/A
- Total Sq. Ft. 5310 Sq.Ft.
- Customizable: Yes
Key Features
- Balcony
- Covered Front Porch
- Covered Rear Porch
- Great Room
- Loft
- Main Floor Master
- Nook/Breakfast Area
- Open Floor Plan House Plans
- Outdoor Kitchen
- Outdoor Living Space
- Peninsula/Eating Bar
- Split Bedroom Design
- Walk-in Closet
- Walk-in-Pantry
Plan Collections
- Customizable Exteriors House Plans Collection
- Riverbend Cabin House Plans Collection
Plan Styles
- Country Home House Plans
- Low Country House Plans
- Luxury House Plans
- Rustic House Plans
- Southern House Plans
- Traditional House Plans

















