House Plan 5288 Aspen Bluff, Rustic House Plan
House Plan:MEN 5288
$1,200.00
/
Add to Wishlist
Remove from Wishlist
[View Wishlist]
Please log in or create account to add the product in wishlist.
Wishlist is not saved permanently yet. Please log in or create account to save it.
Or order by phone: (870) 931-5777
Floor Plans
Description
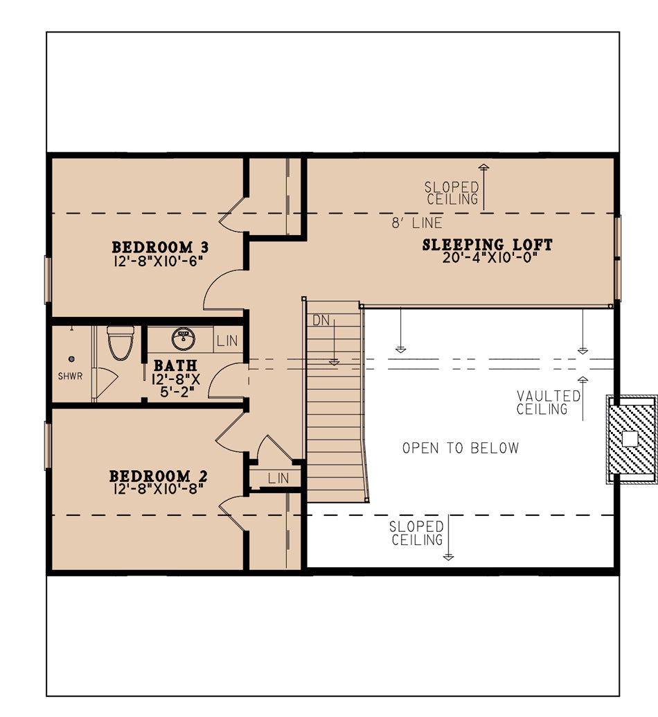
Step into rustic retreat living with the Aspen Bluff House Plan MEN5288, a 1,764 sq ft home featuring 3 bedrooms, 2 baths, and a unique sleeping loft on the upper floor. Its warm, natural materials and smart design create a cozy, stylish lifestyle focused on comfort, charm, and practical everyday living.
Why this house plan stands out among house plans:
- Rustic exterior with board‑and‑batten siding, stone accents, and deep eaves for timeless outdoor appeal
- Open-floor layout that maximizes space and encourages seamless flow between the kitchen, dining, and great room
- Split-bedroom design: the master suite is separated from secondary bedrooms for added privacy
- Upper-level sleeping loft provides extra flexible space for guests, kids, or a cozy reading nook
- Covered rear porch extends living outdoors—perfect for relaxing or casual entertaining
- Spacious master suite with walk-in closet and private bath featuring dual vanities, shower, and soaking tub
- Functional kitchen with large island, pantry, and easy access to dining and living areas
- Generous 2-car garage and thoughtful storage options throughout the home
Ready to turn your “house plans” search into something you can build? Explore the full specifications of Aspen Bluff and imagine life in a home where rustic character meets modern functionality.
Home Specifications
- Total Living Space: 1764
- Ridge Height (Ft.) 26
- Main Floor (Sq. Ft.): 1064 Sq.Ft
- Ridge Height (In.) 0
- Upper Floor (Sq. Ft.): 700 Sq.Ft.
- Main Ceiling Height: 9
- Lower Floor (Sq. Ft.): N/A
- Upper Ceiling Height: 8
- Porch (Sq. Ft.): 608 Sq.Ft.
- Lower Ceiling Height: N/A
- Garage (Sq. Ft.): N/A
- Garage: No
- Bonus (Sq.Ft): N/A
- Garage/Carport Type:N/A N/A
- Bedrooms: 3
- Carport: No
- Full Baths: 2
- Roof Pitch: 8:12
- Half Baths: 1
- Porch Roof Pitch: 6:12
- Stories: 1.5
- Wall Construction: 2x4
- Lower Bonus (Sq. Ft.): N/A
- Vaulted Ceiling: Yes
- Depth (Ft): 44
- Width (Ft): 40
- Depth (In.) N/A
- Width (In.) 4
- Total Sq. Ft. 2372 Sq.Ft.
- Customizable: Yes
Key Features
- Covered Front Porch
- Covered Rear Porch
- Formal Dining Room
- Great Room
- Grilling Porch
- Kitchen Island
- Loft
- Main Floor Master
- Narrow Lot House Plans
- Open Floor Plan House Plans
- Peninsula/Eating Bar
- Split Bedroom Design
Plan Collections
- Affordable House Plans Collection
- Michael E. Nelson House Plans Collection
- Modern Farmhouse Plans
- Riverbend Cabin House Plans Collection
- Rustic Ridge House Plans Collection
Plan Styles
- Country Home House Plans
- Rustic House Plans
- Traditional House Plans







