House Plan 5412 Millcreek Place, Riverbend House Plan
Please log in or create account to add the product in wishlist.
Wishlist is not saved permanently yet. Please log in or create account to save it.
Or order by phone: (870) 931-5777
Floor Plans
Description
Millcreek Place – House Plan MEN 5412
The Millcreek Place House Plan MEN 5412 is a beautifully designed mountain‑inspired home offering approximately 1,846 square feet of living space. This plan features 2 bedrooms, 2 full baths, 1 half bath, and a walk‑out basement, making it ideal for small families, vacation homes, or scenic hillside properties.
Design and Layout Highlights
Millcreek Place combines rustic charm with modern functionality. The exterior features a bold roofline and stone-accented columns for striking curb appeal. Inside, a vaulted great room with a fireplace serves as the central gathering space, illuminated by abundant natural light from front and rear dormers.
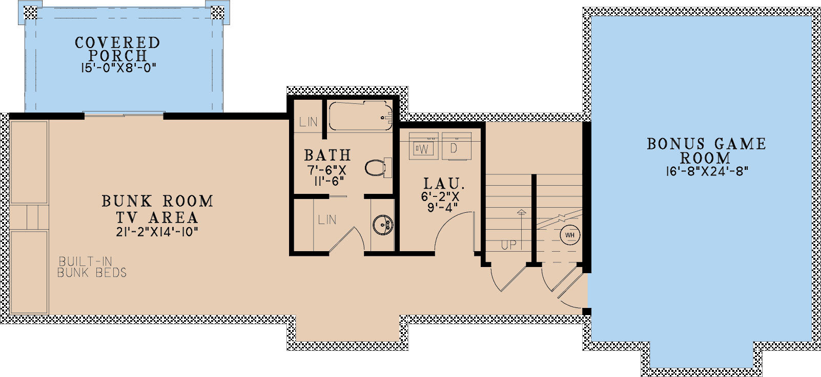
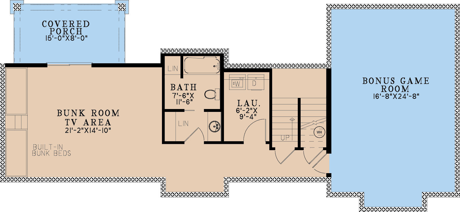
The open-concept main floor includes a well-appointed kitchen with a generous eat-at island, a dining area, and easy access to the living spaces. The master suite offers vaulted ceilings, large windows, and a luxurious bath with dual sinks, a freestanding tub, and a walk-in shower. The walk-out basement provides bonus space for recreation, guests, or additional bedrooms, with a covered rear porch that enhances indoor-outdoor living.
Key Features
- Approximately 1,846 square feet of living space with 2 bedrooms and 2.5 baths.
- Walk-out basement with bonus space, ideal for recreation or guest accommodations.
- Vaulted great room with fireplace and abundant natural light.
- Open-concept kitchen and dining area with eat-at island and walk-in pantry.
- Covered rear porch for outdoor living and scenic views.
- Rustic-mountain exterior with stone accents and bold roofline.
- Flexible design suitable for sloped lots or vacation homes.
Home Specifications
- Total Living Space: 1846
- Ridge Height (Ft.) 21
- Main Floor (Sq. Ft.): 1227 Sq.Ft
- Ridge Height (In.) 0
- Upper Floor (Sq. Ft.): N/A
- Main Ceiling Height: 10
- Lower Floor (Sq. Ft.): 619 Sq.Ft.
- Upper Ceiling Height: N/A
- Porch (Sq. Ft.): N/A
- Lower Ceiling Height: 9
- Garage (Sq. Ft.): N/A
- Garage: No
- Bonus (Sq.Ft): 435 Sq.Ft.
- Garage/Carport Type:N/A N/A
- Bedrooms: 2
- Carport: N/A
- Full Baths: 2
- Roof Pitch: 12:12
- Half Baths: 1
- Porch Roof Pitch: 12:12
- Stories: 2.0
- Wall Construction: 2x4
- Lower Bonus (Sq. Ft.): N/A
- Vaulted Ceiling: Yes
- Depth (Ft): 29
- Width (Ft): 62
- Depth (In.) N/A
- Width (In.) N/A
- Total Sq. Ft. 2121 Sq.Ft.
- Customizable: N/A
Key Features
- Balcony
- Bonus Room
- Bonus/Game and Media Room
- Covered Front Porch
- Covered Rear Porch
- Decks Patios Balconies
- Game Room
- Great Room
- Grilling Porch
- Kitchen Island
- Main Floor Master
- Media Room
- Nook/Breakfast Area
- Open Floor Plan House Plans
- Peninsula/Eating Bar
- Split Bedroom Design
- Two Story
- Vaulted High Cathedral Ceiling
- Walk-in Closet
- Walk-in-Pantry
Plan Collections
- Angler Mountain House Plans Collection
- Arts and Crafts House Plans Collection
- Cottage House Plans
- Elk Valley Cabin Collection
- Michael E. Nelson House Plans Collection
- Riverbend Cabin House Plans Collection
- Rustic Ridge House Plans Collection
Plan Styles
- Craftsman House Plans
- Mountain House Plans
- Rustic House Plans
- Vacation House Plans





