House Plan 5025 Adirondack Place, Arts and Crafts House Plan
House Plan:MEN 5025
$1,550.00
/
Shipping calculated at checkout.
Add to Wishlist
Remove from Wishlist
[View Wishlist]
Please log in or create account to add the product in wishlist.
Wishlist is not saved permanently yet. Please log in or create account to save it.
Or order by phone: (870) 931-5777
Floor Plans
Description
Introducing Adirondack Place Plan MEN 5025
If you're searching for house plans that offer a harmonious blend of rustic charm and modern comfort, Adirondack Place Plan MEN 5025 provides an exceptional choice. Designed by Michael E. Nelson, this Arts and Crafts-style home is tailored for those who appreciate both elegance and functionality.
Why Adirondack Place Stands Out Among House Plans
-
Charming Exterior Design
The home's exterior features a combination of stone and timber, creating a stunning curb appeal. The design emphasizes a connection to nature, making it perfect for various settings. -
Spacious Living Areas
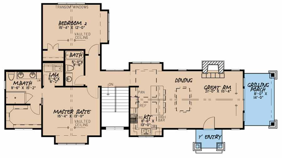
Offering a total living space of 1,921 sq. ft., Adirondack Place provides ample room for families. The open floor plan includes a great room, dining area, and kitchen with a high bar, facilitating easy entertaining and family gatherings. -
Private Master Suite
The master suite is located on the main floor, offering privacy for the homeowner. It includes vaulted ceilings, a large walk-in closet, and a private bath with a spacious walk-in shower. -
Additional Bedroom
Bedroom 2 is also situated on the main floor, providing separation and privacy. It shares a hall bath with the common areas. -
Lower-Level Flex Space
The lower level contains space for a bunk room or game room, a full bath, and access to a covered porch, offering additional living space and versatility. -
Functional Design Features
The plan includes a covered front porch, grilling porch, and no formal dining room. The kitchen is equipped with a peninsula/eating bar, perfect for casual dining and entertaining.
Home Specifications
- Total Living Space: 1921
- Ridge Height (Ft.) 19
- Main Floor (Sq. Ft.): 1330 Sq.Ft
- Ridge Height (In.) 0
- Upper Floor (Sq. Ft.): N/A
- Main Ceiling Height: 9
- Lower Floor (Sq. Ft.): 591 Sq.Ft.
- Upper Ceiling Height: N/A
- Porch (Sq. Ft.): 257 Sq.Ft.
- Lower Ceiling Height: 9
- Garage (Sq. Ft.): N/A
- Garage: No
- Bonus (Sq.Ft): N/A
- Garage/Carport Type:N/A N/A
- Bedrooms: 2
- Carport: N/A
- Full Baths: 3
- Roof Pitch: 12:12
- Porch Roof Pitch: 2:12
- Stories: 1.5
- Wall Construction: 2x4
- Lower Bonus (Sq. Ft.): N/A
- Vaulted Ceiling: Yes
- Depth (Ft): 37
- Width (Ft): 72
- Depth (In.) 10
- Width (In.) N/A
- Total Sq. Ft. 2178 Sq.Ft.
- Customizable: Yes
Key Features
- Covered Front Porch
- Covered Rear Porch
- Game Room
- Great Room
- Grilling Porch
- Kitchen Island
- Main Floor Master
- No Formal Dining
- Open Floor Plan House Plans
- Peninsula/Eating Bar
- Walk-in Closet
Plan Collections
- Customizable Exteriors House Plans Collection
- Michael E. Nelson House Plans Collection
Plan Styles
- Arts & Crafts House Plans
- Craftsman House Plans
- Modern Contemporary House Plans
- Rustic House Plans









