House Plan 585 Laurel Street, Country House Home Plan
Please log in or create account to add the product in wishlist.
Wishlist is not saved permanently yet. Please log in or create account to save it.
Or order by phone: (870) 931-5777
Floor Plans
Description
House Plan 585 Laurel Street – Country & Southern 4‑Bedroom House Plan | NDG 585
Explore the inviting design and practical layout of House Plan 585 Laurel Street, a beautiful 4‑bedroom house plan that blends traditional country style with modern family functionality. This thoughtfully crafted home offers approximately 2,071 sq ft of total living space, featuring 4 bedrooms and 2 full baths plus an attached 2‑bay side‑load garage, making it a perfect choice for families seeking comfort, efficiency, and everyday livability.
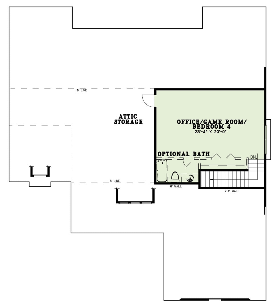
Inside, an open floor plan connects the great room and dining area around a shared fireplace — creating a warm and welcoming gathering space for family time and entertaining. The kitchen and breakfast bay enjoy abundant natural light and a large walk‑in pantry, while nearby access to the rear deck enhances indoor‑outdoor living. A private master suite is separated from the other bedrooms for added peace and privacy, and an additional room can function as a home office/study or extra bedroom to fit your lifestyle needs.
With thoughtful features like a bonus/game/media room, covered front porch, and split bedroom design, House Plan 585 Laurel Street stands out among house plans for its open floor plan, traditional charm, and versatile spaces that support both family life and entertaining.
Home Specifications
- Total Living Space: 2071
- Ridge Height (Ft.) 28
- Main Floor (Sq. Ft.): 2071 Sq.Ft
- Ridge Height (In.) 0
- Upper Floor (Sq. Ft.): N/A
- Main Ceiling Height: 9
- Lower Floor (Sq. Ft.): N/A
- Upper Ceiling Height: 8
- Porch (Sq. Ft.): 191 Sq.Ft.
- Lower Ceiling Height: N/A
- Garage (Sq. Ft.): 527 Sq.Ft.
- Garage: 2 Bay Yes
- Bonus (Sq.Ft): 443 Sq.Ft.
- Garage/Carport Type:Side Load Side Load
- Bedrooms: 4
- Carport: N/A
- Full Baths: 2
- Roof Pitch: 9:12
- Porch Roof Pitch: 10:12
- Stories: 1.0
- Wall Construction: 2x4
- Lower Bonus (Sq. Ft.): N/A
- Vaulted Ceiling: No
- Depth (Ft): 68
- Width (Ft): 56
- Depth (In.) 6
- Width (In.) 4
- Total Sq. Ft. 3232 Sq.Ft.
- Customizable: Yes
Key Features
- Bonus/Game and Media Room
- Covered Front Porch
- Decks Patios Balconies
- Game Room
- Great Room
- Grilling Porch
- Home Office/Study
- Main Floor Master
- No Formal Dining
- Nook/Breakfast Area
- Open Floor Plan House Plans
- Peninsula/Eating Bar
- Split Bedroom Design
- Walk-in Closet
- Walk-in-Pantry
Plan Collections
Plan Styles
- Country Home House Plans
- Luxury House Plans
- Southern House Plans
- Traditional House Plans







