House Plan 5020 Charleston Bay, Farmhouse House Plan
House Plan:MEN 5020
$2,050.00
/
Add to Wishlist
Remove from Wishlist
[View Wishlist]
Please log in or create account to add the product in wishlist.
Wishlist is not saved permanently yet. Please log in or create account to save it.
Or order by phone: (870) 931-5777
Floor Plans
Description
Introducing Charleston Bay Plan MEN 5020
If you're searching for house plans that offer a blend of traditional charm and modern functionality, Charleston Bay Plan MEN 5020 provides an exceptional choice. Designed by Michael E. Nelson, this farmhouse-style home is tailored for those who appreciate both elegance and practicality.
Why Charleston Bay Stands Out Among House Plans
-
Charming Exterior Design
The home's exterior features a combination of stone and timber columns on the covered front porch, creating a welcoming and rustic curb appeal. The design emphasizes a connection to nature, making it perfect for various settings. -
Spacious Living Areas
With a total living space of 3,437 sq. ft., Charleston Bay offers ample room for families. The open floor plan includes a great room that flows seamlessly into the spacious kitchen, facilitating easy entertaining and family gatherings. -
Private Master Suite
The master suite is located on the right side of the home, offering privacy for the homeowner. It includes spacious his and hers closets and access to the rear covered porch, enhancing comfort and convenience. -
Additional Bedrooms
Bedrooms 2, 3, and 4 are situated on the opposite side of the home, providing separation and privacy. These rooms share a spacious hall bath, accommodating family members or guests comfortably. -
Functional Design Features
The plan includes a 3-bay side-load garage, mudroom, and a split bedroom design. The kitchen is equipped with a large, uniquely shaped bar counter, facilitating both cooking and socializing. -
In-Law Suite
The attached 1,295 sq. ft. in-law suite includes a great room with a boxed ceiling, a kitchen with an eat-at L-shaped counter, a master suite with a walk-in closet, and an additional bedroom. This private space offers comfort and independence for extended family members.
Home Specifications
- Total Living Space: 3437
- Ridge Height (Ft.) 28
- Main Floor (Sq. Ft.): 3437 Sq.Ft
- Ridge Height (In.) 0
- Upper Floor (Sq. Ft.): N/A
- Main Ceiling Height: 9
- Lower Floor (Sq. Ft.): N/A
- Upper Ceiling Height: 8
- Porch (Sq. Ft.): 1148 Sq.Ft.
- Lower Ceiling Height: N/A
- Garage (Sq. Ft.): 967 Sq.Ft.
- Garage: 3 Bay Yes
- Bonus (Sq.Ft): 1155 Sq.Ft.
- Garage/Carport Type:Side Load Side Load
- Bedrooms: 6
- Carport: N/A
- Full Baths: 4
- Roof Pitch: 8:12
- Porch Roof Pitch: 4:12
- Stories: 1.0
- Wall Construction: 2x4
- Lower Bonus (Sq. Ft.): N/A
- Vaulted Ceiling: No
- Depth (Ft): 110
- Width (Ft): 78
- Depth (In.) 6
- Width (In.) 10
- Total Sq. Ft. 6707 Sq.Ft.
- Customizable: Yes
Key Features
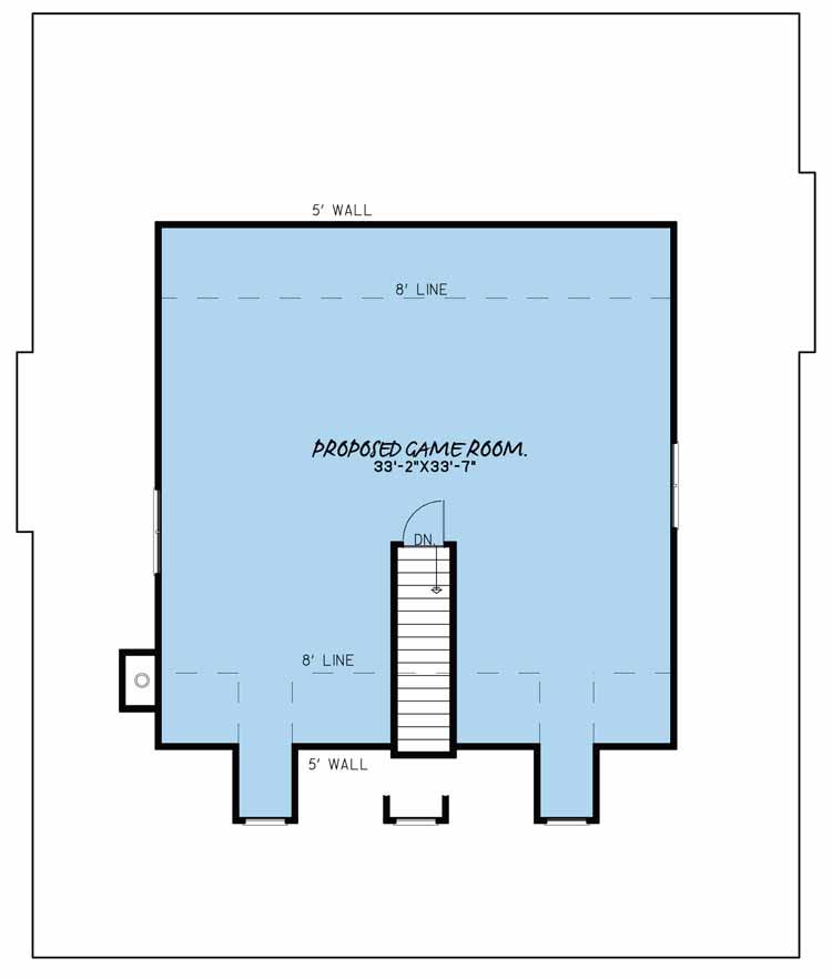
- Bonus/Game and Media Room
- Covered Front Porch
- Covered Rear Porch
- Formal Dining Room
- Great Room
- Home Office/Study
- In-Law Suite Private Guest
- Kitchen Island
- Main Floor Master
- Mudroom
- Nook/Breakfast Area
- Open Floor Plan House Plans
- Outdoor Living Space
- Peninsula/Eating Bar
- Screened Porch
- Split Bedroom Design
- Walk-in Closet
- Walk-in-Pantry
- Wrap-Around Porch
Plan Collections
- Customizable Exteriors House Plans Collection
- Michael E. Nelson House Plans Collection
- Modern Farmhouse Plans
- Multigenerational House Plans
Plan Styles
- Country Home House Plans
- Farmhouse House Plans
- Lake House Plans
- Low Country House Plans
- Rustic House Plans
- Southern House Plans
- Traditional House Plans

















