House Plan 1292 Stone Mountain, Rustic House Plan
Please log in or create account to add the product in wishlist.
Wishlist is not saved permanently yet. Please log in or create account to save it.
Or order by phone: (870) 931-5777
Floor Plans
Description
Stone Mountain (NDG 1292) — Rustic Elegance Meets Thoughtful Living
If you’re exploring house plans that blend rustic charm with spacious, family-friendly design, Stone Mountain (NDG 1292) offers a perfect balance of style and functionality. This two-story home features approximately 3,430 square feet of heated and cooled space, with 4 bedrooms and 3.5 bathrooms, thoughtfully crafted to support both everyday living and entertaining with ease.
Key Features
- Generous Living Space: Approximately 3,430 square feet provide plenty of room for comfortable living.
- Inviting Exterior: A distinctive combination of stone, brick, siding, and timber accents creates a warm, textured façade with a covered front porch that welcomes guests.
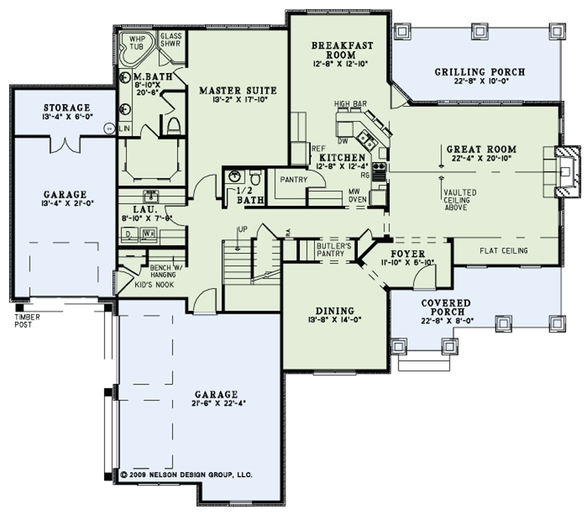
- Open Great Room: The heart of the home is a spacious great room centered around a cozy fireplace, ideal for family gatherings and relaxation.
- Well-Equipped Kitchen: Includes a walk-in pantry, breakfast area, butler’s pantry, and convenient access to a grilling porch for seamless indoor-outdoor living.
- Main Floor Master Suite: A private retreat with a large walk-in closet, offering comfort and convenience on the main level.
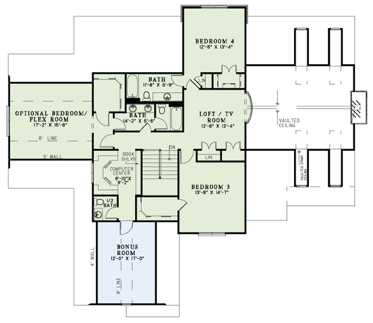
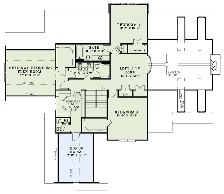
- Flexible Upper Level: Upstairs features additional bedrooms with walk-in closets, a loft or TV room with balcony overlooking the great room, a Jack & Jill bath, a computer center, built-in bookshelves, and a bonus room above the garage.
- Spacious Garage and Porches: A three-bay side-load garage and multiple covered porch areas add to the home’s functionality and outdoor appeal.
Why Choose Stone Mountain
This design perfectly suits homeowners who want the warmth of rustic style combined with modern, flexible living spaces. Its carefully planned layout enhances flow and usability, making it ideal for families of all sizes. Plus, the option to customize allows you to tailor the home to your unique needs.
Home Specifications
- Total Living Space: 3430
- Ridge Height (Ft.) 33
- Main Floor (Sq. Ft.): 1993 Sq.Ft
- Ridge Height (In.) 5
- Upper Floor (Sq. Ft.): 1437 Sq.Ft.
- Main Ceiling Height: 9
- Lower Floor (Sq. Ft.): N/A
- Upper Ceiling Height: 8
- Porch (Sq. Ft.): 403 Sq.Ft.
- Lower Ceiling Height: N/A
- Garage (Sq. Ft.): 919 Sq.Ft.
- Garage: 3 Bay Yes
- Bonus (Sq.Ft): 219 Sq.Ft.
- Garage/Carport Type:Front Load and Side Load Front Load and Side Load
- Bedrooms: 4
- Carport: N/A
- Full Baths: 3
- Roof Pitch: 10:12
- Half Baths: 2
- Porch Roof Pitch: N/A
- Stories: 2.0
- Wall Construction: 2x4
- Lower Bonus (Sq. Ft.): N/A
- Vaulted Ceiling: Yes
- Depth (Ft): 64
- Width (Ft): 74
- Depth (In.) 8
- Width (In.) 8
- Total Sq. Ft. 4971 Sq.Ft.
- Customizable: Yes
Key Features
- Balcony
- Bonus Room Over Garage
- Butler's Pantry
- Covered Front Porch
- Covered Rear Porch
- Formal Dining Room
- Great Room
- Grilling Porch
- Jack & Jill Bathroom
- Loft
- Main Floor Master
- Mudroom
- Nook/Breakfast Area
- Open Floor Plan House Plans
- Peninsula/Eating Bar
- Split Bedroom Design
- Vaulted High Cathedral Ceiling
- Walk-in Closet
- Walk-in-Pantry
Plan Collections
- Rustic Ridge House Plans Collection
Plan Styles
- Arts & Crafts House Plans
- Craftsman House Plans
- Mountain House Plans
- Rustic House Plans
- Traditional House Plans









