House Plan 1272-1 Calico Rock, Rustic Ridge House Plan
Please log in or create account to add the product in wishlist.
Wishlist is not saved permanently yet. Please log in or create account to save it.
Or order by phone: (870) 931-5777
Floor Plans
Description
Calico Rock Plan NDG 1272 – Rustic-Chic House Plan with Space, Style & Flexibility
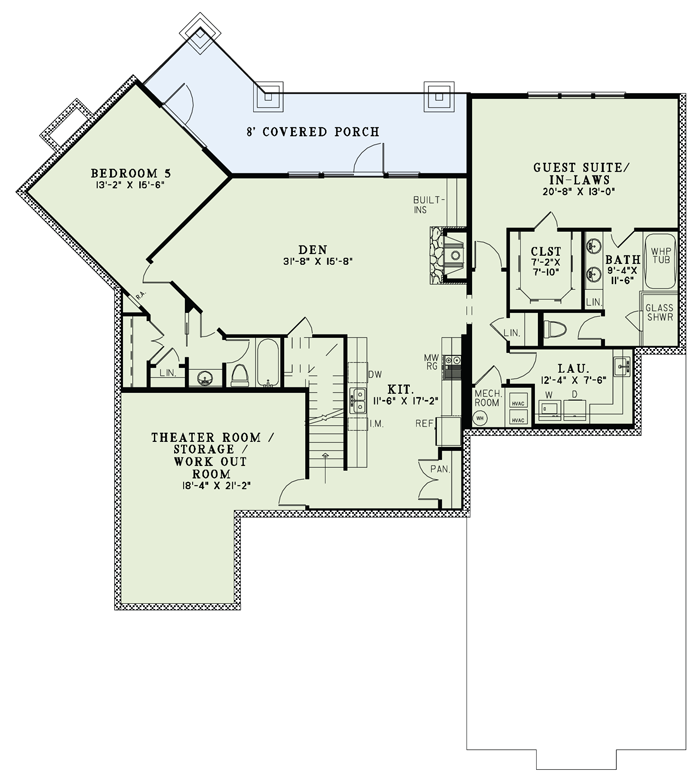
If you’re looking for house plans that combine rustic charm with functional design, Calico Rock (Plan 1272) is an ideal choice. This home blends a warm, cabin-style exterior with a smart, open layout — perfect for families, entertaining, or anyone wanting a home that balances comfort and style. With four bedrooms, three full baths, and a flexible second-floor bonus area, Calico Rock offers a thoughtful design with practical features for everyday living.
Highlights of the Calico Rock House Plan
- Approximately 2,883 square feet of living space, offering plenty of room for daily life and entertaining
- Four bedrooms and three full bathrooms, providing space for family, guests, or home office use
- Three-bay side-load garage, ideal for vehicles, storage, or hobbies
- Rustic exterior with board-and-batten siding, stone and shake accents, and craftsman-style wood framing, delivering warm, timeless curb appeal
- Expansive covered front porch and grilling porch, creating inviting outdoor living areas connected to the breakfast nook, great room, and master suite
- Open-concept main floor with vaulted ceilings, including a great room with stone fireplace, kitchen with prep island and dual pantries, breakfast nook, and formal dining room — perfect for family living and entertaining
- Main-level master suite with boxed ceiling, large windows, dual vanities, whirlpool tub, separate glass shower, and walk-in closet, providing a private, luxurious retreat
- Mudroom, kids’ nook, laundry, and additional storage, enhancing everyday convenience and organization
- Upper-level bedrooms and bonus/media room, offering flexible space for children, guests, hobbies, or a media room
- Customizable design, allowing adaptation to personal preferences or lot requirements
Calico Rock combines rustic elegance with practical living. Its generous indoor and outdoor spaces, flexible bedroom and bathroom layout, and functional design make it an excellent choice for a forever home, vacation retreat, or multi-generation residence.
Home Specifications
- Total Living Space: 5051
- Ridge Height (Ft.) 32
- Main Floor (Sq. Ft.): 2222 Sq.Ft
- Ridge Height (In.) 4
- Upper Floor (Sq. Ft.): 661 Sq.Ft.
- Main Ceiling Height: 9
- Lower Floor (Sq. Ft.): 2168 Sq.Ft.
- Upper Ceiling Height: 9
- Porch (Sq. Ft.): 755 Sq.Ft.
- Lower Ceiling Height: 9
- Garage (Sq. Ft.): 743 Sq.Ft.
- Garage: 3 Bay Yes
- Bonus (Sq.Ft): 460 Sq.Ft.
- Garage/Carport Type:Side Load Side Load
- Bedrooms: 5
- Carport: N/A
- Full Baths: 5
- Roof Pitch: 10:12
- Porch Roof Pitch: 2:12
- Stories: 2.5
- Wall Construction: 2x4
- Lower Bonus (Sq. Ft.): N/A
- Vaulted Ceiling: Yes
- Depth (Ft): 75
- Width (Ft): 67
- Depth (In.) 5
- Width (In.) 3
- Total Sq. Ft. 7009 Sq.Ft.
- Customizable: Yes
Key Features
- Balcony
- Bonus/Game and Media Room
- Covered Front Porch
- Covered Rear Porch
- Exercise Room
- Formal Dining Room
- Great Room
- Grilling Porch
- Home Office/Study
- In-Law Suite Private Guest
- Jack & Jill Bathroom
- Kitchen Island
- Main Floor Master
- Mudroom
- Nook/Breakfast Area
- Open Floor Plan House Plans
- Outdoor Living Space
- Peninsula/Eating Bar
- Split Bedroom Design
- Vaulted High Cathedral Ceiling
- Walk-in Closet
- Walk-in-Pantry
Plan Collections
- Rustic Ridge House Plans Collection
- Multigenerational House Plans
Plan Styles
- Arts & Crafts House Plans
- Craftsman House Plans
- Mountain House Plans
- Rustic House Plans













