House Plan 1422 Charleston Avenue, Rustic House Plan
Please log in or create account to add the product in wishlist.
Wishlist is not saved permanently yet. Please log in or create account to save it.
Or order by phone: (870) 931-5777
Floor Plans
Description
Discover Charleston Avenue House Plan — Rustic Charm Meets Spacious, Functional Living
Charleston Avenue brings together rustic‑style elegance and thoughtful design to create a home that’s both inviting and practical. From exterior stone, brick, and shake siding to warm timber‑beam accents inside, this plan exudes character and comfort. With generous living space, flexible layout options, and amenities for everyday living and entertaining, Charleston Avenue is designed to feel like home from arrival onward.
Visualize walking up to a covered front porch supported by timber‑beam columns, then entering a vaulted Great Room with a fireplace — a welcoming space for family time or relaxing evenings. The floor plan extends naturally to a rear grilling porch, ideal for outdoor living and entertaining. Private bedrooms, a luxurious master suite, and a bonus room over the garage offer flexibility and comfort whether you’re raising a family, hosting guests, or building your forever home.
Key Features of Charleston Avenue Plan NDG 1422
- Total living space of about 2,340 square feet — ample space for comfort and flexibility.
- Three bedrooms and three full bathrooms, plus one half bath — suitable for families, guests, or flexible use.
- Three‑bay side‑load garage — convenient for storage, multiple vehicles, or workshop space.
- Single‑story layout — all main living areas on one level for ease of access and everyday living.
- Rustic exterior combining stone, brick, and shake siding, with timber‑beam porch columns — delivering strong curb appeal and timeless character.
- Vaulted Great Room with timber beams and fireplace — a warm and open central gathering space.
- Covered front porch and a large outdoor living / grilling porch with fireplace — ideal for outdoor dining, relaxation, and entertaining.
- Master suite with private amenities including a corner whirlpool tub, a large glass shower with seating, and a roomy walk‑in closet — offering comfort and privacy.
- Two additional bedrooms on the main level, each with walk‑in closets, and a shared full bath — great for children, guests, or flexible use.
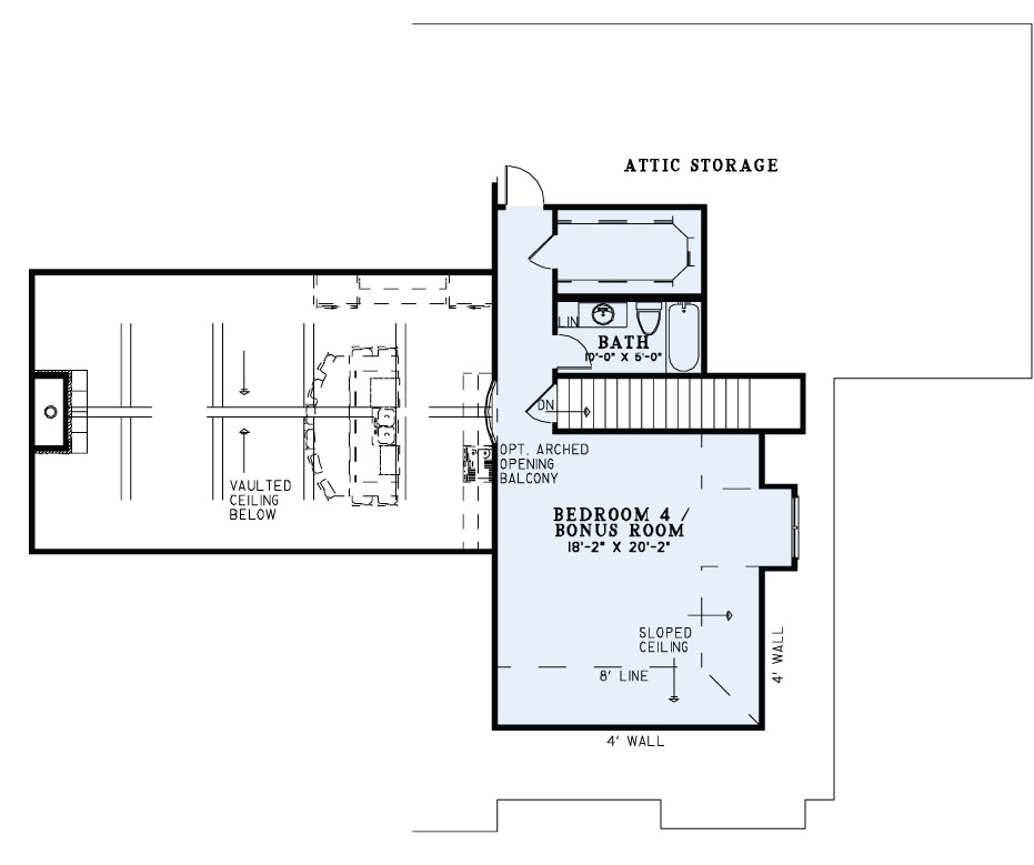
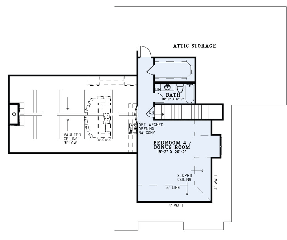
- Bonus room over the garage with full bath and walk‑in closet — can be used as a guest suite, home office, media room, or extra storage space for future needs.
- Open floor plan with formal dining and kitchen areas — designed for flow and functional living or entertaining.
Home Specifications
- Total Living Space: 2340
- Ridge Height (Ft.) 33
- Main Floor (Sq. Ft.): 2340 Sq.Ft
- Ridge Height (In.) 0
- Upper Floor (Sq. Ft.): N/A
- Main Ceiling Height: 9
- Lower Floor (Sq. Ft.): N/A
- Upper Ceiling Height: 8
- Porch (Sq. Ft.): 564 Sq.Ft.
- Lower Ceiling Height: N/A
- Garage (Sq. Ft.): 1069 Sq.Ft.
- Garage: 3 Bay Yes
- Bonus (Sq.Ft): 602 Sq.Ft.
- Garage/Carport Type:Side Load Side Load
- Bedrooms: 3
- Carport: N/A
- Full Baths: 3
- Roof Pitch: 12:12
- Half Baths: 1
- Porch Roof Pitch: N/A
- Stories: 1.0
- Wall Construction: 2x4
- Lower Bonus (Sq. Ft.): N/A
- Vaulted Ceiling: Yes
- Depth (Ft): 61
- Width (Ft): 81
- Depth (In.) 3
- Width (In.) 6
- Total Sq. Ft. 4575 Sq.Ft.
- Customizable: Yes
Key Features
- Arched Entry
- Bonus Room Over Garage
- Covered Front Porch
- Covered Rear Porch
- Formal Dining Room
- Great Room
- Grilling Porch
- Jack & Jill Bathroom
- Main Floor Master
- Open Floor Plan House Plans
- Outdoor Living Space
- Peninsula/Eating Bar
- Split Bedroom Design
- Vaulted High Cathedral Ceiling
- Walk-in Closet
- Walk-in-Pantry
Plan Collections
- Rustic Ridge House Plans Collection
Plan Styles
- Craftsman House Plans
- Rustic House Plans
- Traditional House Plans



















