Rustic House Plan, Riverstone Retreat 5456
Please log in or create account to add the product in wishlist.
Wishlist is not saved permanently yet. Please log in or create account to save it.
Or order by phone: (870) 931-5777
Floor Plans
Description
Discover the Plan MEN 5456 “Riverstone Retreat” from Nelson Design Group — a spacious two-story lodge-style residence designed for elegant living and memorable gatherings.
Why You’ll Love This House Plan
-
This home features approximately 4,320 sq ft of total living space, with 3 bedrooms, 3 full bathrooms, and 1 half bathroom — ideal for family living, guests, or multi-generational use.
-
The footprint spans 96 ft 8 in wide by 61 ft 6 in deep, offering a broad, impressive presence while maintaining thoughtful flow and openness.
-
The exterior channels rustic lodge and Craftsman character — expect natural stone, timber-inspired details, vaulted ceilings, and a gracious covered porch that invites outdoor connection.
-
Inside, the plan emphasizes dramatic vaulted ceilings, generous gathering spaces, and natural materials to create a warm yet upscale retreat ambiance.
-
With its expansive size and distinctive style, the “Riverstone Retreat” offers the flexibility to serve as a full-time family home, vacation lodge, or large retreat property.
Who This Plan Is For
If you’re drawn to a home plan that blends rustic elegance with generous space and adaptable layout, the “Riverstone Retreat” is a standout choice. It’s especially well-suited to:
- Families or homeowners seeking a large footprint with open communal zones and private bedroom areas.
- Those who appreciate lodge or mountain-style aesthetics — timber, stone, vaulted spaces — but want modern livability.
- Buyers looking for a home that feels like a getaway yet functions comfortably as everyday living.
- Anyone wanting a layout that accommodates both entertaining and quiet retreat space — from great rooms to covered outdoor porches.
Home Specifications
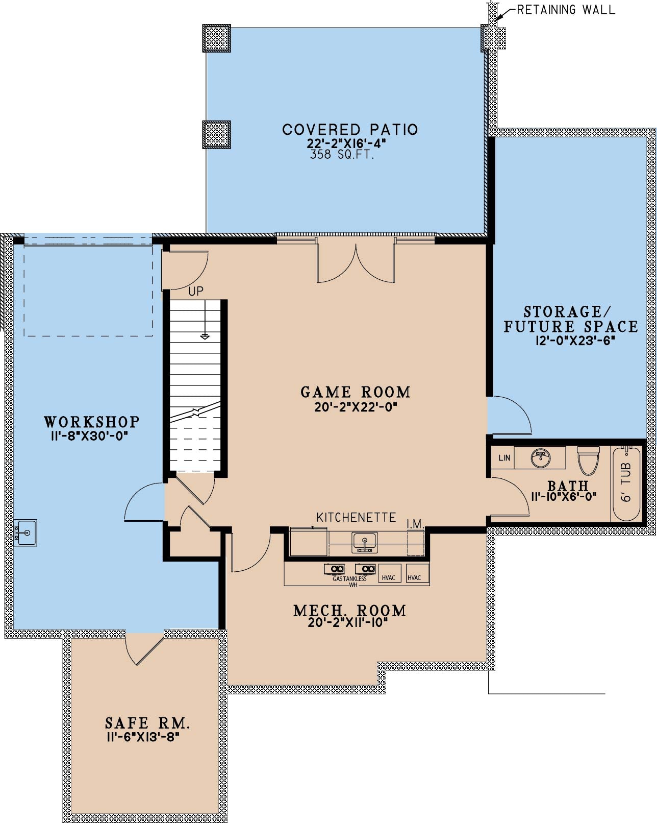
- Total Living Space: 4320
- Ridge Height (Ft.) 29
- Main Floor (Sq. Ft.): 3243 Sq.Ft
- Ridge Height (In.) 4
- Upper Floor (Sq. Ft.): N/A
- Main Ceiling Height: 9
- Lower Floor (Sq. Ft.): 1077 Sq.Ft.
- Upper Ceiling Height: N/A
- Porch (Sq. Ft.): 1182 Sq.Ft.
- Lower Ceiling Height: 9
- Garage (Sq. Ft.): 1170 Sq.Ft.
- Garage: 2 Bay Yes
- Bonus (Sq.Ft): N/A
- Bedrooms: 3
- Carport: N/A
- Full Baths: 3
- Roof Pitch: 12:12
- Half Baths: 1
- Porch Roof Pitch: 4:12
- Stories: 2.0
- Wall Construction: 2x6
- Lower Bonus (Sq. Ft.): 285 Sq.Ft.
- Vaulted Ceiling: Yes
- Depth (Ft): 61
- Width (Ft): 96
- Depth (In.) 6
- Width (In.) 8
- Total Sq. Ft. 6957 Sq.Ft.
- Customizable: Yes
Key Features
- Bonus Room
- Bonus/Game and Media Room
- Covered Front Porch
- Covered Rear Porch
- Decks Patios Balconies
- Game Room
- Great Room
- Home Office/Study
- Nook/Breakfast Area
- Open Floor Plan House Plans
- Screened Porch
- Split Bedroom Design
- Two Story
- Vaulted High Cathedral Ceiling
- Walk-in Closet
- Walk-in-Pantry
- Workshop Garage
Plan Collections
- Arts and Crafts House Plans Collection
- Michael E. Nelson House Plans Collection
- Rustic Ridge House Plans Collection
Plan Styles
- Craftsman House Plans
- Rustic House Plans
- Traditional House Plans









