House Plan 5484 Country Charm, Farmhouse House Plan
Please log in or create account to add the product in wishlist.
Wishlist is not saved permanently yet. Please log in or create account to save it.
Or order by phone: (870) 931-5777
Floor Plans
Description
House Plan MEN 5484 – Country Charm
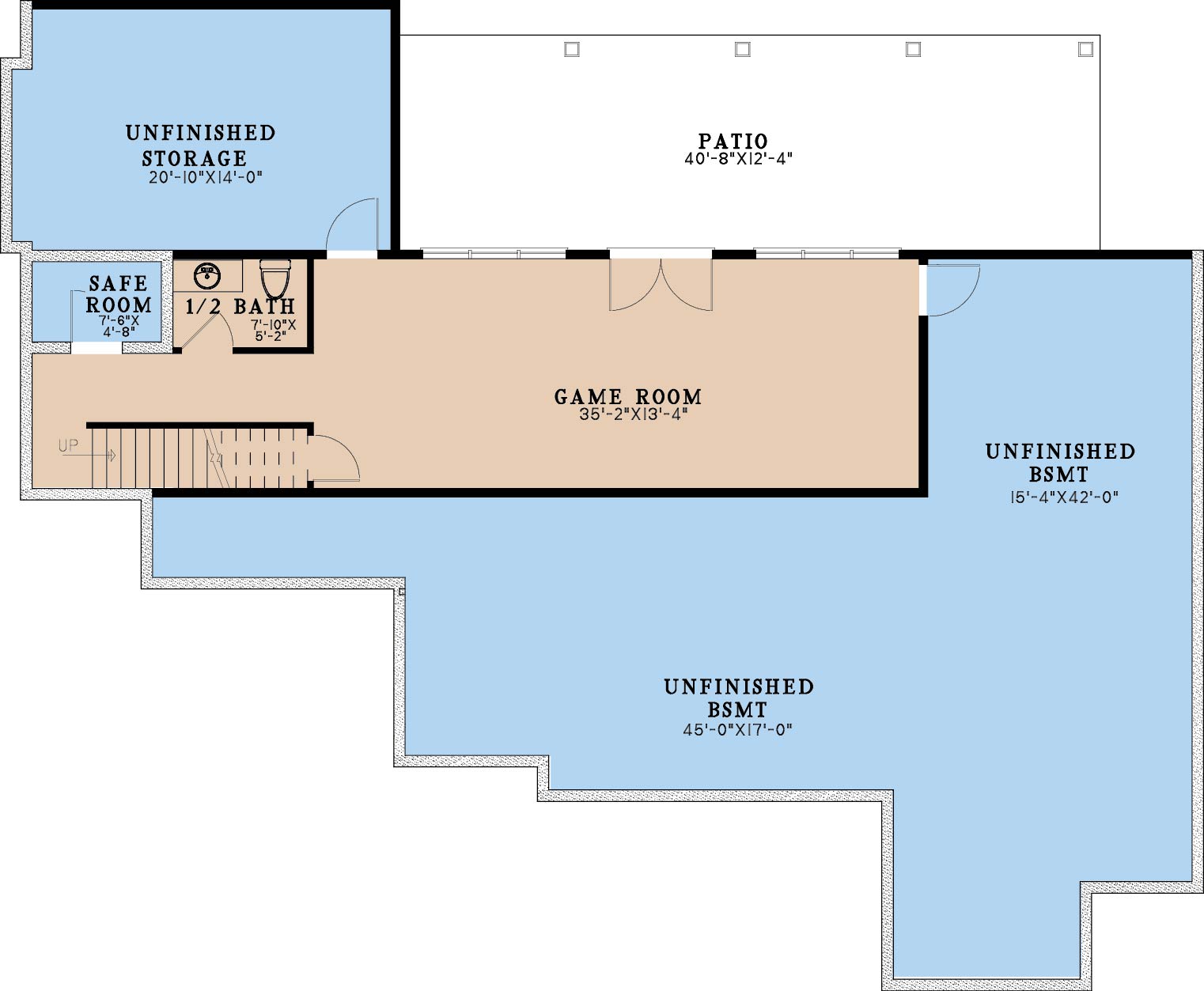
Discover the perfect blend of timeless farmhouse beauty and modern convenience with the Country Charm House Plan 5484 by Nelson Design Group. This thoughtfully designed two‑story home offers approximately 3,369 square feet of living space, featuring 4 bedrooms, 2 full bathrooms, and 2 half baths. the open‑concept layout seamlessly connects the great room, dining area, and kitchen — ideal for families who value both everyday comfort and entertaining space. The master suite is positioned for privacy and luxury, while the additional bedrooms and a versatile bonus room provide flexibility for guests, work or recreation. With approximately 641 square feet of porch space and 489 square feet bonus room, the design extends living beyond the interior walls.
Why Choose the Country Charm House Plan
- Modern farmhouse architectural style with classic elements and contemporary flow
- Two‑story layout (~3,369 sq ft) offering generous space while remaining efficient
- Four bedrooms + two full baths + two half baths providing flexibility and comfort
- Open‑concept living areas designed for family interaction and ease of movement
- Bonus room and outdoor porch space to enhance lifestyle and entertaining
Home Specifications
- Total Living Space: 3369
- Ridge Height (Ft.) 25
- Main Floor (Sq. Ft.): 2378 Sq.Ft
- Ridge Height (In.) 6
- Upper Floor (Sq. Ft.): N/A
- Main Ceiling Height: 9
- Lower Floor (Sq. Ft.): 991 Sq.Ft.
- Upper Ceiling Height: 8
- Porch (Sq. Ft.): 641 Sq.Ft.
- Lower Ceiling Height: N/A
- Garage (Sq. Ft.): 503 Sq.Ft.
- Garage: 2 Bay Yes
- Bonus (Sq.Ft): 489 Sq.Ft.
- Garage/Carport Type:Side Load Side Load
- Bedrooms: 4
- Carport: N/A
- Full Baths: 2
- Roof Pitch: 8:12
- Half Baths: 2
- Porch Roof Pitch: 4:12
- Stories: 2.0
- Wall Construction: 2x4
- Lower Bonus (Sq. Ft.): N/A
- Vaulted Ceiling: Yes
- Depth (Ft): 57
- Width (Ft): 68
- Depth (In.) 6
- Width (In.) 8
- Total Sq. Ft. 4513 Sq.Ft.
- Customizable: Yes
Key Features
- Arched Entry
- Bonus Room
- Covered Front Porch
- Covered Rear Porch
- Formal Dining Room
- Game Room
- Great Room
- Grilling Porch
- Home Office/Study
- Jack & Jill Bathroom
- Kitchen Island
- Main Floor Master
- Open Floor Plan House Plans
- Saferoom
- Screened Porch
- Walk-in Closet
- Walk-in-Pantry
- Workshop Garage
Plan Collections
- Michael E. Nelson House Plans Collection
- Modern Farmhouse Plans
Plan Styles
- Farmhouse House Plans



















