House Plan 1026 Madison Point, French Country House Plan
Please log in or create account to add the product in wishlist.
Wishlist is not saved permanently yet. Please log in or create account to save it.
Or order by phone: (870) 931-5777
Floor Plans
Description
House Plan SMN 1026 Madison Point – French Country Luxury with Modern Comfort
Discover one of the most elegant and functional house plans available today — the Madison Point House Plan 1026 by Seth M. Nelson. This single-story French Country design offers 2,399 square feet of living space, 3 bedrooms, 3 full baths, and 1 half bath, all complemented by a 2-car side-load garage. Perfect for families or those seeking refined one-level living, this home blends timeless European style with the ease of modern convenience.
Step through the inviting front porch into a spacious foyer that opens into the great room, kitchen, and dining area. The open floor plan encourages effortless entertaining and daily comfort, while the large kitchen island, walk-in pantry, and dining space create a natural flow for family gatherings. Two secondary bedrooms share a convenient Jack-and-Jill bath on one side of the home, while the private master suite occupies the opposite wing for total tranquility.
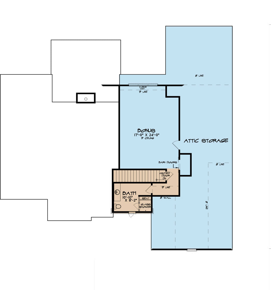
Inside the master suite, you’ll find a spa-like bath with his-and-her vanities, a freestanding soaking tub, walk-in glass shower, and an expansive closet with direct access to the laundry room — a smart design feature that simplifies everyday living. The optional upstairs bonus room with a full bath offers additional space for a home office, guest suite, or recreation area.
Outdoor living is another highlight of this design. The covered front and rear porches extend your living space and make it easy to enjoy fresh air, relax, or entertain. Optional pool storage and customizable features make Madison Point ideal for homeowners who want to tailor their home to fit their lifestyle.
What makes this design stand out among other house plans is its perfect balance of style, functionality, and flexibility. The French Country architecture, with elegant gables and wood accents, delivers exceptional curb appeal, while the interior layout promotes connection and comfort. Every detail has been considered to create a home that looks beautiful and lives even better.
Home Specifications
- Total Living Space: 2399
- Ridge Height (Ft.) 29
- Main Floor (Sq. Ft.): 2248 Sq.Ft
- Ridge Height (In.) 4
- Upper Floor (Sq. Ft.): 151 Sq.Ft.
- Main Ceiling Height: 10
- Lower Floor (Sq. Ft.): N/A
- Upper Ceiling Height: 8
- Porch (Sq. Ft.): 406 Sq.Ft.
- Lower Ceiling Height: N/A
- Garage (Sq. Ft.): 759 Sq.Ft.
- Garage: 2 Bay Yes
- Bonus (Sq.Ft): 447 Sq.Ft.
- Garage/Carport Type:Side Load Side Load
- Bedrooms: 3
- Carport: N/A
- Full Baths: 3
- Roof Pitch: 10:12
- Half Baths: 1
- Porch Roof Pitch: 16:12
- Stories: 1.0
- Wall Construction: 2x4
- Lower Bonus (Sq. Ft.): N/A
- Vaulted Ceiling: Yes
- Depth (Ft): 64
- Width (Ft): 67
- Depth (In.) 10
- Width (In.) 2
- Total Sq. Ft. 4011 Sq.Ft.
- Customizable: Yes
Key Features
- Arched Entry
- Bonus Room
- Covered Front Porch
- Covered Rear Porch
- Formal Dining Room
- Great Room
- Jack & Jill Bathroom
- Kitchen Island
- Main Floor Master
- Open Floor Plan House Plans
- Peninsula/Eating Bar
- Single Story
- Split Bedroom Design
- Walk-in Closet
- Walk-in-Pantry
Plan Collections
- Seth M. Nelson House Plans Collection
Plan Styles
- Craftsman House Plans
- European House Plans
- French Country House Plans
- Luxury House Plans









