House Plan 1120 Elaine, Traditional House Plan
Please log in or create account to add the product in wishlist.
Wishlist is not saved permanently yet. Please log in or create account to save it.
Or order by phone: (870) 931-5777
Floor Plans
Description
House Plan 1120 Elaine – Traditional Family Home with Thoughtful Design & Comfortable Living
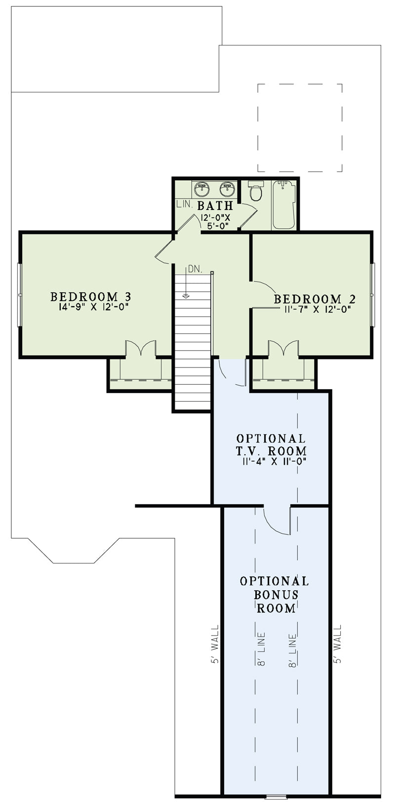
Discover the timeless appeal and smart functionality of House Plan 1120 Elaine, a beautifully crafted 1.5‑story traditional home offering approximately 2,188 sq ft of heated living space. This well‑balanced design features 3 bedrooms and 2 full baths, with a versatile layout that’s perfect for everyday living and family comfort. The exterior’s classic lines and traditional styling deliver charming curb appeal, while the interior emphasizes an open, flowing floor plan that connects living spaces for easy interaction and entertaining. A private master suite provides a relaxing retreat, and well‑proportioned secondary bedrooms ensure comfort and convenience. Thoughtful details like generous storage, practical living zones, and a side‑load garage enhance daily life. House Plan 1120 Elaine blends classic exterior design with modern interior function, making it ideal for families seeking comfort, style, and value.
Key Features
• Approximately 2,188 sq ft of heated living space (main and upper levels)
• 3 bedrooms and 2 full baths
• 1.5‑story traditional layout with classic curb appeal
• Open living spaces for connected daily life
• Private master suite for comfort and convenience
• Well‑placed secondary bedrooms for family or guests
• Side‑load garage for parking and storage
• Thoughtful storage solutions throughout
• Flexible spaces for home office, playroom, or hobbies
Home Specifications
- Total Living Space: 2188
- Ridge Height (Ft.) 29
- Main Floor (Sq. Ft.): 1663 Sq.Ft
- Ridge Height (In.) 4
- Upper Floor (Sq. Ft.): 525 Sq.Ft.
- Main Ceiling Height: 9
- Lower Floor (Sq. Ft.): N/A
- Upper Ceiling Height: 8
- Porch (Sq. Ft.): 195 Sq.Ft.
- Lower Ceiling Height: N/A
- Garage (Sq. Ft.): 544 Sq.Ft.
- Garage: 2 Bay Yes
- Bonus (Sq.Ft): 465 Sq.Ft.
- Garage/Carport Type:Court Yard Court Yard
- Bedrooms: 3
- Carport: N/A
- Full Baths: 2
- Roof Pitch: 12:12
- Half Baths: 1
- Porch Roof Pitch: N/A
- Stories: 1.5
- Wall Construction: 2x4
- Lower Bonus (Sq. Ft.): N/A
- Vaulted Ceiling: No
- Depth (Ft): 79
- Width (Ft): 36
- Depth (In.) 8
- Width (In.) 6
- Total Sq. Ft. 3392 Sq.Ft.
- Customizable: Yes
Key Features
- Bonus Room Over Garage
- Bonus/Game and Media Room
- Covered Front Porch
- Covered Rear Porch
- Economic Structure
- Formal Dining Room
- Great Room
- Home Office/Study
- Main Floor Master
- Media Room
- Narrow Lot House Plans
- Nook/Breakfast Area
- Open Floor Plan House Plans
- Outdoor Living Space
- Peninsula/Eating Bar
- Screened Porch
- Split Bedroom Design
- Walk-in Closet
Plan Collections
Plan Styles
- Craftsman House Plans
- French Traditional House Plans
- Traditional House Plans








