House Plan 1122 Cambridge Court, Multi-Family House Plan
Please log in or create account to add the product in wishlist.
Wishlist is not saved permanently yet. Please log in or create account to save it.
Or order by phone: (870) 931-5777
Floor Plans
Description
House Plan 1122 Cambridge Court – Efficient Multi‑Family Home with Practical Layout
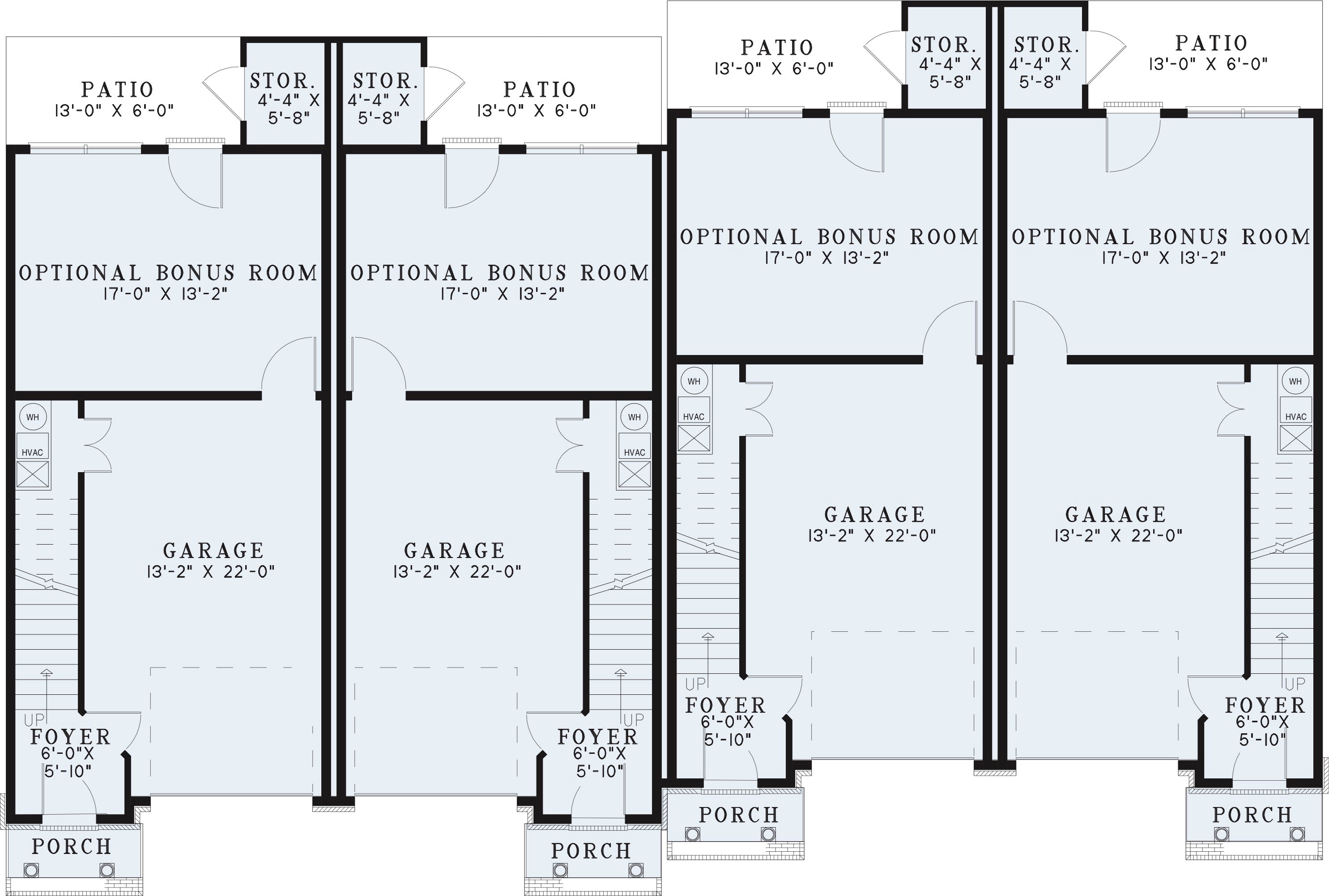
Explore smart design for shared living with House Plan 1122 Cambridge Court, a multi‑family home plan offering approximately 1,295 sq ft of heated living space per unit. This duplex‑style layout features 2 bedrooms and 2 full baths in each home, making it a great choice for investors, rental income, extended family living, or multi‑generation households that want both privacy and comfort. Each unit includes an open living area that flows naturally to a functional kitchen and dining space, giving residents a comfortable environment for everyday living. Thoughtful bedroom placement provides private retreats, while shared walls and efficient use of space make this plan economical and versatile. With well‑proportioned rooms and a practical layout, Cambridge Court delivers value‑focused design without compromising livability.
Key Features
• Approximately 1,295 sq ft of heated living space per unit
• 2 bedrooms and 2 full baths in each unit
• Multi‑family layout ideal for rental properties, investors, or multi‑generation living
• Open living space connected to kitchen and dining for everyday convenience
• Bedrooms positioned for privacy
• Efficient interior layout for comfort and function
• Thoughtful design that balances community and private space
Home Specifications
- Total Living Space: 1295
- Ridge Height (Ft.) 44
- Main Floor (Sq. Ft.): 667 Sq.Ft
- Ridge Height (In.) 8
- Upper Floor (Sq. Ft.): 628 Sq.Ft.
- Main Ceiling Height: 9
- Lower Floor (Sq. Ft.): N/A
- Upper Ceiling Height: 8
- Porch (Sq. Ft.): 14 Sq.Ft.
- Lower Ceiling Height: 8
- Garage (Sq. Ft.): 403 Sq.Ft.
- Garage: 1 Bay Yes
- Bonus (Sq.Ft): 256 Sq.Ft.
- Garage/Carport Type:Front Load Front Load
- Bedrooms: 2
- Carport: N/A
- Full Baths: 2
- Roof Pitch: 10:12
- Porch Roof Pitch: N/A
- Stories: 3.0
- Wall Construction: 2x4
- Lower Bonus (Sq. Ft.): N/A
- Vaulted Ceiling: No
- Depth (Ft): 39
- Width (Ft): 73
- Depth (In.) 8
- Width (In.) N/A
- Total Sq. Ft. 1968 Sq.Ft.
- Customizable: Yes
Key Features
- Bonus Room
- Covered Front Porch
- Decks Patios Balconies
- Formal Dining Room
- Great Room
- Kitchen Island
- Open Floor Plan House Plans
- Peninsula/Eating Bar
- Walk-in Closet
Plan Collections
- Multi-Family House Plans
Plan Styles
- French Traditional House Plans
- Traditional House Plans









