House Plan 1124 Cambridge Court, Multi-Family House Plan
Please log in or create account to add the product in wishlist.
Wishlist is not saved permanently yet. Please log in or create account to save it.
Or order by phone: (870) 931-5777
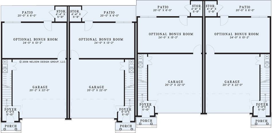
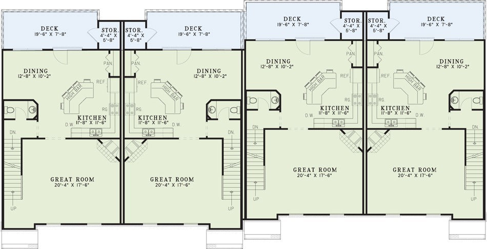
Floor Plans
Description
House Plan 1124 Cambridge Court – Multi‑Family Home with Comfortable Living Spaces
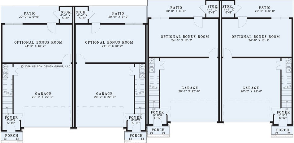
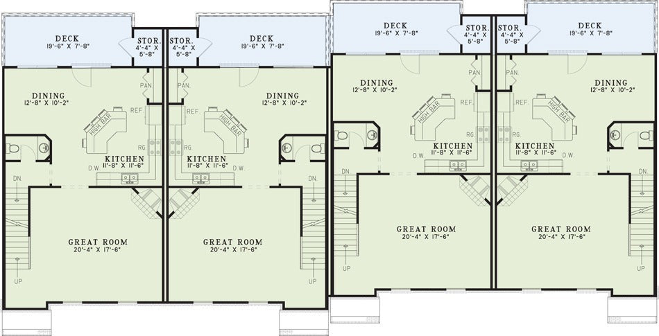
Explore versatile living with House Plan 1124 Cambridge Court, a thoughtfully designed multi‑family home plan offering approximately 1,807 sq ft of heated living space per unit. Each unit features 3 bedrooms, 2 full baths, and 1 half bath, making it ideal for investors, multi‑generation families, or shared housing situations that value both privacy and community. The layout includes an open great room flowing into the kitchen and dining areas, creating a welcoming space for daily living and entertaining. Each unit also provides convenient amenities and thoughtful bedroom placement, giving residents flexible spaces for work, rest, and play. With a 2‑bay garage for each unit, Cambridge Court combines functional design with comfortable living in a plan that’s both practical and attractive.
Key Features
• Approximately 1,807 sq ft of heated living space per unit
• 3 bedrooms, 2 full baths, and 1 half bath per unit
• Multi‑family layout designed for shared living or rental potential
• Open great room with easy flow to kitchen and dining areas
• Front-load 2‑bay garage for each unit
• Comfortable common spaces for everyday living
• Thoughtful bedroom placement for privacy and convenience
• Ideal for investors or multi‑generation households seeking functional living space
Home Specifications
- Total Living Space: 1807
- Ridge Height (Ft.) 44
- Main Floor (Sq. Ft.): 923 Sq.Ft
- Ridge Height (In.) 4
- Upper Floor (Sq. Ft.): 884 Sq.Ft.
- Main Ceiling Height: 9
- Lower Floor (Sq. Ft.): N/A
- Upper Ceiling Height: 8
- Porch (Sq. Ft.): 14 Sq.Ft.
- Lower Ceiling Height: N/A
- Garage (Sq. Ft.): 560 Sq.Ft.
- Garage: 2 Bay Yes
- Bonus (Sq.Ft): 354 Sq.Ft.
- Garage/Carport Type:Front Load Front Load
- Bedrooms: 3
- Carport: N/A
- Full Baths: 2
- Roof Pitch: 10:12
- Half Baths: 1
- Porch Roof Pitch: N/A
- Stories: 3.0
- Wall Construction: 2x4
- Lower Bonus (Sq. Ft.): N/A
- Vaulted Ceiling: No
- Depth (Ft): 47
- Width (Ft): 101
- Depth (In.) 9
- Width (In.) N/A
- Total Sq. Ft. 2735 Sq.Ft.
- Customizable: Yes
Key Features
- Bonus Room
- Covered Front Porch
- Decks Patios Balconies
- Formal Dining Room
- Great Room
- Nook/Breakfast Area
- Open Floor Plan House Plans
- Peninsula/Eating Bar
- Walk-in Closet
Plan Collections
- Multi-Family House Plans
Plan Styles
- Luxury House Plans
- Southern House Plans
- Traditional House Plans









