House Plan 1407 Whispering Cove, European House Plan
Please log in or create account to add the product in wishlist.
Wishlist is not saved permanently yet. Please log in or create account to save it.
Or order by phone: (870) 931-5777
Floor Plans
Description
House Plan NDG 1407 – Whispering Cove: Elegant European Masterpiece for Modern Living
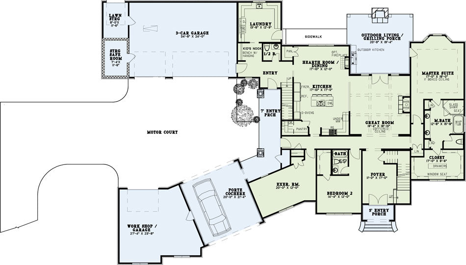
Experience the refined combination of European architectural charm and contemporary layout with Whispering Cove (Plan NDG 1407). Offering an impressive 4,949 sq ft of living space, this design showcases spacious luxury, thoughtful organization, and exceptional outdoor connectivity.
Key Features
- Total Living Space: 4,949 sq ft (3,282 sq ft main; 1,667 sq ft upper)
- Bedrooms & Baths: 4 bedrooms, 4 full baths, and 2 half baths
- Garage & Porte-Cochere: Rear-load 4-bay garage (2,106 sq ft) plus a covered porte-cochere entrance
- Stories & Dimensions: 2 stories, 116' 10" wide × 84' 5" deep footprint
- Outdoor Living: 693 sq ft grilling porch and additional entertainment space under the roof
What Makes Whispering Cove Special
Step into a grand Great Room featuring a coffered ceiling and fireplace, opening through French doors onto a covered grilling porch—ideal for seamless indoor-outdoor entertaining. The kitchen is built for hospitality with a large eat-at island, double ovens, and walk-in pantry, flowing into a hearth-style dining space with its own pantry and optional fireplace.
The Master Suite is a luxurious retreat, highlighted by a bay window, porch access, a corner glass shower, a whirlpool tub, dual vanities, and an expansive walk-in closet. A second bedroom and a dedicated exercise room round out the main level.
Upstairs, two more bedroom suites each come with walk-in closets and full bathrooms. Additional features include a kids’ TV area, computer nook, and a large media/game room with a bar and half bath—all opening onto a spacious balcony.
Why Buyers Will Love Whispering Cove
Grand character meets family practicality. Elegant architectural details blend with modern open layouts, making it perfect for multigenerational living or entertaining.
Luxurious and functional design. Every space—indoor or out—is thoughtfully crafted to balance beauty and usability.
Entertainer’s dream. A seamless indoor-outdoor flow and multiple living areas ensure comfort through all seasons.
Premium plan readiness. Designed with builder-friendly specs and customizable options for personal touches.
Explore House Plan NDG 1407 – Whispering Cove
Home Specifications
- Total Living Space: 4949
- Ridge Height (Ft.) 38
- Main Floor (Sq. Ft.): 3282 Sq.Ft
- Ridge Height (In.) 0
- Upper Floor (Sq. Ft.): 1667 Sq.Ft.
- Main Ceiling Height: 10
- Lower Floor (Sq. Ft.): N/A
- Upper Ceiling Height: 9
- Porch (Sq. Ft.): 693 Sq.Ft.
- Lower Ceiling Height: N/A
- Garage (Sq. Ft.): 2106 Sq.Ft.
- Garage: 4 Bay Yes
- Bonus (Sq.Ft): N/A
- Garage/Carport Type:Side Load, Front Load, Court Yard, and Porte-Cochere Side Load, Front Load, Court Yard, and Porte-Cochere
- Bedrooms: 4
- Carport: Yes
- Full Baths: 4
- Roof Pitch: 12:12
- Half Baths: 2
- Porch Roof Pitch: 12:12
- Stories: 2.0
- Wall Construction: 2x4
- Lower Bonus (Sq. Ft.): N/A
- Vaulted Ceiling: No
- Depth (Ft): 84
- Width (Ft): 116
- Depth (In.) 5
- Width (In.) 10
- Total Sq. Ft. 7748 Sq.Ft.
- Customizable: Yes
Key Features
- Balcony
- Covered Front Porch
- Covered Rear Porch
- Decks Patios Balconies
- Exercise Room
- Formal Dining Room
- Game Room
- Great Room
- Grilling Porch
- Kitchen Island
- Main Floor Master
- Media Room
- Mudroom
- Open Floor Plan House Plans
- Outdoor Kitchen
- Outdoor Living Space
- Peninsula/Eating Bar
- Porte-Cochere
- Saferoom
- Split Bedroom Design
- Walk-in Closet
- Walk-in-Pantry
- Workshop Garage
Plan Collections
- European House Plans Collection
Plan Styles
- European House Plans
- Luxury House Plans
- Traditional House Plans











