House Plan 1385 Summer Place II, Riverbend House Plan
Please log in or create account to add the product in wishlist.
Wishlist is not saved permanently yet. Please log in or create account to save it.
Or order by phone: (870) 931-5777
Floor Plans
Description
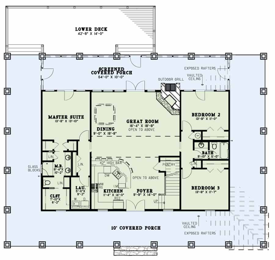
House Plan NDG 1385 – Summer Place II
Rustic Elegance with Room to Grow
Blending rustic charm with modern convenience, NDG 1385 Summer Place II is a standout choice for families, vacation homes, or anyone searching for house plans that prioritize both beauty and functionality. With 5 bedrooms, 3 bathrooms, and nearly 2,900 square feet of living space, this plan offers the perfect balance of open-concept living and private retreats.
Plan Details:
- 2,903 sq. ft. total heated space
- 1,848 sq. ft. on the main level
- 1,055 sq. ft. upstairs
- 5 Bedrooms / 3 Full Bathrooms
- Wrap-Around Covered Porch with rustic timber posts and stone columns
- Screened Rear Porch with outdoor grill for all-season entertaining
- Spacious Great Room with fireplace and open sightlines to kitchen and dining
- Main-Level Master Suite with private porch access and large closet
- Upstairs Loft Walkway connecting bedrooms 4 and 5, overlooking the great room below
- Multiple Foundation Options including slab, crawlspace, or basement
Perfect For:
- Families needing extra bedrooms or flexible living space
- Mountain, lakefront, or country lots
- Those seeking house plans with strong curb appeal and outdoor living features
- Buyers looking for customizable home plans with room to grow
Whether you're building your forever home or a relaxing getaway, Summer Place II combines comfort, flexibility, and rustic elegance in a highly livable floor plan.
Customize Your Dream Home
This plan is easily modified to suit your needs. Choose your preferred foundation, reverse the layout, or adjust room sizes to match your lifestyle.
Home Specifications
- Total Living Space: 2903
- Ridge Height (Ft.) 28
- Main Floor (Sq. Ft.): 1848 Sq.Ft
- Ridge Height (In.) 0
- Upper Floor (Sq. Ft.): 1055 Sq.Ft.
- Main Ceiling Height: 9
- Lower Floor (Sq. Ft.): N/A
- Upper Ceiling Height: 8
- Porch (Sq. Ft.): 2181 Sq.Ft.
- Lower Ceiling Height: N/A
- Garage (Sq. Ft.): N/A
- Garage: No
- Bonus (Sq.Ft): N/A
- Garage/Carport Type:N/A N/A
- Bedrooms: 5
- Carport: N/A
- Full Baths: 3
- Roof Pitch: 10:12
- Porch Roof Pitch: 5:12
- Stories: 1.5
- Wall Construction: 2x4
- Lower Bonus (Sq. Ft.): N/A
- Vaulted Ceiling: Yes
- Depth (Ft): 68
- Width (Ft): 74
- Depth (In.) 7
- Width (In.) 2
- Total Sq. Ft. 5084 Sq.Ft.
- Customizable: Yes
Key Features
- Covered Front Porch
- Covered Rear Porch
- Decks Patios Balconies
- Game Room
- Great Room
- Main Floor Master
- No Formal Dining
- Open Floor Plan House Plans
- Outdoor Living Space
- Peninsula/Eating Bar
- Screened Porch
- Split Bedroom Design
- Walk-in Closet
- Walk-in-Pantry
- Wrap-Around Porch
Plan Collections
- Riverbend Cabin House Plans Collection
- Waterfront House Plans Collection
Plan Styles
- Lake House Plans
- Country Home House Plans
- Low Country House Plans
- Rustic House Plans
- Barndominium House Plans









