House Plan 611B Polly Anna II, Colonial Classical Federal House Plan
Please log in or create account to add the product in wishlist.
Wishlist is not saved permanently yet. Please log in or create account to save it.
Or order by phone: (870) 931-5777
Floor Plans
Description
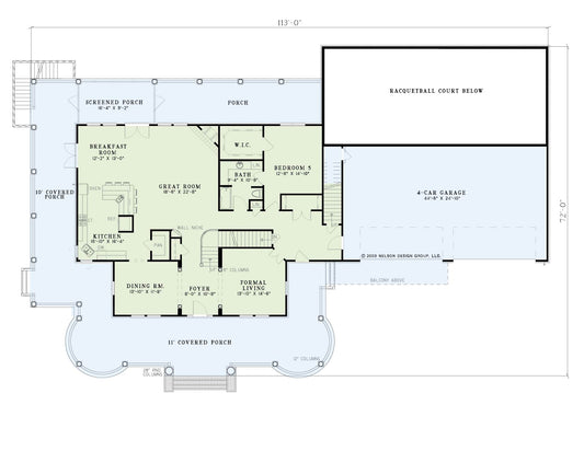
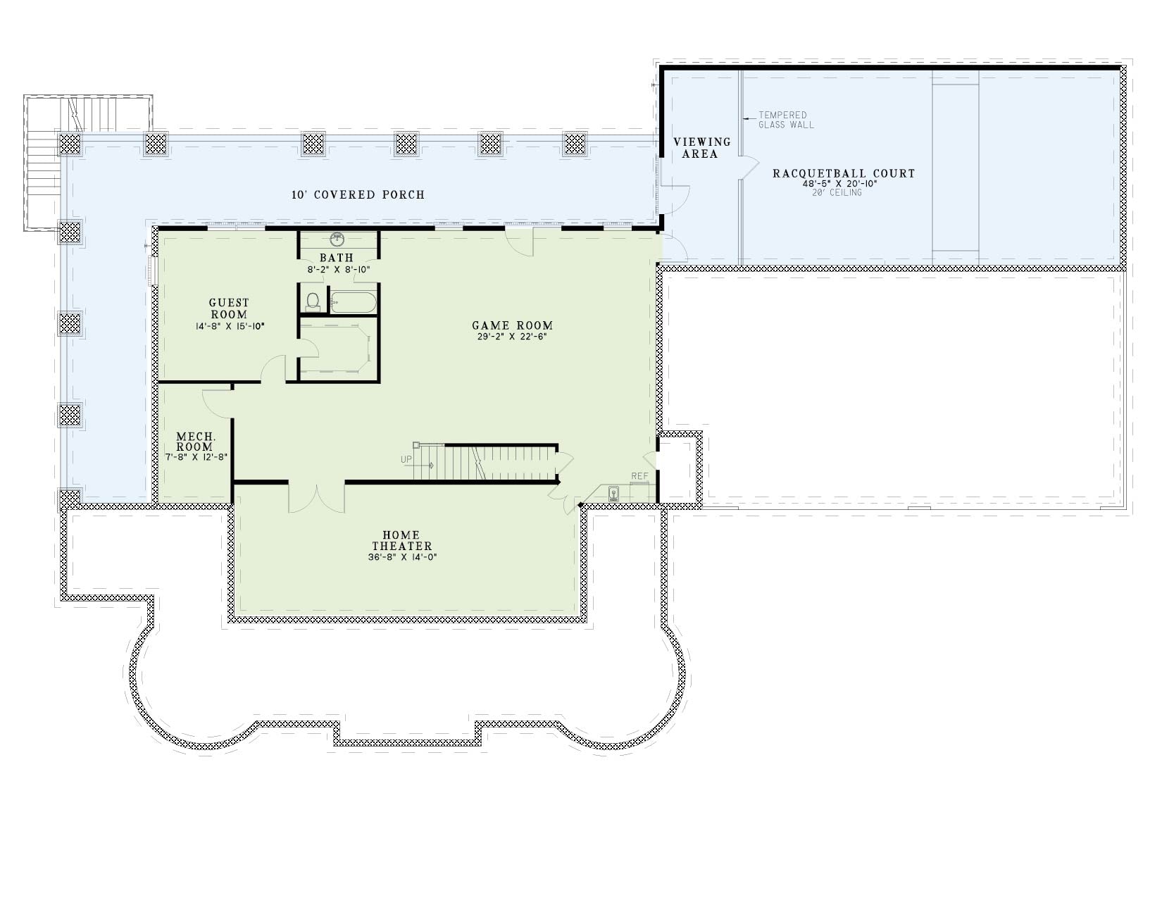
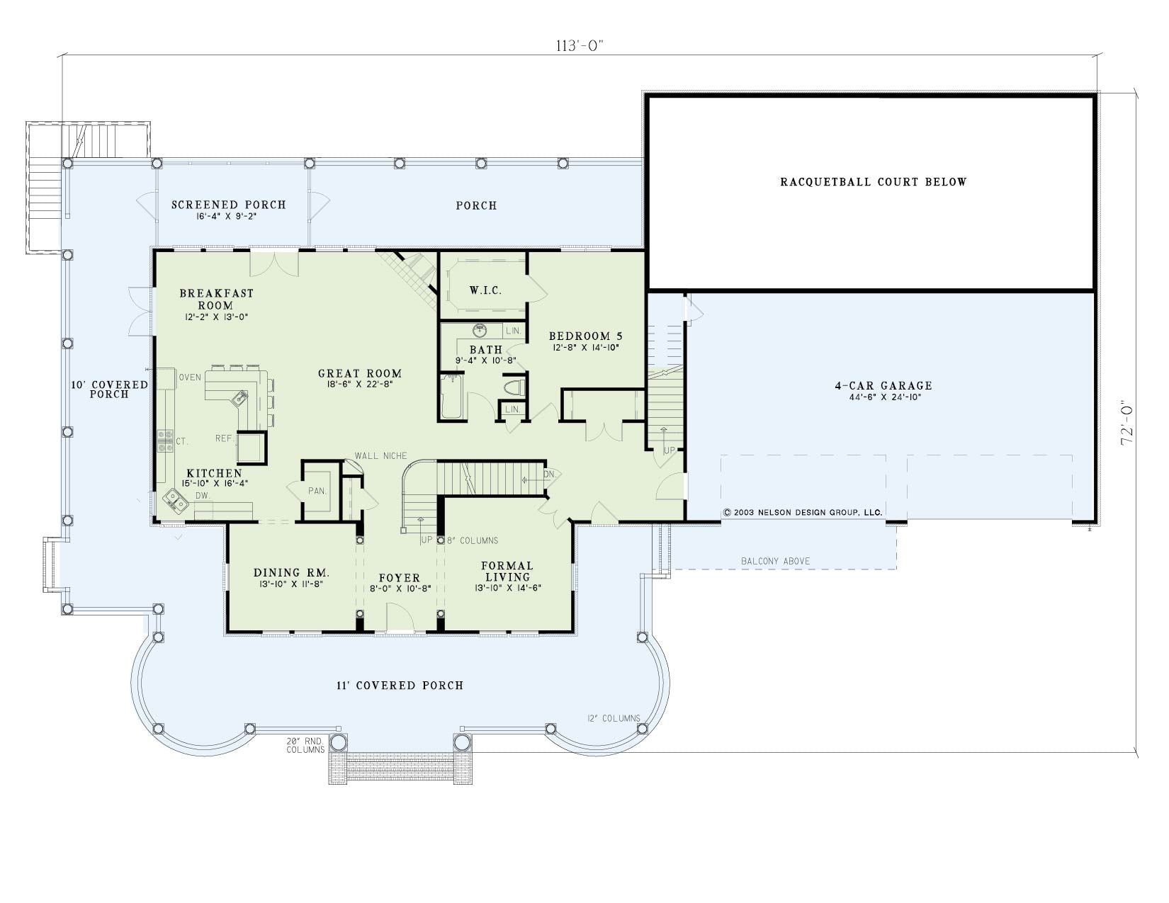
The styling is classic, evoking memories of bygone days, when sitting on the wraparound porch and balconies or screened porches was a daily part of life. Step into this superb five bedroom home and you’ll see a home built for today with up to the minute amenities. Luxury features include a four car garage, basement racquetball court, a huge game room, a home theater and a large private office. Bedrooms 2, 4 and 5 feature walk-in closets, while bedrooms 3 and 5 have their own bathrooms. As you would expect from a home of this quality the upstairs master suite is magnificent. Designed as your private retreat the large bedroom has a giant walk-in closet, and entry onto your private screened porch. You’ll love the master bath as your luxuriate in your whirlpool bath.
**Raquet Ball Court is 1078 Sq. Ft**
Home Specifications
- Total Living Space: 6903
- Ridge Height (Ft.) 38
- Main Floor (Sq. Ft.): 2181 Sq.Ft
- Ridge Height (In.) 3
- Upper Floor (Sq. Ft.): 2663 Sq.Ft.
- Main Ceiling Height: 10
- Lower Floor (Sq. Ft.): 2059 Sq.Ft.
- Upper Ceiling Height: 9
- Porch (Sq. Ft.): 4008 Sq.Ft.
- Lower Ceiling Height: 10
- Garage (Sq. Ft.): 1128 Sq.Ft.
- Garage: 4 Bay Yes
- Bonus (Sq.Ft): N/A
- Garage/Carport Type:Front Load Front Load
- Bedrooms: 6
- Carport: N/A
- Full Baths: 5
- Roof Pitch: 10:12
- Porch Roof Pitch: N/A
- Stories: 3.0
- Wall Construction: 2x4
- Lower Bonus (Sq. Ft.): N/A
- Vaulted Ceiling: No
- Depth (Ft): 72
- Width (Ft): 113
- Depth (In.) N/A
- Width (In.) N/A
- Total Sq. Ft. 13117 Sq.Ft.
- Customizable: Yes
Key Features
- Balcony
- Covered Front Porch
- Covered Rear Porch
- Decks Patios Balconies
- Formal Dining Room
- Game Room
- Great Room
- Home Office/Study
- Home Theater
- Nook/Breakfast Area
- Open Floor Plan House Plans
- Peninsula/Eating Bar
- Screened Porch
- Split Bedroom Design
- Walk-in Closet
- Walk-in-Pantry
- Wrap-Around Porch
Plan Collections
Plan Styles
- Classical House Plans
- Colonial Classical Federal House Plans
- Country Home House Plans
- Luxury House Plans
- Southern House Plans
- Traditional House Plans

















