House Plan 998 Georgia Avenue, Midtown Place House Plan
Please log in or create account to add the product in wishlist.
Wishlist is not saved permanently yet. Please log in or create account to save it.
Or order by phone: (870) 931-5777
Floor Plans
Description
House Plan 998 Georgia Avenue – Spacious Traditional Home with Open Living & Family Comfort
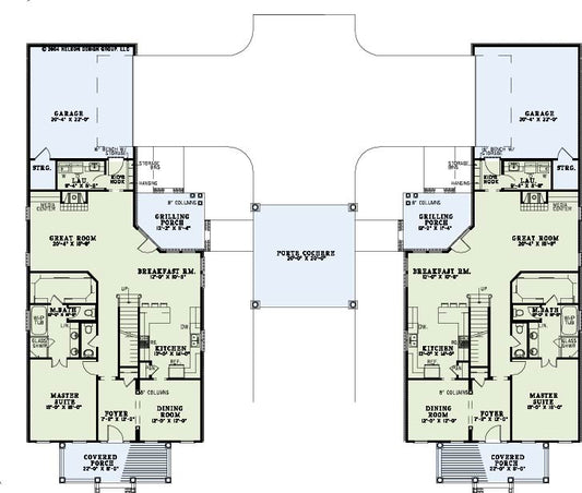
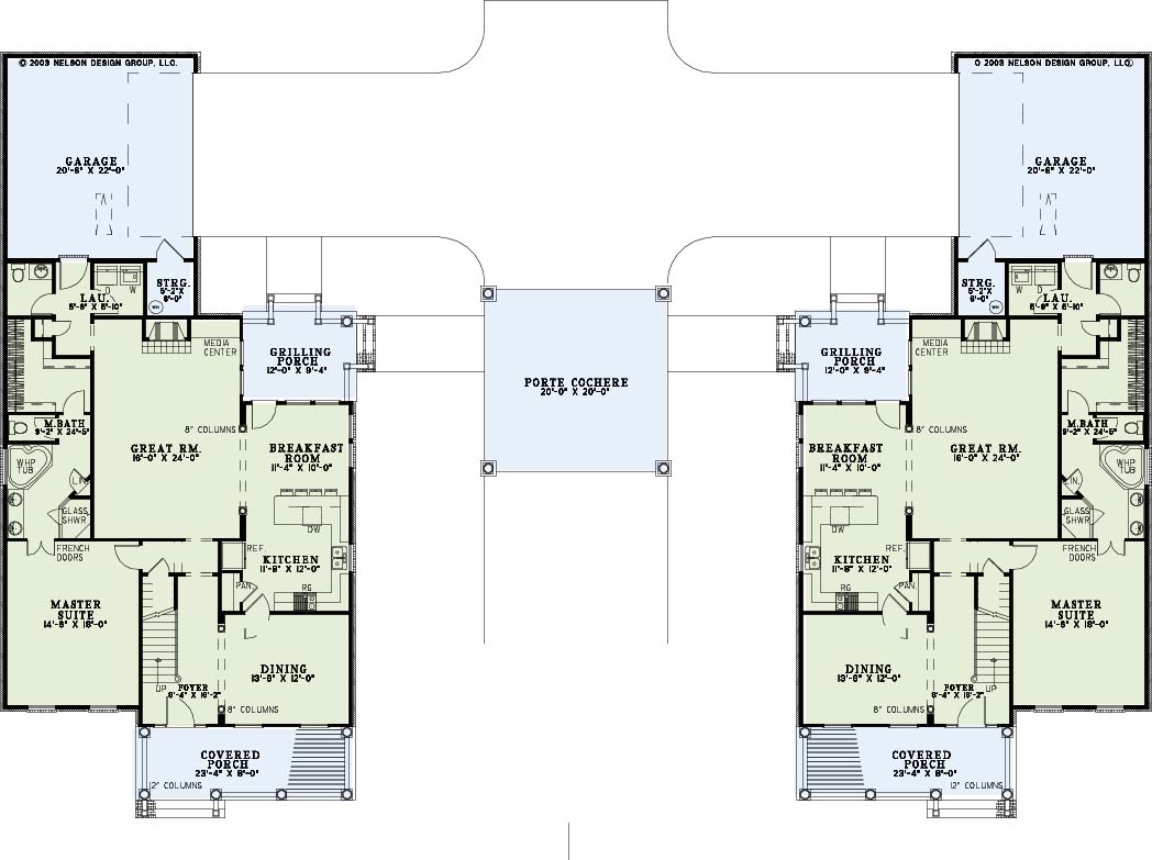
House Plan 998 Georgia Avenue is a beautifully designed single-story home offering approximately 2,727 sq ft of heated living space. This well-planned layout features 4 bedrooms and 2.5 baths, making it ideal for families who need room to grow while enjoying a functional, open floor plan. The exterior showcases classic traditional styling with a welcoming covered front porch for outdoor relaxation. Inside, the great room, kitchen, and dining areas flow seamlessly together, creating an ideal space for daily living and entertaining. The private master suite offers a comfortable retreat with a spacious bath and walk-in closet. Secondary bedrooms are thoughtfully positioned for privacy and convenience, while the half bath adds extra practicality for guests. With smart storage, flexible living spaces, and timeless design, Georgia Avenue delivers a perfect blend of style, comfort, and functionality.
Key Features
• Approximately 2,727 sq ft of heated living space
• 4 bedrooms and 2.5 baths
• 1.5 traditional design with classic curb appeal
• Private master suite with spacious bath and walk-in closet
• Secondary bedrooms designed for privacy and comfort
• Covered front porch for outdoor enjoyment
• Functional layout with ample storage
• Ideal for family living and entertaining
Home Specifications
- Total Living Space: 2727
- Ridge Height (Ft.) 33
- Main Floor (Sq. Ft.): 1675 Sq.Ft
- Ridge Height (In.) 6
- Upper Floor (Sq. Ft.): 1052 Sq.Ft.
- Main Ceiling Height: 9
- Lower Floor (Sq. Ft.): N/A
- Upper Ceiling Height: 9
- Porch (Sq. Ft.): 388 Sq.Ft.
- Lower Ceiling Height: N/A
- Garage (Sq. Ft.): 465 Sq.Ft.
- Garage: 2 Bay Yes
- Bonus (Sq.Ft): 285 Sq.Ft.
- Garage/Carport Type:Side Load and Porte-Cochere Side Load and Porte-Cochere
- Bedrooms: 4
- Carport: Yes
- Full Baths: 2
- Roof Pitch: 10:12
- Half Baths: 1
- Porch Roof Pitch: N/A
- Stories: 1.5
- Wall Construction: 2x4
- Lower Bonus (Sq. Ft.): N/A
- Vaulted Ceiling: No
- Depth (Ft): 81
- Width (Ft): 125
- Depth (In.) 8
- Width (In.) 4
- Total Sq. Ft. 3580 Sq.Ft.
- Customizable: Yes
Key Features
- Bonus Room
- Covered Front Porch
- Covered Rear Porch
- Formal Dining Room
- Great Room
- Grilling Porch
- Main Floor Master
- Nook/Breakfast Area
- Open Floor Plan House Plans
- Peninsula/Eating Bar
- Porte-Cochere
- Split Bedroom Design
- Walk-in Closet
Plan Collections
- Midtown Place House Plans Collection
- Multi-Family House Plans
Plan Styles
- Country Home House Plans
- French Classic House Plans
- Southern House Plans
- Traditional House Plans
- Traditional Neighborhood Design (TND) House Plans









