House Plan 1179 Pettigrew Cove, Heritage House Plan
Please log in or create account to add the product in wishlist.
Wishlist is not saved permanently yet. Please log in or create account to save it.
Or order by phone: (870) 931-5777
Floor Plans
Description
NDG 1179 Pettigrew Cove – A Spacious, Elegant House Plan for Traditional Comfort and Family Flexibility
NDG 1179 Pettigrew Cove is a two-story house plan offering approximately 3,425 square feet of living space — a well-balanced design suitable for families who value space, flexibility, and versatile living. This house plan delivers four bedrooms, three full bathrooms, and a three‑bay side‑load garage, combining generous common areas with private retreats.
From the welcoming covered front porch, you enter into a great room anchored by a fireplace that flows into an open kitchen and hearth room — a configuration that encourages gathering, entertaining, and everyday family life. The kitchen includes a wrap-around island bar and a walk-in pantry, providing both style and storage. A kids’ nook, functional laundry/mudroom, and home office add practical conveniences to everyday living.
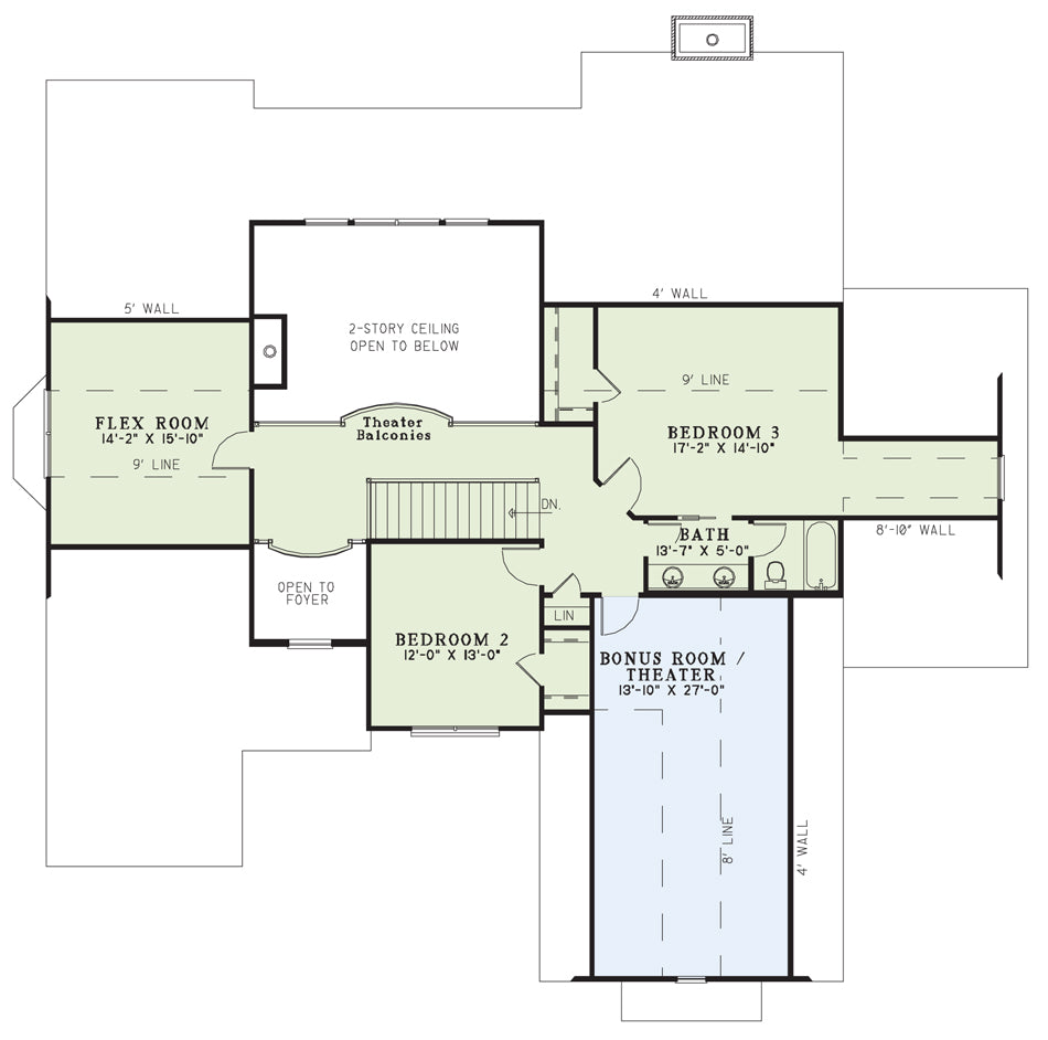
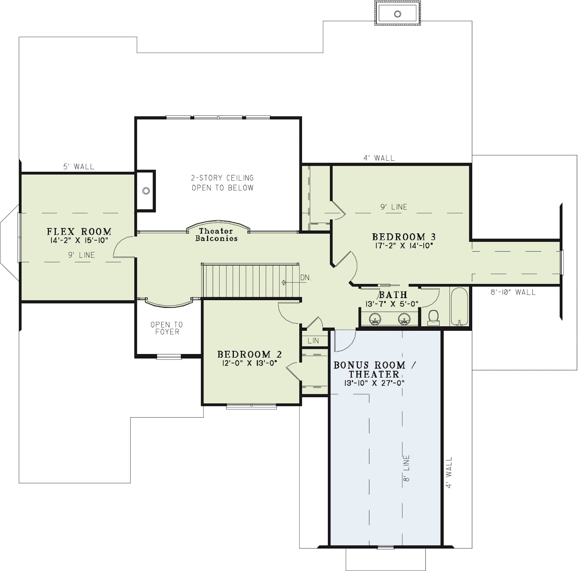
The main-floor master suite is a homeowner’s retreat, featuring a bay window, large walk-in closet, and a master bath with a corner glass shower and whirlpool tub. Upstairs, two theater balconies connect a flex room to bedrooms two and three, alongside a full bath and a bonus room or home theater — perfect for guests, hobbies, or recreation.
NDG 1179 Pettigrew Cove blends traditional architectural charm with a thoughtful, flexible layout, making it a house plan that supports comfortable daily living, entertaining, and long-term adaptability.
Key Highlights of House Plan NDG 1179 Pettigrew Cove
- Two-story house plan with approximately 3,425 sq. ft. of living space
- Four bedrooms and three full bathrooms — ideal for families, guests, or extended households
- Three-bay side‑load garage providing ample and conveniently tucked-away parking
- Great room with fireplace flowing into kitchen and hearth room — perfect for gatherings and open living
- Kitchen with wrap-around island bar and walk-in pantry for convenience and storage
- Main-floor master suite with bay window, large walk-in closet, corner glass shower, and whirlpool tub — a private, luxurious retreat
- Functional layout connecting kids’ nook, laundry/mudroom, and home office
- Upper-level theater balconies connecting flex room to secondary bedrooms — adds versatile living space
- Bonus room/home theater upstairs — ideal for recreation, media, or guests
- Balanced blend of formal and casual living areas — perfect for family living, entertaining, or multi-generational use
Home Specifications
- Total Living Space: 3425
- Ridge Height (Ft.) 30
- Main Floor (Sq. Ft.): 2338 Sq.Ft
- Ridge Height (In.) 4
- Upper Floor (Sq. Ft.): 1087 Sq.Ft.
- Main Ceiling Height: 9
- Lower Floor (Sq. Ft.): N/A
- Upper Ceiling Height: N/A
- Porch (Sq. Ft.): 248 Sq.Ft.
- Lower Ceiling Height: 9
- Garage (Sq. Ft.): 950 Sq.Ft.
- Garage: 3 Bay Yes
- Bonus (Sq.Ft): 394 Sq.Ft.
- Garage/Carport Type:Front Load and Side Load Front Load and Side Load
- Bedrooms: 4
- Carport: N/A
- Full Baths: 3
- Roof Pitch: 10:12
- Porch Roof Pitch: N/A
- Stories: 2.0
- Wall Construction: 2x4
- Lower Bonus (Sq. Ft.): N/A
- Vaulted Ceiling: No
- Depth (Ft): 71
- Width (Ft): 72
- Depth (In.) 4
- Width (In.) 4
- Total Sq. Ft. 5017 Sq.Ft.
- Customizable: Yes
Key Features
- Arched Entry
- Balcony
- Bonus Room Over Garage
- Butler's Pantry
- Covered Front Porch
- Covered Rear Porch
- Formal Dining Room
- Great Room
- Grilling Porch
- Home Office/Study
- Home Theater
- Main Floor Master
- Mudroom
- Open Floor Plan House Plans
- Peninsula/Eating Bar
- Split Bedroom Design
- Walk-in Closet
- Walk-in-Pantry
Plan Collections
- Heritage House Plans Collection
Plan Styles
- Arts & Crafts House Plans
- Craftsman House Plans
- European House Plans
- Luxury House Plans
- Traditional House Plans









