House Plan 1466 Eagle View Trail, Multi-Family House Plan
House Plan:NDG 1466
$2,050.00
/
Shipping calculated at checkout.
Add to Wishlist
Remove from Wishlist
[View Wishlist]
Please log in or create account to add the product in wishlist.
Wishlist is not saved permanently yet. Please log in or create account to save it.
Or order by phone: (870) 931-5777
Floor Plans
Description
House Plans with Promise: Eagle View Trail Plan NDG 1466
When buyers search “house plans,” they’re looking for designs that feel like home from the first glance—but deliver smart functionality inside. House Plan NDG 1466 – Eagle View Trail blends rustic retreat character with efficient, well‑zoned living, making it ideal as a vacation home, multi‑family layout, or a cozy primary residence.
Why Eagle View Trail Is a Standout in House Plans
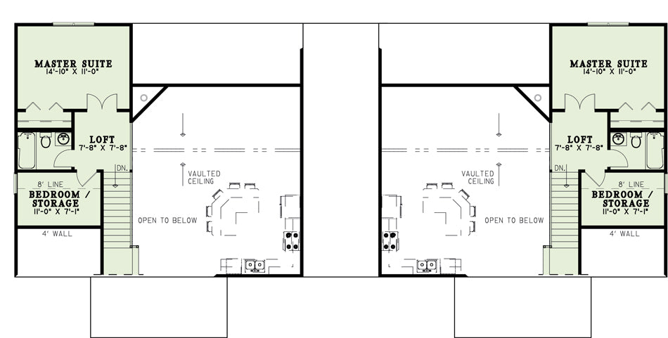
- Compact but layered design: At 1,458 square feet of total living space, this plan offers 4 bedrooms and 2 full baths across one and a half stories.
- Inviting covered porches: A large covered front porch welcomes visitors, while a rear grilling porch extends your living area outdoors—perfect for relaxing evenings or barbecue gatherings.
- Open vaulted great room: The heart of the home features vaulted ceilings and a corner fireplace, flowing into the dining area and kitchen with a wrap‑around eat‑at island.
- Smart bedroom layout: Two bedrooms and a full bath are located on the main floor for convenience. Upstairs, a master suite and loft overlook the great room—offering privacy but keeping you connected.
- Flexible upper space: Beyond the master suite, another upstairs room can serve as a small bedroom, office, or storage depending on your needs.
Home Specifications
- Total Living Space: 1458
- Ridge Height (Ft.) 22
- Main Floor (Sq. Ft.): 1070 Sq.Ft
- Ridge Height (In.) 7
- Upper Floor (Sq. Ft.): 388 Sq.Ft.
- Main Ceiling Height: 8
- Lower Floor (Sq. Ft.): N/A
- Upper Ceiling Height: 8
- Porch (Sq. Ft.): 347 Sq.Ft.
- Lower Ceiling Height: N/A
- Garage (Sq. Ft.): N/A
- Garage: No
- Bonus (Sq.Ft): N/A
- Garage/Carport Type:N/A N/A
- Bedrooms: 4
- Carport: N/A
- Full Baths: 2
- Roof Pitch: 10:12
- Porch Roof Pitch: 4:12
- Stories: 1.5
- Wall Construction: 2x4
- Lower Bonus (Sq. Ft.): N/A
- Vaulted Ceiling: Yes
- Depth (Ft): 41
- Width (Ft): 86
- Depth (In.) 6
- Width (In.) N/A
- Total Sq. Ft. 1805 Sq.Ft.
- Customizable: Yes
Key Features
- Covered Front Porch
- Covered Rear Porch
- Formal Dining Room
- Great Room
- Grilling Porch
- Kitchen Island
- Loft
- Open Floor Plan House Plans
- Peninsula/Eating Bar
- Split Bedroom Design
Plan Collections
- Multi-Family House Plans
- Riverbend Cabin House Plans Collection
Plan Styles
- Lake House Plans
- Country Home House Plans
- Low Country House Plans
- Mountain House Plans
- Rustic House Plans










