House Plan 1276 Summer Place, Rustic House Plan
Please log in or create account to add the product in wishlist.
Wishlist is not saved permanently yet. Please log in or create account to save it.
Or order by phone: (870) 931-5777
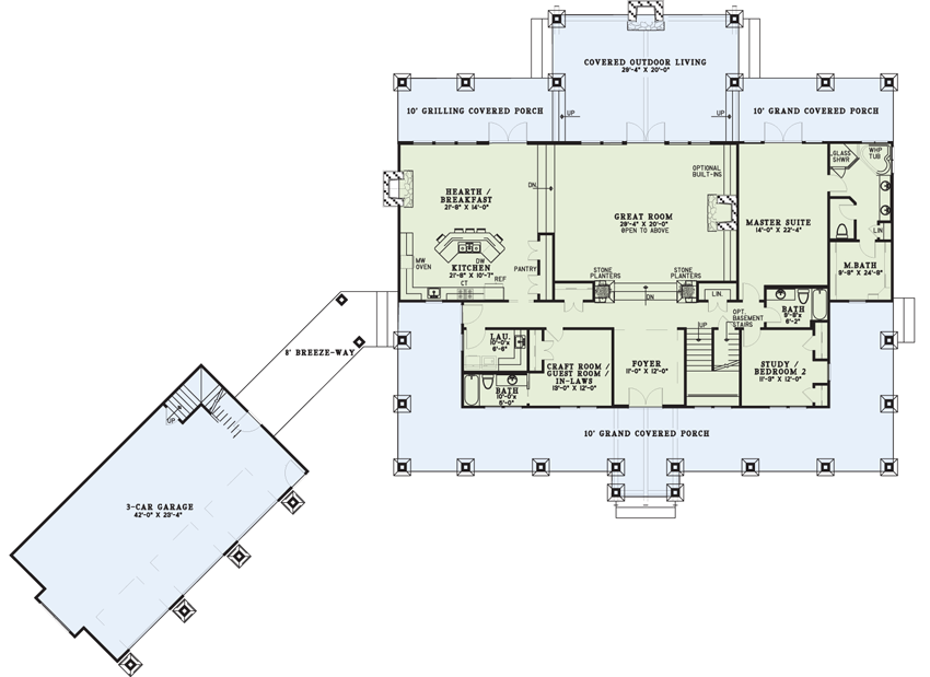
Floor Plans
Description
Summer Place Plan NDG 1276 – A Rustic, Spacious House Plan Built for Family Living & Entertaining
If you’re searching for house plans that combine rustic charm, generous living space, and functional design, Summer Place (Plan 1276) is an outstanding choice. This home is thoughtfully designed to offer room for family, guests, and entertaining, making it perfect for families or anyone who values both comfort and style.
Highlights of the Summer Place House Plan
- Over 4,600 square feet of living space, providing ample room for large families or multigenerational households
- Rustic exterior design with strong curb appeal, combining natural materials and traditional elements for timeless charm
- Thoughtful floorplan layout, balancing shared living areas and private spaces for family and guests
- Generous gathering spaces, ideal for entertaining, relaxing, or hosting family events
- Flexible design for customization, allowing adaptation to different lifestyles or specific household needs
- Multiple bedrooms and bathrooms, designed for privacy, convenience, and comfortable everyday living
- Open and inviting kitchen and living areas, perfect for family meals, entertaining, and daily life
Summer Place (Plan 1276) stands out among rustic house plans for its combination of spaciousness, functional layout, and warm, inviting design. It provides a home that is both stylish and practical, creating the perfect environment for comfortable family living and memorable gatherings.
Home Specifications
- Total Living Space: 4623
- Ridge Height (Ft.) 34
- Main Floor (Sq. Ft.): 2942 Sq.Ft
- Ridge Height (In.) 8
- Upper Floor (Sq. Ft.): 1681 Sq.Ft.
- Main Ceiling Height: 9
- Lower Floor (Sq. Ft.): N/A
- Upper Ceiling Height: 9
- Porch (Sq. Ft.): 2513 Sq.Ft.
- Lower Ceiling Height: N/A
- Garage (Sq. Ft.): 1042 Sq.Ft.
- Garage: 3 Bay Yes
- Bonus (Sq.Ft): 705 Sq.Ft.
- Garage/Carport Type:Angled Angled
- Bedrooms: 6
- Carport: N/A
- Full Baths: 5
- Roof Pitch: 8:12
- Half Baths: 1
- Porch Roof Pitch: 3:12
- Stories: 2.0
- Wall Construction: 2x4
- Lower Bonus (Sq. Ft.): N/A
- Vaulted Ceiling: No
- Depth (Ft): 102
- Width (Ft): 139
- Depth (In.) 2
- Width (In.) 2
- Total Sq. Ft. 8883 Sq.Ft.
- Customizable: Yes
Key Features
- Balcony
- Bonus Room
- Covered Front Porch
- Covered Rear Porch
- Game Room
- Great Room
- Grilling Porch
- Home Office/Study
- In-Law Suite Private Guest
- Kitchen Island
- Main Floor Master
- No Formal Dining
- Nook/Breakfast Area
- Open Floor Plan House Plans
- Outdoor Living Space
- Peninsula/Eating Bar
- Split Bedroom Design
- Walk-in Closet
- Wrap-Around Porch
Plan Collections
- Rustic Ridge House Plans Collection
Plan Styles
- Arts & Crafts House Plans
- Craftsman House Plans
- Mountain House Plans
- Rustic House Plans











