House Plan 5283 Whispering Winds, Country House Plan
House Plan:MEN 5283
$1,550.00
/
Shipping calculated at checkout.
Add to Wishlist
Remove from Wishlist
[View Wishlist]
Please log in or create account to add the product in wishlist.
Wishlist is not saved permanently yet. Please log in or create account to save it.
Or order by phone: (870) 931-5777
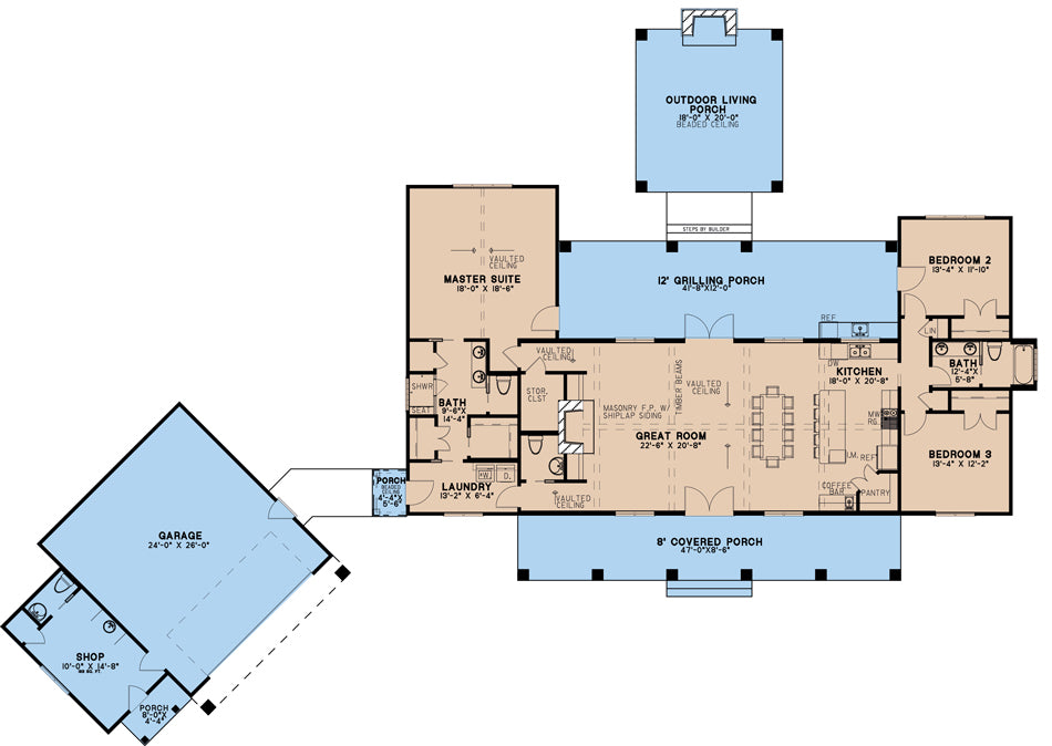
Floor Plans
Description
Country Charm Meets Modern Comfort: House Plan MEN 5283 — Whispering Winds
When your search for house plans leads you to something truly special, Whispering Winds Plan MEN 5283 stands out with its graceful country styling, functional layout, and welcoming atmosphere. This design strikes a balance between rustic inspiration and everyday livability—ideal for families seeking a home that’s both warm and practical.
Why Whispering Winds Belongs at the Top of Your House Plans List
-
Well-proportioned living space
With a thoughtfully designed footprint, this plan offers a comfortable amount of living area that supports both intimate family time and larger gatherings, without feeling overbearing. -
Classic country facade with modern appeal
The exterior combines traditional elements—such as wide porches, gabled rooflines, and board-and-batten or lap siding—with updated touches to keep the look fresh, inviting, and timeless. -
Balanced interior flow
The central living zones are open, light-filled, and easily navigable. The kitchen, dining, and great room areas work together to encourage interaction while maintaining clear circulation paths. -
Private, efficient bedroom wings
Bedrooms are grouped to afford privacy and quiet, with separation between master and secondary suites. Thoughtful bath layouts and closet placement enhance functionality. -
Outdoor living integrated into daily life
Generous covered porches extend the home’s usable space into the outdoors, welcoming relaxation, porch living, and enjoyment of surrounding views or nature.
Home Specifications
- Total Living Space: 2191
- Ridge Height (Ft.) 24
- Main Floor (Sq. Ft.): 2191 Sq.Ft
- Ridge Height (In.) 10
- Upper Floor (Sq. Ft.): N/A
- Main Ceiling Height: 9
- Lower Floor (Sq. Ft.): N/A
- Upper Ceiling Height: N/A
- Porch (Sq. Ft.): 1290 Sq.Ft.
- Lower Ceiling Height: N/A
- Garage (Sq. Ft.): 851 Sq.Ft.
- Garage: 2 Bay Yes
- Bonus (Sq.Ft): N/A
- Bedrooms: 3
- Carport: No
- Full Baths: 2
- Roof Pitch: 8:12
- Half Baths: 2
- Porch Roof Pitch: N/A
- Stories: 1.0
- Wall Construction: 2x4
- Lower Bonus (Sq. Ft.): N/A
- Vaulted Ceiling: Yes
- Depth (Ft): 67
- Width (Ft): 81
- Depth (In.) 8
- Width (In.) 4
- Total Sq. Ft. 4332 Sq.Ft.
- Customizable: Yes
Key Features
- Covered Front Porch
- Covered Rear Porch
- Detached Garage
- Great Room
- Grilling Porch
- Jack & Jill Bathroom
- Kitchen Island
- Main Floor Master
- No Formal Dining
- Open Floor Plan House Plans
- Outdoor Living Space
- Peninsula/Eating Bar
- Single Story
- Split Bedroom Design
- Walk-in Closet
- Walk-in-Pantry
- Workshop Garage
Plan Collections
- Modern Farmhouse Plans
- Michael E. Nelson House Plans Collection
Plan Styles
- Modern Contemporary House Plans
- Country Home House Plans
- Farmhouse House Plans
- Traditional House Plans

















