House Plan 922 Summer Avenue, Midtown Estate House Plan
Please log in or create account to add the product in wishlist.
Wishlist is not saved permanently yet. Please log in or create account to save it.
Or order by phone: (870) 931-5777
Floor Plans
Description
Transformative House Plan NDG 922 – Summer Avenue: A Timeless, Family‑Friendly Design
Discover the captivating charm and functional elegance of House Plan NDG 922 – Summer Avenue by Nelson Design Group. Crafted for growing families seeking both classic aesthetics and modern versatility, this popular home plan radiates warmth, convenience, and exceptional street appeal.
Why House Plan NDG 922 Stands Out
- Inviting Exterior & Timeless Design — Featuring a timeless porch-front façade, this design marries traditional beauty with everyday comfort to leave a lasting first impression. Open, Airy Living Spaces — A generous great room flows seamlessly into the spacious kitchen and breakfast area, complete with a cozy window seat and a practical breakfast bar—perfect for gatherings large and small.
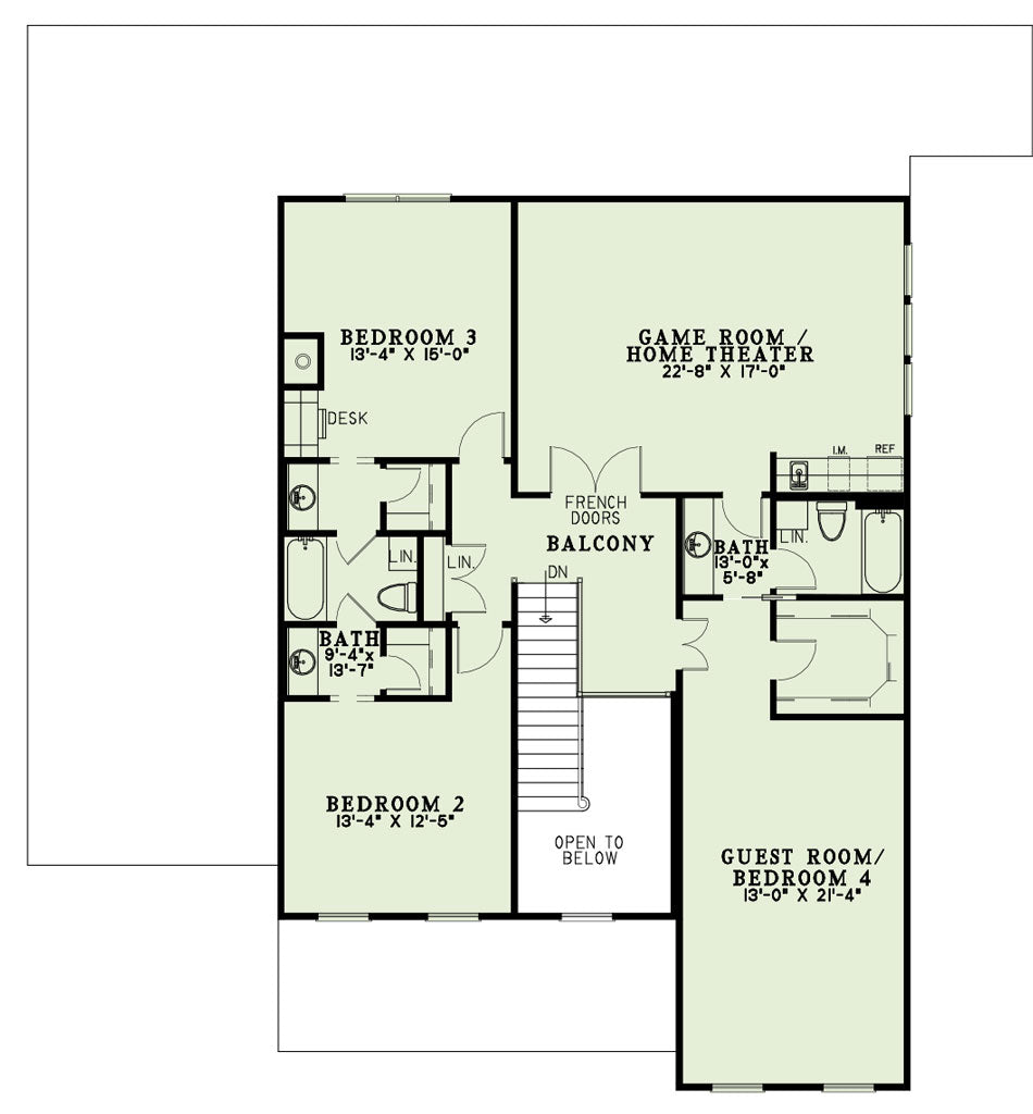
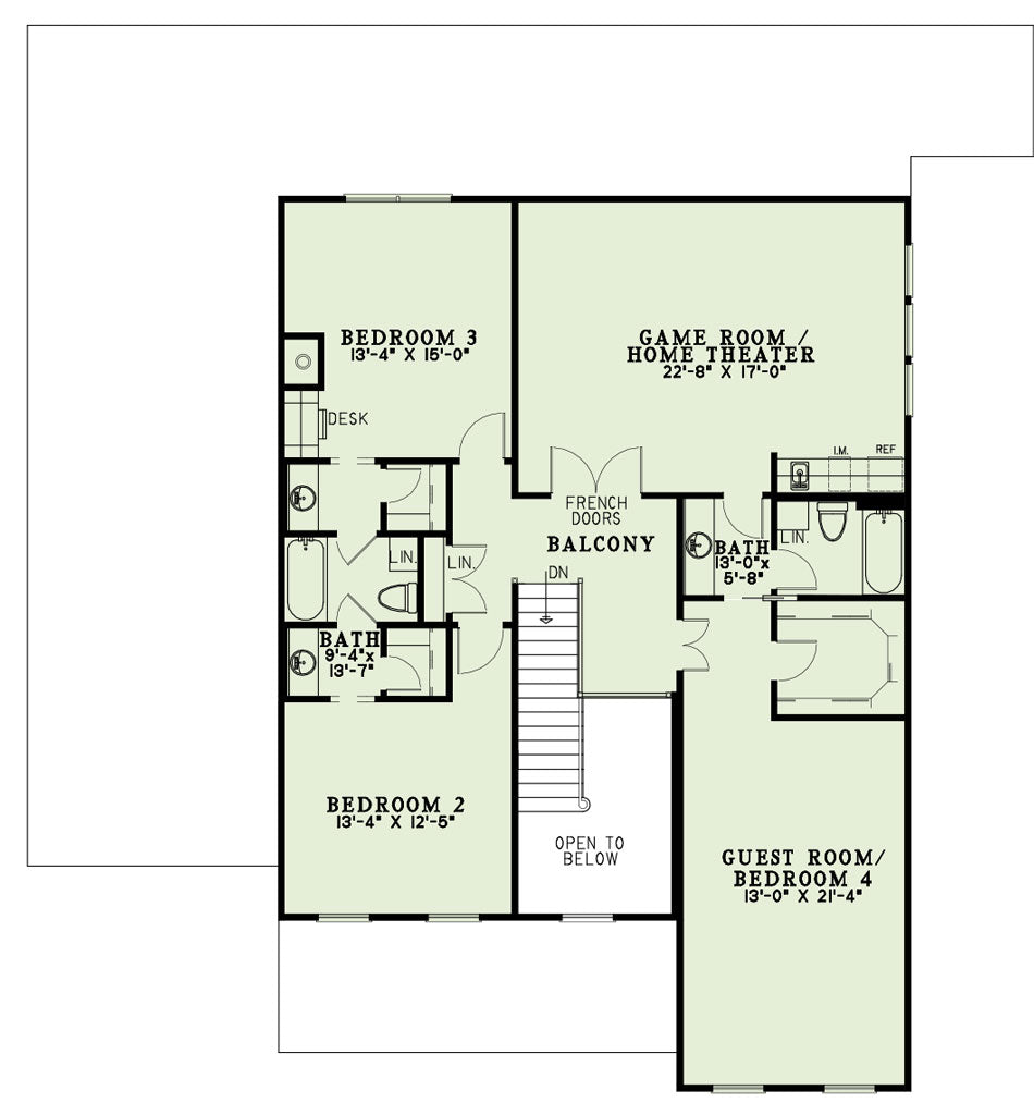
- Smart Layout for Multi‑Generational Living — The main level houses both the master suite and an additional bedroom, ideal for parents or guests. Upstairs, a sleek home theatre/game room awaits alongside three more bedrooms, offering flexibility and space for every stage of life.
- Designed for Entertaining & Everyday Life — Whether hosting movie nights upstairs or family dinners below, Plan NDG 922 balances gathering spots with private retreats, making it a standout choice for modern households.
Why Home‑Buyers Love It
House Plan 922 combines classic architecture with thoughtful livability—ideal for those searching for “house plans” that deliver both style and substance. With its spacious layout, multi‑functional design, and enduring charm, it appeals to families, entertainers, and multigenerational living alike.
Home Specifications
- Total Living Space: 3970
- Ridge Height (Ft.) 32
- Main Floor (Sq. Ft.): 2404 Sq.Ft
- Ridge Height (In.) 8
- Upper Floor (Sq. Ft.): 1566 Sq.Ft.
- Main Ceiling Height: 9
- Lower Floor (Sq. Ft.): N/A
- Upper Ceiling Height: 9
- Porch (Sq. Ft.): 638 Sq.Ft.
- Lower Ceiling Height: N/A
- Garage (Sq. Ft.): 904 Sq.Ft.
- Garage: 2 Bay Yes
- Bonus (Sq.Ft): N/A
- Garage/Carport Type:Front Load and Porte-Cochere Front Load and Porte-Cochere
- Bedrooms: 4
- Carport: Yes
- Full Baths: 3
- Roof Pitch: 12:12
- Half Baths: 2
- Porch Roof Pitch: N/A
- Stories: 2.0
- Wall Construction: 2x4
- Lower Bonus (Sq. Ft.): N/A
- Vaulted Ceiling: No
- Depth (Ft): 79
- Width (Ft): 80
- Depth (In.) 10
- Width (In.) 6
- Total Sq. Ft. 5512 Sq.Ft.
- Customizable: Yes
Key Features
- Balcony
- Covered Front Porch
- Covered Rear Porch
- Formal Dining Room
- Game Room
- Great Room
- Grilling Porch
- Home Office/Study
- Home Theater
- In-Law Suite Private Guest
- Jack & Jill Bathroom
- Main Floor Master
- Mudroom
- Nook/Breakfast Area
- Open Floor Plan House Plans
- Peninsula/Eating Bar
- Porte-Cochere
- Split Bedroom Design
- Walk-in Closet
- Walk-in-Pantry
Plan Collections
- Midtown Estate House Plans Collection
Plan Styles
- Arts & Crafts House Plans
- Classical House Plans
- Craftsman House Plans
- European House Plans
- Traditional House Plans
- Traditional Neighborhood Design (TND) House Plans









