House Plan 5209 Telluride Retreat, Country Home House Plan
House Plan:MEN 5209
$1,650.00
/
Add to Wishlist
Remove from Wishlist
[View Wishlist]
Please log in or create account to add the product in wishlist.
Wishlist is not saved permanently yet. Please log in or create account to save it.
Or order by phone: (870) 931-5777
Floor Plans
Description
Discover House Plan MEN 5209 – Telluride Retreat from Nelson Design Group
MEN 5209 – Telluride Retreat is a beautifully rustic yet refined country home plan with about 2,687 sq ft of living space. With its open layout, generous porches, and mountain‑cabin touches, it’s made for those who love nature, outdoor living, and cozy gathering spaces without sacrificing style or function.
Why Homeowners Will Love It
-
Rustic Mountain Charm & Versatile Style
The exterior features shake siding, rugged stone columns, and a large front porch balanced by an angled garage. Although designed with a cabin‑feel, swapping the siding to lap or lighter colors can shift the look toward farmhouse or country‑home instantly. -
Open, Entertaining Floor Plan
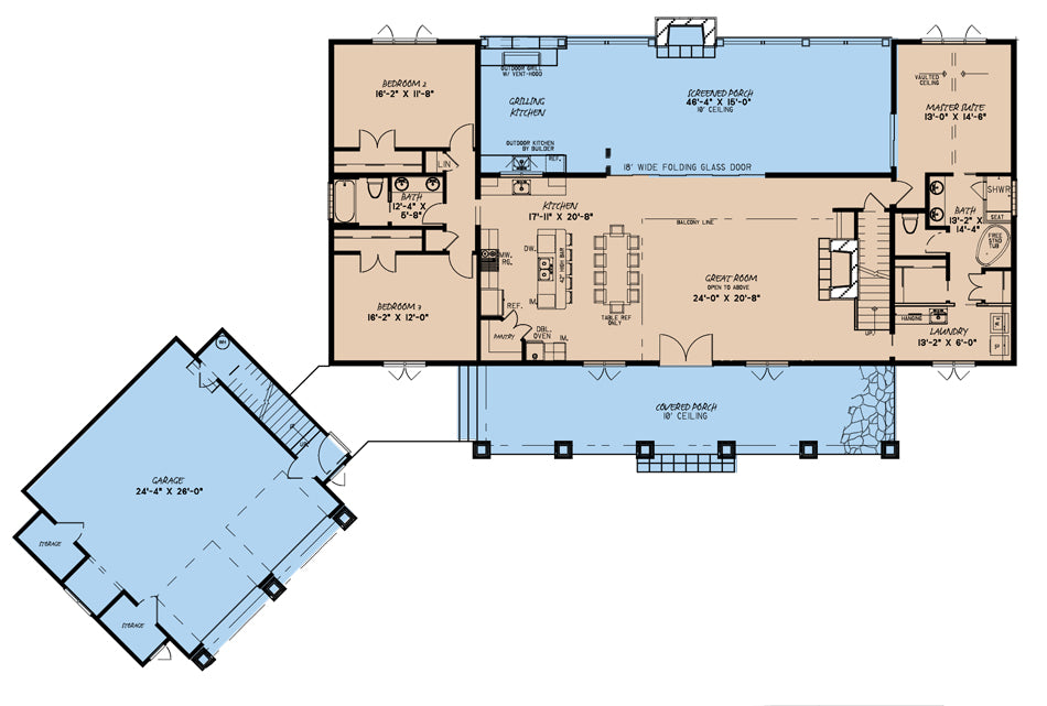
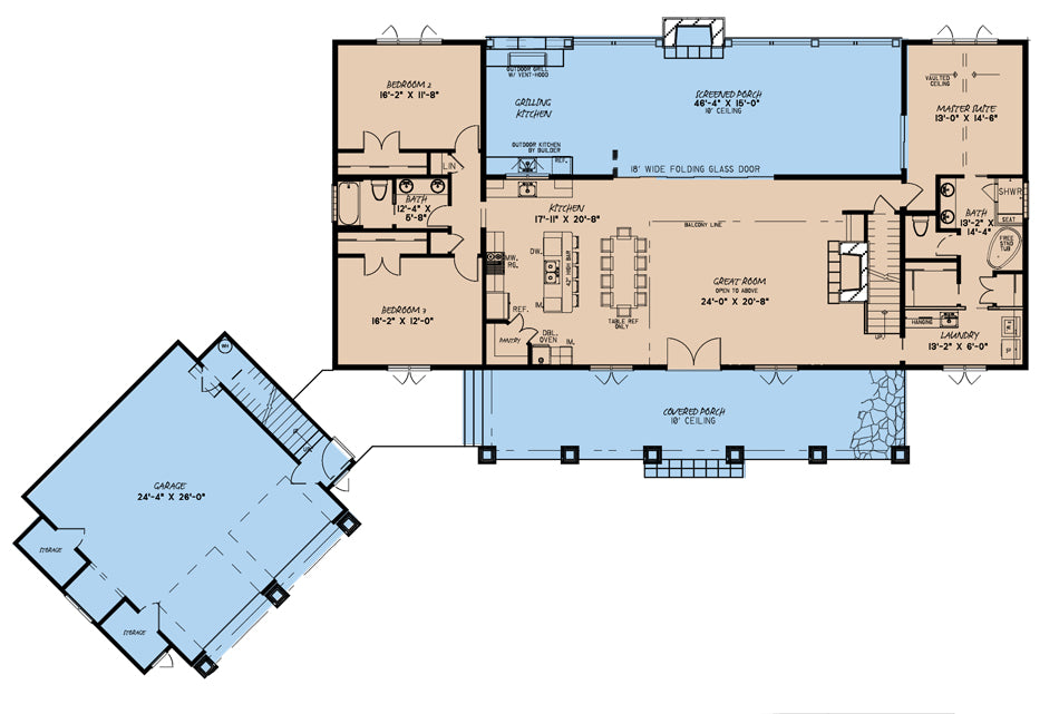
Vaulted ceilings with exposed timber beams span across the Great Room, creating a dramatic open space. Folding glass doors open this space to the Screened Porch, blending indoor and outdoor living. The dining area, capable of hosting a large table, looks toward the fireplace, making the home ideal for gatherings large or intimate. -
Thoughtfully Zoned Bedrooms
Two secondary bedrooms are grouped together with a shared full bath, each with Step‑in closets. Meanwhile, the Master Suite sits privately at the back, with a vaulted ceiling, roomy windows, porch access, dual vanities, an enclosed shower and toilet room, and a large walk‑in closet that connects to the laundry—making everyday function smooth and secluded. -
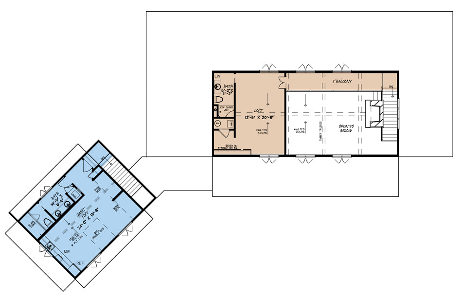
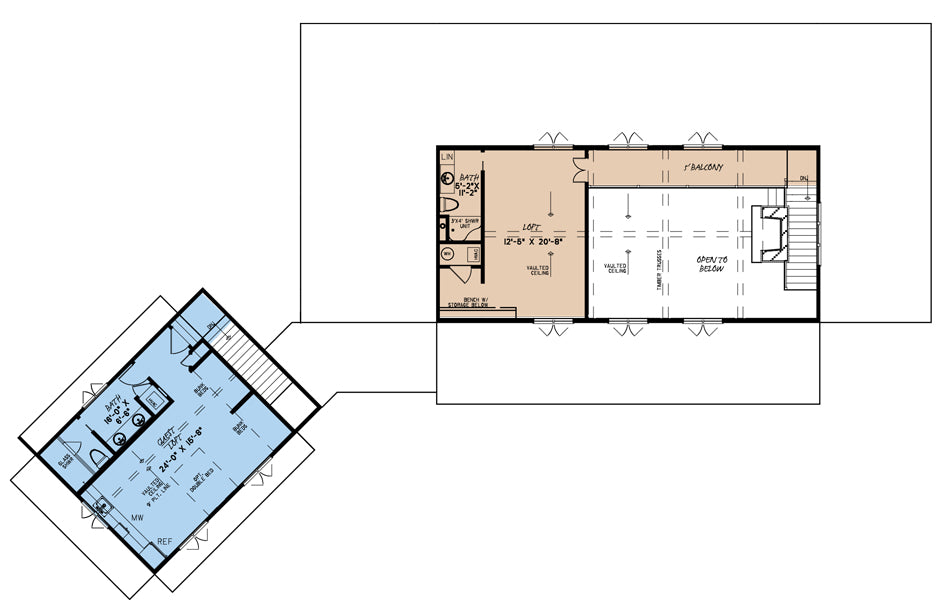
Bonus Spaces & Bright Loft Area
Above the garage is a Guest Loft with its own full bath and enough room for beds or bunks—ideal for visitors, teens, or extra space. Also upstairs is a Loft overlooking the Great Room, adding flexibility: game room, hang‑out space, or even a 4th bedroom potential. -
Outdoor Living & Practical Extras
A large Screened Porch with an outdoor fireplace and grilling kitchen extends living outdoors. The plan includes lots of porches, high ceiling heights, generous storage (linen closets, pantry), and a chef’s style kitchen with a big island and walk‑in pantry.
Home Specifications
- Total Living Space: 2687
- Ridge Height (Ft.) 30
- Main Floor (Sq. Ft.): 2141 Sq.Ft
- Ridge Height (In.) 4
- Upper Floor (Sq. Ft.): 546 Sq.Ft.
- Main Ceiling Height: 10
- Lower Floor (Sq. Ft.): N/A
- Upper Ceiling Height: 8
- Porch (Sq. Ft.): 1165 Sq.Ft.
- Lower Ceiling Height: N/A
- Garage (Sq. Ft.): 839 Sq.Ft.
- Garage: 2 Bay Yes
- Bonus (Sq.Ft): 503 Sq.Ft.
- Garage/Carport Type:Angled and Detatched Angled and Detatched
- Bedrooms: 3
- Carport: N/A
- Full Baths: 4
- Roof Pitch: 10:12
- Porch Roof Pitch: 5:12
- Stories: 1.5
- Wall Construction: 2x6
- Lower Bonus (Sq. Ft.): N/A
- Vaulted Ceiling: Yes
- Depth (Ft): 71
- Width (Ft): 112
- Depth (In.) 2
- Width (In.) N/A
- Total Sq. Ft. 5194 Sq.Ft.
- Customizable: Yes
Key Features
- Balcony
- Bonus Room Over Garage
- Covered Front Porch
- Covered Rear Porch
- Great Room
- Grilling Porch
- Kitchen Island
- Loft
- Main Floor Master
- Mudroom
- Nook/Breakfast Area
- Open Floor Plan House Plans
- Outdoor Kitchen
- Peninsula/Eating Bar
- Screened Porch
- Split Bedroom Design
- Walk-in Closet
- Walk-in-Pantry
Plan Collections
- Michael E. Nelson House Plans Collection
Plan Styles
- Country Home House Plans
- Craftsman House Plans
- Farmhouse House Plans
- Mountain House Plans
- Rustic House Plans

















