Modern Farmhouse Plan, 5463 Austin Farms
House Plan:MEN 5463
$1,350.00
/
Add to Wishlist
Remove from Wishlist
[View Wishlist]
Please log in or create account to add the product in wishlist.
Wishlist is not saved permanently yet. Please log in or create account to save it.
Or order by phone: (870) 931-5777
Floor Plans
Description
Introducing the Austin Farms MEN 5463, a modern farmhouse that combines contemporary design with classic charm. This 1.5-story home offers 2,972 sq. ft. of living space, featuring three bedrooms and three and a half bathrooms, making it an ideal retreat for families.
Key Features:
- Open Living Spaces: The main floor boasts a spacious great room with vaulted ceilings, seamlessly connecting to the dining area and a gourmet kitchen equipped with a central island and walk-in pantry—perfect for both daily living and entertaining.
- Private Master Suite: The master bedroom offers a serene retreat, complete with a luxurious en-suite bathroom and a generous walk-in closet.
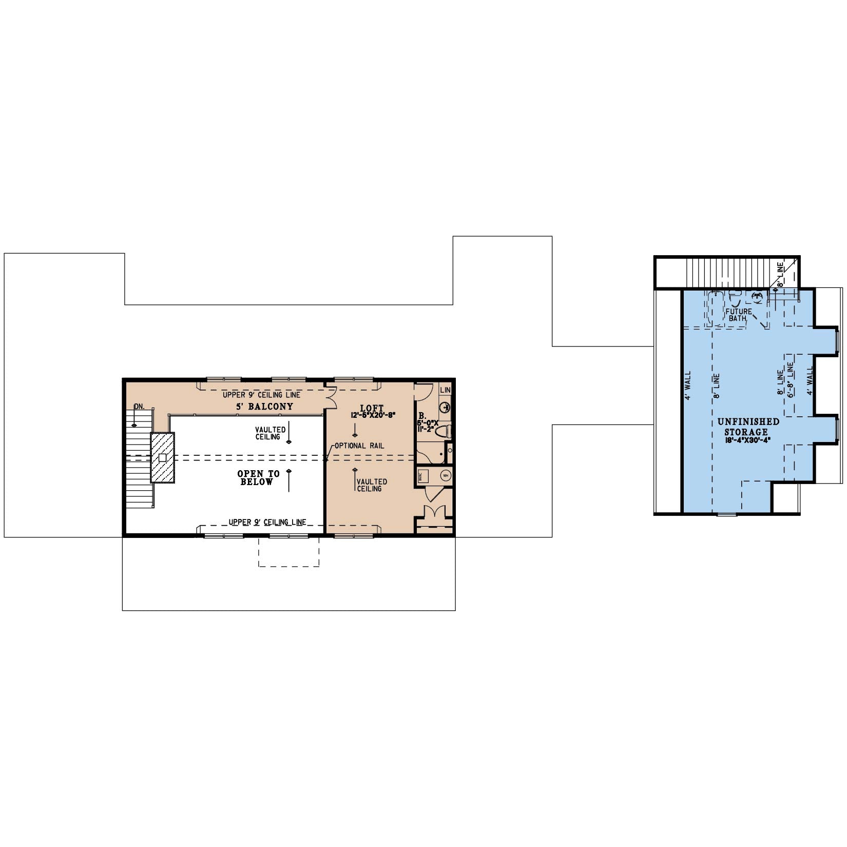
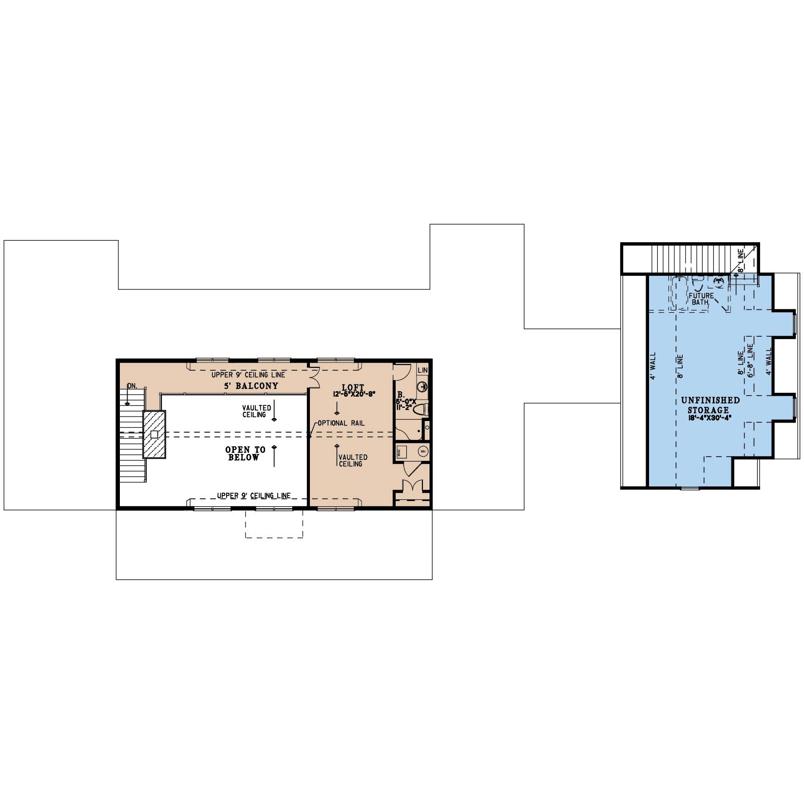
- Upper-Level Retreat: Two additional bedrooms, each with private bathrooms, ensure comfort and privacy for family members or guests.
- Outdoor Living: Enjoy 899 sq. ft. of porch space, including both front and rear covered porches, ideal for relaxation and outdoor gatherings.
- Functional Garage: A side-load, two-bay garage provides ample storage and convenience.
Home Specifications
- Total Living Space: 2972
- Ridge Height (Ft.) 33
- Main Floor (Sq. Ft.): 2426 Sq.Ft
- Ridge Height (In.) 11
- Upper Floor (Sq. Ft.): 546 Sq.Ft.
- Main Ceiling Height: 10
- Lower Floor (Sq. Ft.): N/A
- Upper Ceiling Height: 8
- Porch (Sq. Ft.): 899 Sq.Ft.
- Lower Ceiling Height: N/A
- Garage (Sq. Ft.): 887 Sq.Ft.
- Garage: 2 Bay Yes
- Bonus (Sq.Ft): 589 Sq.Ft.
- Garage/Carport Type:Side Load Side Load
- Bedrooms: 3
- Carport: N/A
- Full Baths: 3
- Roof Pitch: 12:12
- Half Baths: 1
- Porch Roof Pitch: 3:12
- Stories: 1.5
- Wall Construction: 2x4
- Lower Bonus (Sq. Ft.): N/A
- Vaulted Ceiling: Yes
- Depth (Ft): 51
- Width (Ft): 118
- Depth (In.) N/A
- Width (In.) 4
- Total Sq. Ft. 5347 Sq.Ft.
- Customizable: Yes
Key Features
- Balcony
- Covered Front Porch
- Covered Rear Porch
- Great Room
- Main Floor Master
- No Formal Dining
- Open Floor Plan House Plans
- Split Bedroom Design
- Vaulted High Cathedral Ceiling
Plan Collections
- Michael E. Nelson House Plans Collection
- Modern Farmhouse Plans
- Modern House Plans
Plan Styles
- Arts & Crafts House Plans
- Farmhouse House Plans



















